物件掲載企業数:301|賃貸物件:3,180件|売買物件:3,246件|今週の登録物件:199
閲覧中のブラウザ(インターネットエクスプローラー)は非推奨ブラウザです。
物件が正しく表示されなかったり、正しく検索されない場合があります。最新のブラウザ(Google Chrome・Edgeなど)にてご利用お願いいたします。
  

新潟県上越市西城町1丁目6番3号 投資物件・その他 7,500,000円の物件情報

高田城址公園近くで元店舗の貸家物件!

物件名/所在地 詳細 価格
表面利回り
西城町 貸家
新潟県上越市西城町1丁目6番3号
  • 土地面積
    :148.98㎡ /45.06坪
  • 建ぺい率
    :60%
  • 容積率
    :200%
7,500,000
9%
(満室想定時)
  • 西城町 貸家
    上越宅地販売株式会社
  • この物件を問い合わせる/無料
  • TEL: 025-522-3838

物件画像

外観 間取り
物件画像
※画像クリックで拡大表示
外観
物件画像
※画像クリックで拡大表示
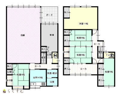
間取り
詳細画像


物件概要

現在賃貸中です。
物件コード 00308-200314
物件名 西城町 貸家
交通 駅:妙高はねうまライン 高田駅から徒歩15分、バス:西城町一丁目から徒歩1分
物件所在地 新潟県上越市西城町1丁目6番3号
物件種別 投資物件・その他
物件区分 その他
構造 木造 階建 地上2階建
建ぺい率/容積率 60%/200%
建物面積 1階 84.59㎡/ 2階 65.01㎡/ 計 149.6㎡ /45.25坪
土地面積 148.98㎡ /45.06坪
築年月 1973年9月(築52年)
入居(引き渡し)時期 随時入居(引き渡し)可
用途地域 第2種中高層住居専用地域 地目 宅地
都市計画 市街化区域 学校区 大町小学校(773m)・城東中学校(625m)
形状 - 道路 北側15m
私道 - その他の制限 -
  • 西城町 貸家
    上越宅地販売株式会社
  • この物件を問い合わせる/無料
  • TEL: 025-522-3838

物件詳細情報

所在階/階数 - 号室 -
販売価格 7,500,000円 方位 -
表面利回り(満室想定時) 9% 満室想定年収 540,000円 (想定月収: 45,000円 )
現行利回り 7.2% 現行年間年収 540,000円
住戸数 1
間取り -
専有面積 149.6㎡ /45.25坪 ~ 149.6㎡ /45.25坪 バルコニー面積 -
その他面積 - 駐車場 敷地内1台
管理費 - 修繕積立金 -
現況 賃貸中
仲介手数料 330,000円
利用制限 -
設備 公営水道、都市ガス、下水道
取引態様 一般
備考 -
取り扱い会社

上越宅地販売株式会社

新潟県上越市南高田町1-2アサノビル1階

情報登録日 2026/03/07 次回更新予定日 2026/05/16
取引条件有効期限 2026/05/31
  • 西城町 貸家
    上越宅地販売株式会社
  • この物件を問い合わせる/無料
  • TEL: 025-522-3838

この物件の地図・周辺情報・行政情報

この物件の周辺情報・行政情報を詳しく見る
【周辺情報】
物件の近くにあるコンビニや銀行・学校など、アイコン付のマップで詳しく表示できます!
【行政情報】
水道料や下水道料・ガス料金など、暮らしに関係のある情報を表示しています。
セブン-イレブン 上越北城店(コンビニ)まで670m
ナルス 北城店(スーパー)まで430m
クスリのアオキ 北城店(ドラッグストア)まで790m

※カメラのアイコンがある場合は、マウスをポイントするとその施設の画像がご覧いただけます。


担当取扱い店舗情報

取扱い店舗画像
上越宅地販売株式会社
TEL: 025-522-3838
所在地: 新潟県上越市南高田町1-2アサノビル1階
交通: 妙高はねうまライン 南高田駅 徒歩1分
営業時間: 9:00~18:30/定休日:毎週水曜日・GW(5/2~5/6)・夏季・・年末年始
免許番号: 新潟県知事(9)第3372号 この会社の情報を詳しく見る
所属団体名: 公社 新潟県宅地建物取引協会 上越支部
取引態様: 一般
ホームページ: http://takuhan.com/