物件掲載企業数:301|賃貸物件:3,289件|売買物件:3,251件|今週の登録物件:265
閲覧中のブラウザ(インターネットエクスプローラー)は非推奨ブラウザです。
物件が正しく表示されなかったり、正しく検索されない場合があります。最新のブラウザ(Google Chrome・Edgeなど)にてご利用お願いいたします。
  

新潟県上越市池180 中古一戸建て 7DK 13,000,000円の物件情報

☆敷地が広々とした田舎暮らし物件です☆

物件名/所在地 詳細 価格

新潟県上越市池180
  • 土地面積
    :1,439.53㎡ /435.45坪
  • 建物面積
    :188.72㎡ /57.08坪
  • 間取り
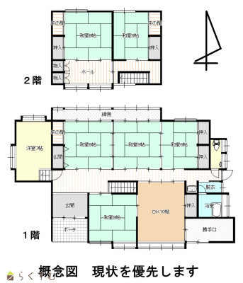
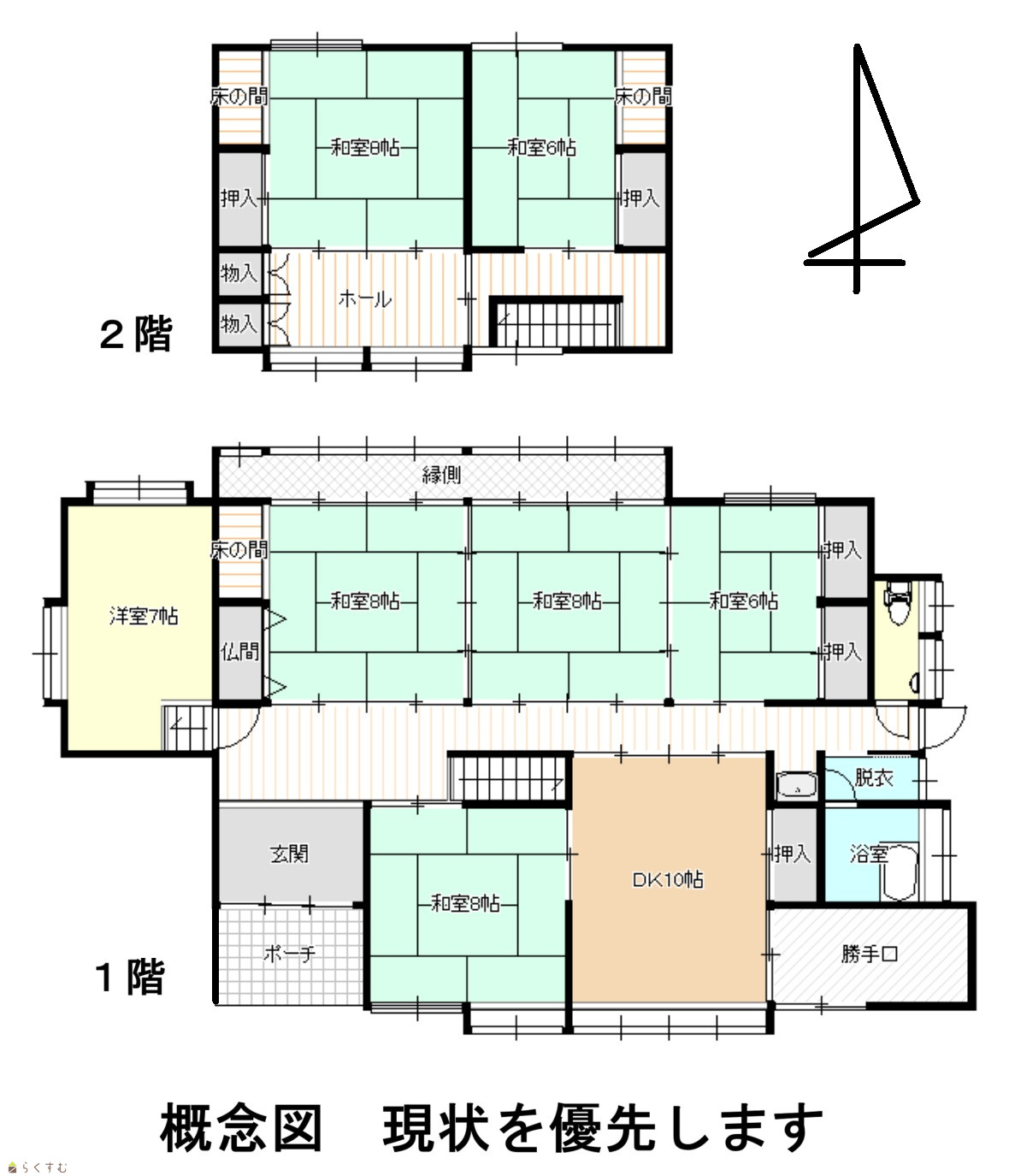
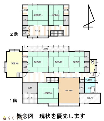
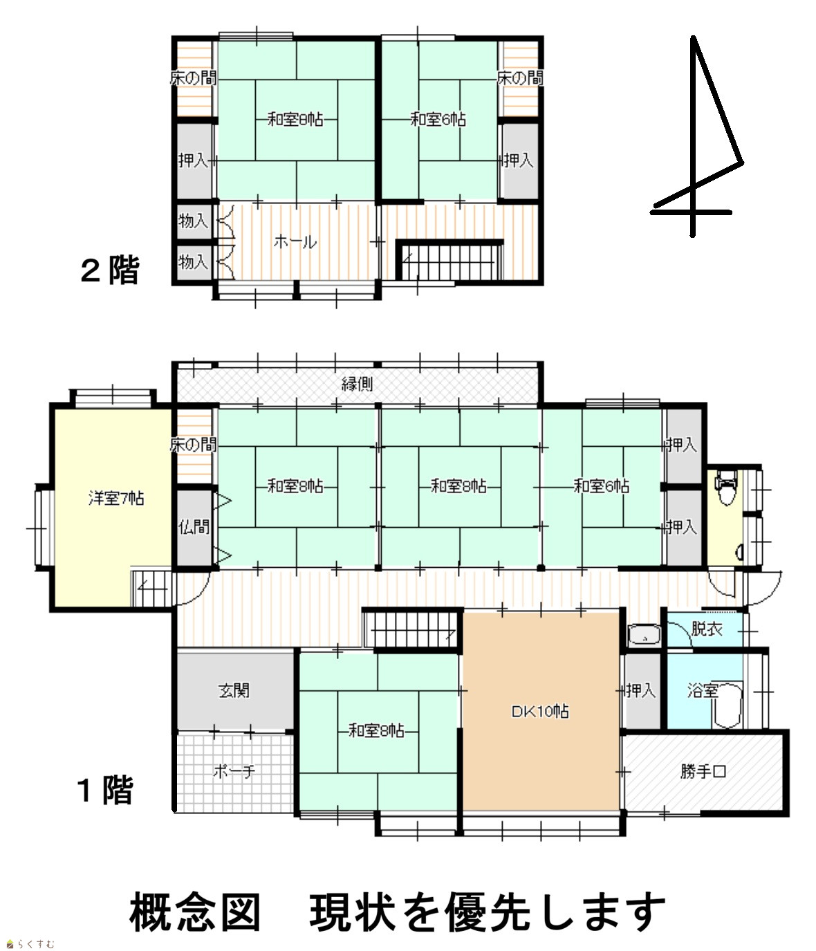
    :7DK
  • 築年月
    :1971年5月
13,000,000

  • 有限会社田村家具店
  • この物件を問い合わせる/無料
  • TEL: 025-523-2438

物件画像

外観 間取り
物件画像
※画像クリックで拡大表示
外観
物件画像
※画像クリックで拡大表示
間取り
詳細画像


物件概要

物件コード 00277-200458
物件名
交通 駅:妙高はねうまライン 上越妙高駅から徒歩72分
物件所在地 新潟県上越市池180
物件種別 中古一戸建て
構造 木造 階建 地上2階建
建ぺい率/容積率 70%/200%
建物面積 計 188.72㎡ /57.08坪
土地面積 1,439.53㎡ /435.45坪
築年月 1971年5月(築55年)
入居(引き渡し)時期 相談
用途地域 無指定 地目 宅地  (現状:宅地)
都市計画 市街化調整区域 学校区 上雲寺小学校(1,005m)・雄志中学校(2,076m)
形状 間口 31.5m 道路 西側約5.8m
私道 - その他の制限 -

  • 有限会社田村家具店
  • この物件を問い合わせる/無料
  • TEL: 025-523-2438

物件詳細情報

所在階/階数 - 号室 -
販売価格 13,000,000円 方位
間取り 7DK (和室:6畳、6畳、8畳、8畳、8畳、8畳) (洋室:7)
DK7
専有面積 - バルコニー面積 -
その他面積 - 駐車場 -
管理費 - 修繕積立金 -
現況 空家
仲介手数料 495,000円
固定資産税 51,370円
年額の金額となります。
利用制限 -
設備 駐車3台以上可能、南向き、温水洗浄便座、エアコンあり、LPG、上水道、下水道、田舎暮らし
取引態様 一般
備考 ・敷地435坪!昔ながらの佇まいが魅力的な中古住宅です☆
・敷地内には蔵があり、古き良き雰囲気を倍増してくれます♪
・下水道にも接続されていて衛生的☆
・土地、建物、設備に関しては現状渡しです。

※本体代金に別途諸費用が掛かります。
取り扱い会社

有限会社田村家具店

新潟県上越市稲田4-5-21

情報登録日 2025/10/21 次回更新予定日 2026/06/14
取引条件有効期限 2035/12/31

  • 有限会社田村家具店
  • この物件を問い合わせる/無料
  • TEL: 025-523-2438

この物件の地図・周辺情報・行政情報

この物件の周辺情報・行政情報を詳しく見る
【周辺情報】
物件の近くにあるコンビニや銀行・学校など、アイコン付のマップで詳しく表示できます!
【行政情報】
水道料や下水道料・ガス料金など、暮らしに関係のある情報を表示しています。

担当取扱い店舗情報

取扱い店舗画像
有限会社田村家具店
TEL: 025-523-2438
所在地: 新潟県上越市稲田4-5-21
交通: 高田駅
営業時間: 午前9:00~午後18:00/定休日:水曜日 第1、第3日曜日
免許番号: 新潟県知事(10)第2792号 この会社の情報を詳しく見る
所属団体名: 公社 新潟県宅地建物取引協会 上越支部
取引態様: 一般