物件掲載企業数:301|賃貸物件:3,182件|売買物件:3,223件|今週の登録物件:112
閲覧中のブラウザ(インターネットエクスプローラー)は非推奨ブラウザです。
物件が正しく表示されなかったり、正しく検索されない場合があります。最新のブラウザ(Google Chrome・Edgeなど)にてご利用お願いいたします。
  

新潟県長岡市北園町9-3付近 新築一戸建て 3LDK 25,800,000円の物件情報

【当日見学予約大歓迎】 ■原信城岡店まで車約3分 ■蔵王橋まで車約3分!川西へも行きやすい立地 ■前面道路に消雪パイプ有 ■駐車3台可能

物件名/所在地 詳細 価格
(新築住宅)長岡市北園町第1
新潟県長岡市北園町9-3付近
  • 土地面積
    :148.36㎡ /44.87坪
  • 建物面積
    :105.3㎡ /31.85坪
  • 間取り
    :3LDK
  • 築年月
    :2026年10月
25,800,000
  • (新築住宅)長岡市北園町第1
    新潟土地建物販売センター 株式会社
  • この物件を問い合わせる/無料
  • TEL: 0258-89-8245

物件画像

外観 間取り
物件画像
※画像クリックで拡大表示
10月完成予定!同施工会社様の類似物件へご案内します。
物件画像
※画像クリックで拡大表示
全居室収納付♪住み心地のいい大きさ。お問い合わせ下さい♪
詳細画像


物件概要

◆毎日営業中!当日のご内覧大歓迎!いつでもご案内します!!◆急なご来店でも相談出来ます◆豊富な知識と経験を基に丁寧にアドバイスします!先ずはお電話、メール、LINEにてお問合せ下さい♪
物件コード 00239-200648
物件名 (新築住宅)長岡市北園町第1
交通 駅:信越線 北長岡駅から徒歩19分、バス:宝1丁目から徒歩3分
物件所在地 新潟県長岡市北園町9-3付近
物件種別 新築一戸建て
構造 木造 階建 地上2階建
建ぺい率/容積率 60%/200%
建物面積 1階 51.84㎡/ 2階 53.46㎡/ 計 105.3㎡ /31.85坪
土地面積 148.36㎡ /44.87坪
築年月 2026年10月完成予定
入居(引き渡し)時期 相談
用途地域 準工業地域 地目 宅地
都市計画 市街化区域 学校区 新町小学校(1,700m)・北中学校(550m)
形状 - 道路 南側6.0m公道
私道 - その他の制限 建築基準法22条指定区域
  • (新築住宅)長岡市北園町第1
    新潟土地建物販売センター 株式会社
  • この物件を問い合わせる/無料
  • TEL: 0258-89-8245

物件詳細情報

所在階/階数 - 号室 -
販売価格 25,800,000円 方位
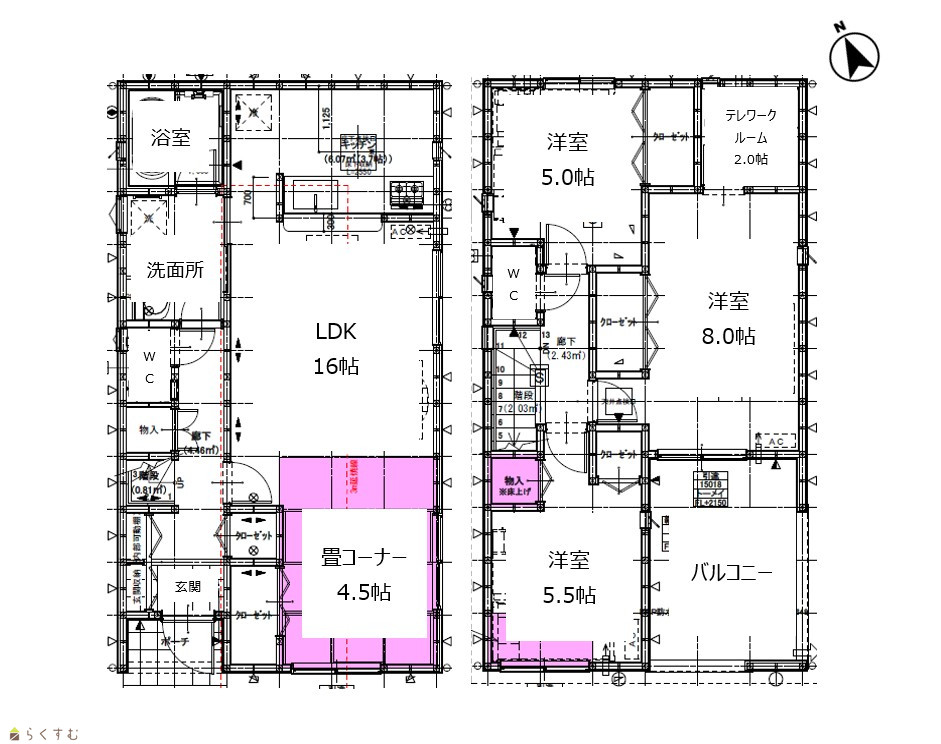
間取り 3LDK (洋室:8.0、5.5、5.0)
LDK20.5
2階に2帖のテレワークルーム有
専有面積 - バルコニー面積 -
その他面積 - 駐車場 -
管理費 - 修繕積立金 -
現況 空家
仲介手数料 917,400円
利用制限 -
設備 整形地、前面道路6m以上、日当り良好、閑静な住宅街、スーパー近く、耐震構造、LDK15畳以上、全室フローリング、駐車場3台以上、南向き、TVインターホン、複層ガラス、ディンプルキー、システムキッチン、カウンターキッチン、浄水器、3口コンロ、ガスコンロ設置済み、追いだき機能付き、浴室暖房乾燥機、バス1坪以上、温水洗浄便座、シャワー付き洗面台、24時間換気システム、省エネ給湯、高気密高断熱住宅、都市ガス、上水道、下水道、電気、全居室収納あり、床下収納、シューズBOX
取引態様 一般
備考 【教育】
新町小学校 約1700m 徒歩約22分
北中学校 約550m 徒歩約7分

【交通】
JR信越本線 北長岡駅 徒歩約19分
越後交通 宝1丁目 徒歩約3分

■■売って終わりにしない、充実のアフターサービス体制■■
◎アフターサービスの専門スタッフが、迅速・丁寧にご対応
◎独自のメンテナンス制度で設備の故障や建物の傷を無償修理
◎ご購入後のお困り事も、充実した体制で手厚くサポート

■■選べるプレゼント■■
◎エアコンや照明などの新生活に必要な設備を無料でプレゼント
取り扱い会社

新潟土地建物販売センター 株式会社

新潟県長岡市台町1-7-331階

情報登録日 2026/04/08 次回更新予定日 2026/05/22
取引条件有効期限 2026/12/31
  • (新築住宅)長岡市北園町第1
    新潟土地建物販売センター 株式会社
  • この物件を問い合わせる/無料
  • TEL: 0258-89-8245

この物件の地図・周辺情報・行政情報

この物件の周辺情報・行政情報を詳しく見る
【周辺情報】
物件の近くにあるコンビニや銀行・学校など、アイコン付のマップで詳しく表示できます!
【行政情報】
水道料や下水道料・ガス料金など、暮らしに関係のある情報を表示しています。
セブン-イレブン 長岡下々条1丁目店(コンビニ)まで500m
新潟県立精神医療センター(病院)まで660m

※カメラのアイコンがある場合は、マウスをポイントするとその施設の画像がご覧いただけます。


担当取扱い店舗情報

取扱い店舗画像
新潟土地建物販売センター 株式会社
TEL: 0258-89-8245
所在地: 新潟県長岡市台町1-7-331階
交通: 長岡駅
営業時間: 9:00~18:00/定休日:なし
免許番号: 新潟県知事(3)第5151号 この会社の情報を詳しく見る
所属団体名: 公社 新潟県宅地建物取引協会 新潟支部
取引態様: 一般
ホームページ: https://niigata-tochitate.jp/