物件掲載企業数:295|賃貸物件:3,622件|売買物件:3,320件|今週の登録物件:252
閲覧中のブラウザ(インターネットエクスプローラー)は非推奨ブラウザです。
物件が正しく表示されなかったり、正しく検索されない場合があります。最新のブラウザ(Google Chrome・Edgeなど)にてご利用お願いいたします。
  

新潟県長岡市石内1丁目9ー1付近 新築一戸建て 3LDK 23,900,000円の物件情報

【利便も快適も叶える、家事ラク動線の新築戸建】 ■前面道路7.8m、消雪パイプ完備 ■駐車2台可能 ■LDKエアコン付き ■各階に物干スペースあり ■長岡バイパス近く

物件名/所在地 詳細 価格
(新築住宅)長岡市石内C棟
新潟県長岡市石内1丁目9ー1付近
  • 土地面積
    :138.91㎡ /42.02坪
  • 建物面積
    :91.08㎡ /27.55坪
  • 間取り
    :3LDK
  • 築年月
    :2025年12月
23,900,000
  • (新築住宅)長岡市石内C棟
    新潟土地建物販売センター 株式会社
  • この物件を問い合わせる/無料
  • TEL: 0258-89-8245

物件画像

外観 間取り
物件画像
※画像クリックで拡大表示
ブラックの外壁が際立つシンプルかつスタイリッシュなデザイン♪
物件画像
※画像クリックで拡大表示
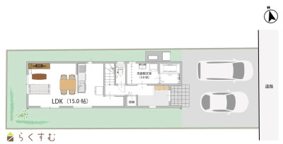
充実した収納やサンルームなどもあり機能的で暮らしやすい間取り
詳細画像


物件概要

スーパーなどの商業施設や小中学校、国道8号線も近くに整った生活環境が整った立地です♪全室収納付きの3LDKで、LDKにはエアコンを標準装備!各階に物干しスペースがあり、家事動線にも配慮された設計です!
物件コード 00239-200576
物件名 (新築住宅)長岡市石内C棟
交通 駅:信越線 北長岡駅から徒歩17分、バス:石内1丁目から徒歩4分
物件所在地 新潟県長岡市石内1丁目9ー1付近
物件種別 新築一戸建て
構造 木造 階建 地上2階建
建ぺい率/容積率 60%/200%
建物面積 1階 44.71㎡/ 2階 46.37㎡/ 計 91.08㎡ /27.55坪
土地面積 138.91㎡ /42.02坪
築年月 2025年12月完成予定
入居(引き渡し)時期 2025年12月
用途地域 第1種住居地域 地目 宅地
都市計画 市街化区域 学校区 神田小学校(500m)・東中学校(800m)
形状 - 道路 東側7.8m公道
私道 - その他の制限 法22条指定区域
  • (新築住宅)長岡市石内C棟
    新潟土地建物販売センター 株式会社
  • この物件を問い合わせる/無料
  • TEL: 0258-89-8245

物件詳細情報

所在階/階数 - 号室 -
販売価格 23,900,000円 方位
間取り 3LDK (洋室:6.0、6.0、5.5)
LDK15.5
洗面脱衣室3帖、WIC2帖、土間収納あり
専有面積 - バルコニー面積 -
その他面積 - 駐車場 -
管理費 - 修繕積立金 -
現況 空家
仲介手数料 854,700円
利用制限 -
設備 整形地、前面道路6m以上、日当り良好、閑静な住宅街、スーパー近く、BELS/省エネ基準適合認定建物、LDK15畳以上、全室フローリング、駐車場2台以上、南向き、TVインターホン、複層ガラス、システムキッチン、カウンターキッチン、IHクッキングヒーター、3口コンロ、追いだき機能付き、バス1坪以上、温水洗浄便座、シャワー付き洗面台、エアコン、24時間換気システム、オール電化、省エネ給湯、高気密高断熱住宅、上水道、下水道、電気、ウォークインクローゼット、全居室収納あり、シューズBOX、照明器具付き、バリアフリー
取引態様 一般
備考 【教育】
神田小学校 約500m 徒歩約7分
東中学校 約800m 徒歩約10分

【交通】
JR信越本線 北長岡駅 徒歩約17分
越後交通バス 石内1丁目 徒歩約4分

【備考】
※消雪使用料:18,000円/年

-物件情報-
■全居室収納や2帖のウォークインクローゼットあり
■火を使わない安心安全なオール電化
■洗面脱衣室はゆったり3帖を確保
■コンビニ・薬局が徒歩3分圏内
■スーパーや小中学校まで徒歩10分圏内
取り扱い会社

新潟土地建物販売センター 株式会社

新潟県長岡市台町1-7-331階

情報登録日 2025/08/21 次回更新予定日 2025/11/17
取引条件有効期限 2026/12/31
  • (新築住宅)長岡市石内C棟
    新潟土地建物販売センター 株式会社
  • この物件を問い合わせる/無料
  • TEL: 0258-89-8245

この物件の地図・周辺情報・行政情報

この物件の周辺情報・行政情報を詳しく見る
【周辺情報】
物件の近くにあるコンビニや銀行・学校など、アイコン付のマップで詳しく表示できます!
【行政情報】
水道料や下水道料・ガス料金など、暮らしに関係のある情報を表示しています。
ローソン 長岡石内一丁目店(コンビニ)まで210m
チャレンジャー 北長岡店(スーパー)まで800m
ウエルシア長岡泉店 (調剤薬局)(ドラッグストア)まで220m

※カメラのアイコンがある場合は、マウスをポイントするとその施設の画像がご覧いただけます。


担当取扱い店舗情報

取扱い店舗画像
新潟土地建物販売センター 株式会社
TEL: 0258-89-8245
所在地: 新潟県長岡市台町1-7-331階
交通: 長岡駅
営業時間: 9:00~18:00/定休日:なし
免許番号: 新潟県知事(3)第5151号 この会社の情報を詳しく見る
所属団体名: 公社 新潟県宅地建物取引協会 新潟支部
取引態様: 一般
ホームページ: https://niigata-tochitate.jp/