【二重断熱×24時間熱交換換気扇で省エネ&快適◎】 ◆オール電化×高気密高断熱住宅 ◆来客時に嬉しい駐車3台可能 ◆駅やスーパーが徒歩圏内!生活利便性良好
| 物件名/所在地 | 詳細 | 価格 | 
|---|---|---|
| 長岡市川崎 新築住宅
														 新潟県長岡市川崎1丁目320-2付近  | 
							
								
  | 
							29,800,000円 | 
| 外観 | 間取り | 
|---|---|
								![]() ※画像クリックで拡大表示 ご見学予約はお気軽にお問い合わせください! 
							 | 
							
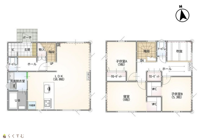
								![]() ※画像クリックで拡大表示 多彩な収納を備えた3LDK 
							 | 
						
| 詳細画像 | |
| 
								 | 
						|
| スーパー・コンビニ・ドラッグストアが車で5分圏内!毎日のお買い物に便利な立地です。長岡駅やバス停も徒歩圏内なのどで通勤通学も安心です◎詳細はお気軽にお問い合わせください(^^)/ | |||
| 物件コード | 00239-200496 | ||
|---|---|---|---|
| 物件名 | 長岡市川崎 新築住宅 | ||
| 交通 | 駅:上越新幹線 長岡駅から徒歩17分、バス:川崎入口から徒歩2分 | ||
| 物件所在地 | 新潟県長岡市川崎1丁目320-2付近 | ||
| 物件種別 | 新築一戸建て | ||
| 構造 | 木造 | 階建 | 地上2階建 | 
| 建ぺい率/容積率 | 60%/200% | ||
| 建物面積 | 1階 49.27㎡/ 2階 45.13㎡/ 計 94.4㎡ /28.55坪 | ||
| 土地面積 | 138㎡ /41.74坪 | ||
| 築年月 | 2025年3月(築8ヶ月) | ||
| 入居(引き渡し)時期 | 随時入居(引き渡し)可 | ||
| 用途地域 | 第2種中高層住居専用地域 | 地目 | - | 
| 都市計画 | 市街化区域 | 学校区 | 川崎小学校(500m)・東北中学校(900m) | 
| 形状 | 間口 10.0m × 奥行 14.0m | 道路 | 北側4.0m市道 | 
| 私道 | - | その他の制限 | 法22条/第二種高度地区/まちなか居住区域 | 
| 所在階/階数 | - | 号室 | - | 
|---|---|---|---|
| 販売価格 | 29,800,000円 | 方位 | 南 | 
| 間取り | 
																	3LDK (洋室:6.0、5.3、5.0) LDK18.8  | 
						||
| 専有面積 | - | バルコニー面積 | - | 
| その他面積 | - | 駐車場 | - | 
| 管理費 | - | 修繕積立金 | - | 
| 現況 | 空家 | ||
| 仲介手数料 | 1,049,400円 | ||
| 利用制限 | - | ||
| 設備 | 整形地、日当り良好、閑静な住宅街、スーパー近く、BELS/省エネ基準適合認定建物、LDK15畳以上、全室フローリング、駐車場2台以上、駐車場3台以上、南向き、TVインターホン、複層ガラス、システムキッチン、カウンターキッチン、IHクッキングヒーター、浄水器、食器洗浄乾燥機、追いだき機能付き、浴室暖房乾燥機、温水洗浄便座、シャワー付き洗面台、エアコン、24時間換気システム、オール電化、省エネ給湯、高気密高断熱住宅、上水道、下水道、電気、ウォークインクローゼット、全居室収納あり、シューズインクローゼット | ||
| 取引態様 | 一般 | ||
| 備考 | 【教育】 川崎小学校 約500m 徒歩約7分 東北中学校 約900m 徒歩約12分 【交通】 JR上越新幹線 長岡駅 徒歩約17分 越後交通バス 川崎入口 徒歩約2分 -物件情報- ■エアコン2台付きで初期費用が抑えられます ■シューズクローク・2箇所のWIC・ホール収納でお部屋がスッキリ片付きます ■開放的で明るい吹き抜けのあるLDK♪ ■2階ホールにはホスクリーン付き!天候に左右されずお洗濯可能◎ ■前面道路には消雪パイプ付き  | 
						||
| 取り扱い会社 | 
								 新潟土地建物販売センター 株式会社 新潟県長岡市台町1-7-331階  | 
						||
| 情報登録日 | 2025/10/07 | 次回更新予定日 | 2025/11/18 | 
| 取引条件有効期限 | 2026/12/31 | ||
| 
																		ファミリーマート 長岡川崎店(コンビニ)まで170m 原信 今朝白店(スーパー)まで640m  | 
																
																		長岡川崎町郵便局(郵便局)まで340m | 
															
※カメラのアイコンがある場合は、マウスをポイントするとその施設の画像がご覧いただけます。
						| TEL: | 0258-89-8245 | |
|---|---|---|
| 所在地: | 新潟県長岡市台町1-7-331階 | |
| 交通: | 長岡駅 | |
| 営業時間: | 9:00~18:00/定休日:なし | |
| 免許番号: | 新潟県知事(3)第5151号 | 
										
											 | 
								
| 所属団体名: | 公社 新潟県宅地建物取引協会 新潟支部 | |
| 取引態様: | 一般 | |
| ホームページ: | https://niigata-tochitate.jp/ | |