物件掲載企業数:300|賃貸物件:2,775件|売買物件:3,237件|今週の登録物件:262
閲覧中のブラウザ(インターネットエクスプローラー)は非推奨ブラウザです。
物件が正しく表示されなかったり、正しく検索されない場合があります。最新のブラウザ(Google Chrome・Edgeなど)にてご利用お願いいたします。
  

新潟県柏崎市関町6-5アンジュ枇杷島 投資物件・その他 6,200,000円の物件情報

【利回り12%!土地積算98%のリノベーション戸建】◆設備を一新したファミリー物件◆国道8号線至近、柏崎駅まで車約4分で利便性良好◆賃貸保証会社契約済で安心

物件名/所在地 詳細 価格
表面利回り
柏崎市関町 収益リノベーション戸建て
新潟県柏崎市関町6-5アンジュ枇杷島
  • 土地面積
    :261.01㎡ /78.95坪
  • 建ぺい率
    :60%
  • 容積率
    :200%
6,200,000
12%
(満室想定時)
  • 柏崎市関町 収益リノベーション戸建て
    新潟土地建物販売センター 株式会社
  • この物件を問い合わせる/無料
  • TEL: 0258-89-8245

物件画像

外観 間取り
物件画像
※画像クリックで拡大表示
内装リフォーム済!車庫付きの収益戸建です
物件画像
※画像クリックで拡大表示
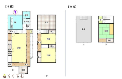
本棟+別棟
詳細画像


物件概要

物件コード 00239-200440
物件名 柏崎市関町 収益リノベーション戸建て
交通 駅:越後線 柏崎駅から徒歩13分、バス:宮場町から徒歩5分
物件所在地 新潟県柏崎市関町6-5アンジュ枇杷島
物件種別 投資物件・その他
物件区分 その他
構造 木造 階建 地上2階建
建ぺい率/容積率 60%/200%
建物面積 1階 64.19㎡/ 2階 37.26㎡/ 計 101.45㎡ /30.68坪
土地面積 261.01㎡ /78.95坪
築年月 1976年10月(築49年)
入居(引き渡し)時期 随時入居(引き渡し)可
用途地域 第1種低層住居専用地域 地目 宅地
都市計画 非線引き都市計画区域 学校区 枇杷島小学校(220m)・鏡が沖中学校(1,200m)
形状 - 道路 北側3.8m 42条2項道路
私道 - その他の制限 建築基準法22条区域内/斜線制限(道路・隣地) /日影制限
  • 柏崎市関町 収益リノベーション戸建て
    新潟土地建物販売センター 株式会社
  • この物件を問い合わせる/無料
  • TEL: 0258-89-8245

物件詳細情報

所在階/階数 - 号室 -
販売価格 6,200,000円 方位 -
表面利回り(満室想定時) 12% 満室想定年収 744,000円 (想定月収: 62,000円 )
現行利回り 12% 現行年間年収 744,000円
住戸数 -
間取り 3DKS
専有面積 - バルコニー面積 -
その他面積 - 駐車場 2~3台
管理費 6,000円 修繕積立金 -
現況 賃貸中
仲介手数料 330,000円
利用制限 ペット:可
設備 駐車場(近隣含む)、公営水道、都市ガス、下水道
取引態様 一般
備考 ※オーナーチェンジ物件※
・現在入居中のため現地見学は不可

■周辺のアパートは満室!賃貸需要の高いエリア
■倉庫(車庫+1室)付き
■固定資産税路線価:23,700円
■土地評価額:6,075,994円
■建物(本棟)評価額:1,466、288円
■建物(車庫)評価額:271,820円

【売買条件】
・境界非明示
・車庫は未登記のまま引渡し

【2024年2月 下記修繕・新設】
・お湯配管
・追い炊き配管
・給湯器
・温水洗浄暖房便座
・システムキッチン
・独立洗面台
・浴槽、鏡、混合水栓、換気扇、シャワーヘッド
・風呂バスナフローレ
・照明器具
・エアコン3基
・モニター付きインターホン
取り扱い会社

新潟土地建物販売センター 株式会社

新潟県長岡市台町1-7-331階

情報登録日 2025/12/22 次回更新予定日 2026/05/01
取引条件有効期限 2026/12/31
  • 柏崎市関町 収益リノベーション戸建て
    新潟土地建物販売センター 株式会社
  • この物件を問い合わせる/無料
  • TEL: 0258-89-8245

この物件の地図・周辺情報・行政情報

この物件の周辺情報・行政情報を詳しく見る
【周辺情報】
物件の近くにあるコンビニや銀行・学校など、アイコン付のマップで詳しく表示できます!
【行政情報】
水道料や下水道料・ガス料金など、暮らしに関係のある情報を表示しています。
セブン-イレブン 柏崎穂波町店(コンビニ)まで770m
ほなみ薬局(ドラッグストア)まで480m
柏崎枇杷島郵便局(郵便局)まで420m

※カメラのアイコンがある場合は、マウスをポイントするとその施設の画像がご覧いただけます。


担当取扱い店舗情報

取扱い店舗画像
新潟土地建物販売センター 株式会社
TEL: 0258-89-8245
所在地: 新潟県長岡市台町1-7-331階
交通: 長岡駅
営業時間: 9:00~18:00/定休日:なし
免許番号: 新潟県知事(3)第5151号 この会社の情報を詳しく見る
所属団体名: 公社 新潟県宅地建物取引協会 新潟支部
取引態様: 一般
ホームページ: https://niigata-tochitate.jp/