物件掲載企業数:300|賃貸物件:2,773件|売買物件:3,240件|今週の登録物件:268
閲覧中のブラウザ(インターネットエクスプローラー)は非推奨ブラウザです。
物件が正しく表示されなかったり、正しく検索されない場合があります。最新のブラウザ(Google Chrome・Edgeなど)にてご利用お願いいたします。
  

新潟県柏崎市諏訪町1-20 投資物件・その他 9,800,000円の物件情報

会社事務所、倉庫、寄宿舎、社員寮として利用可能。(一般住宅としても利用可能)

物件名/所在地 詳細 価格
表面利回り
柏崎市諏訪町3階建
新潟県柏崎市諏訪町1-20
  • 土地面積
    :296.22㎡ /89.6坪
  • 建ぺい率
    :80%
  • 容積率
    :200%
9,800,000
-
  • 柏崎市諏訪町3階建
    リメイク株式会社
  • この物件を問い合わせる/無料
  • TEL: 0257-41-6381

物件画像

外観 間取り
物件画像
※画像クリックで拡大表示
外観
物件画像
※画像クリックで拡大表示
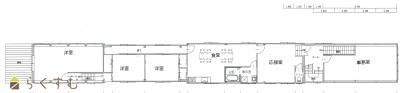
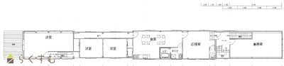
1階平面図
詳細画像


物件概要

市内中心部に近く幅広い利用用途に対応できます。
物件コード 00227-200073
物件名 柏崎市諏訪町3階建
交通 駅:越後線 東柏崎駅から徒歩9分、バス:諏訪町1丁目から徒歩2分
物件所在地 新潟県柏崎市諏訪町1-20
物件種別 投資物件・その他
物件区分 その他
構造 鉄骨 階建 地上3階建
建ぺい率/容積率 80%/200%
建物面積 計 444.24㎡ /134.38坪
土地面積 296.22㎡ /89.6坪
築年月 1970年4月(築56年)
入居(引き渡し)時期 随時入居(引き渡し)可
用途地域 商業地域 地目 宅地  (現状:宅地)
都市計画 非線引き都市計画区域 学校区 柏崎小学校(603m)・第一中学校(647m)
形状 - 道路 公道(県道)
私道 - その他の制限 準防火地域
  • 柏崎市諏訪町3階建
    リメイク株式会社
  • この物件を問い合わせる/無料
  • TEL: 0257-41-6381

物件詳細情報

所在階/階数 - 号室 -
販売価格 9,800,000円 方位 -
表面利回り(満室想定時) - 満室想定年収 - (想定月収: - )
現行利回り - 現行年間年収 -
住戸数 -
間取り 1F車庫、倉庫スペース、2F事務所、居住スペース、水廻り、3F居住スペース
専有面積 - バルコニー面積 -
その他面積 - 駐車場 -
管理費 - 修繕積立金 -
現況 空家
仲介手数料 389,400円
利用制限 -
設備 公営水道、都市ガス、下水道、事業向け、別荘、高利回り物件
取引態様 一般
備考 平成30年内部リフォーム。
正面電動シャッター。
取り扱い会社

リメイク株式会社

新潟県柏崎市土合615番地

情報登録日 2025/07/16 次回更新予定日 2026/05/01
取引条件有効期限 2025/10/16
  • 柏崎市諏訪町3階建
    リメイク株式会社
  • この物件を問い合わせる/無料
  • TEL: 0257-41-6381

この物件の地図・周辺情報・行政情報

この物件の周辺情報・行政情報を詳しく見る
【周辺情報】
物件の近くにあるコンビニや銀行・学校など、アイコン付のマップで詳しく表示できます!
【行政情報】
水道料や下水道料・ガス料金など、暮らしに関係のある情報を表示しています。
ローソン 柏崎学校町店(コンビニ)まで350m
セブン-イレブン 柏崎錦町店(コンビニ)まで400m
セブン-イレブン 柏崎新花町店(コンビニ)まで570m
デイリーヤマザキ 柏崎駅前1丁目店(コンビニ)まで840m
(株)石川薬局 中央店(ドラッグストア)まで150m
(有)石黒薬局(ドラッグストア)まで170m
(株)石川薬局 本店(ドラッグストア)まで180m
中央町薬局(ドラッグストア)まで410m
ウエルシア柏崎錦町店 (調剤薬局)(ドラッグストア)まで470m
柏崎信用金庫 諏訪町支店(銀行)まで290m
第四北越銀行 柏崎東本町支店(銀行)まで410m
新潟県労働金庫 柏崎支店(銀行)まで730m
柏崎信用金庫 本部(銀行)まで730m
柏崎信用金庫 本店(銀行)まで730m
柏崎東本町郵便局(郵便局)まで250m

※カメラのアイコンがある場合は、マウスをポイントするとその施設の画像がご覧いただけます。


担当取扱い店舗情報

取扱い店舗画像
リメイク株式会社
TEL: 0257-41-6381
所在地: 新潟県柏崎市土合615番地
交通:
営業時間: 8:30~17:30/定休日:土日年末年始・夏季など
免許番号: 新潟県知事(2)第5472号 この会社の情報を詳しく見る
所属団体名: 公社新潟県宅地建物取引業協会 柏崎支部
取引態様: 一般
ホームページ: https://remake-kabu.com/