物件掲載企業数:301|賃貸物件:3,289件|売買物件:3,251件|今週の登録物件:265
閲覧中のブラウザ(インターネットエクスプローラー)は非推奨ブラウザです。
物件が正しく表示されなかったり、正しく検索されない場合があります。最新のブラウザ(Google Chrome・Edgeなど)にてご利用お願いいたします。
  

新潟県新潟市中央区沼垂東6 中古一戸建て 3LDK 36,800,000円の物件情報

フルリノベーション住宅□1階に居室あり□リビング収納、廊下収納あり□ランドリールームからウォークインクローゼットにつながる家事動線□駐車スペース3台以上◇住宅ローン控除対象

物件名/所在地 詳細 価格
中央区沼垂リノベーション住宅
新潟県新潟市中央区沼垂東6
  • 土地面積
    :224.2㎡ /67.82坪
  • 建物面積
    :118.8㎡ /35.93坪
  • 間取り
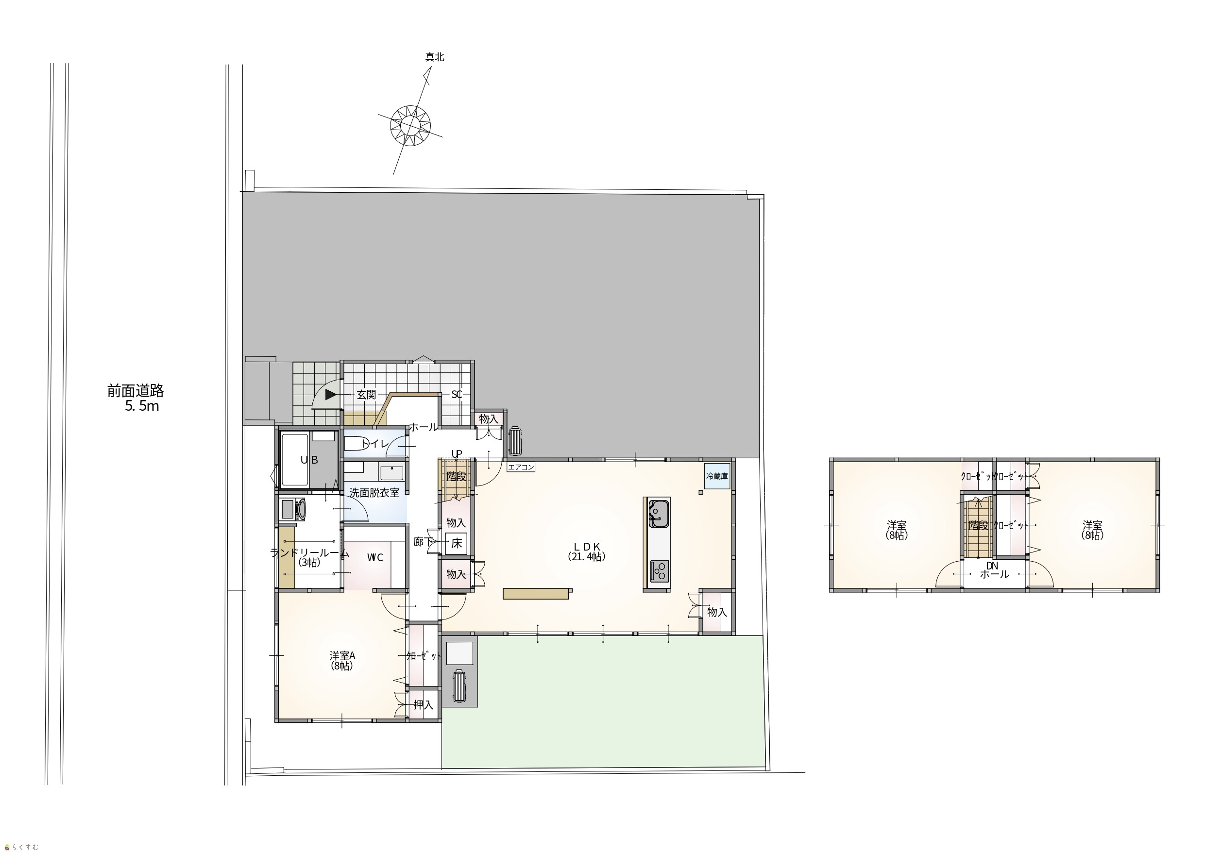
    :3LDK
  • 築年月
    :1981年6月
36,800,000
  • 中央区沼垂リノベーション住宅
    戸建エース / (株)アップデート不動産
  • この物件を問い合わせる/無料
  • TEL: 080-7019-1778

物件画像

外観 間取り
物件画像
※画像クリックで拡大表示
外観
物件画像
※画像クリックで拡大表示
間取り
詳細画像


物件概要

物件コード 00221-200293
物件名 中央区沼垂リノベーション住宅
交通 駅:上越新幹線 新潟駅から徒歩25分、バス:沼垂東五丁目から徒歩3分
物件所在地 新潟県新潟市中央区沼垂東6
物件種別 中古一戸建て
構造 木造 階建 地上2階建
建ぺい率/容積率 80%/300%
建物面積 1階 85.68㎡/ 2階 33.12㎡/ 計 118.8㎡ /35.93坪
土地面積 224.2㎡ /67.82坪
築年月 1981年6月(築44年)
入居(引き渡し)時期 相談
用途地域 近隣商業地域 地目 宅地
都市計画 市街化区域 学校区 沼垂小学校(810m)・東新潟中学校(817m)
形状 間口 15.5m 道路 道路幅5.4m
私道 - その他の制限 準防火地域
  • 中央区沼垂リノベーション住宅
    戸建エース / (株)アップデート不動産
  • この物件を問い合わせる/無料
  • TEL: 080-7019-1778

物件詳細情報

所在階/階数 - 号室 -
販売価格 36,800,000円 方位 南西
間取り 3LDK (洋室:8、8、8)
LDK21.4
専有面積 - バルコニー面積 -
その他面積 - 駐車場 -
管理費 - 修繕積立金 -
現況 空家
仲介手数料 なし
利用制限 -
設備 日当り良好、閑静な住宅街、修繕記録あり、建物確認・完了検査済証あり、LDK15帖以上、全室フローリング、駐車2台可能、駐車3台以上可能、南向き、TVインターホン、複層ガラス、デインプルキー、システムキッチン、カウンターキッチン、IHクッキングヒーター、食器洗浄乾燥機、3口コンロ、追いだき機能付き、バス1坪以上、温水洗浄便座、シャワー付き洗面台、エアコンあり、24時間換気システム、オール電化、省エネ給湯機、都市ガス、上水道、下水道、ウォークインクローゼット、全居室収納あり、シューズBOX、シューズインクローゼット、内装リフォーム済み、外装リフォーム済み、リノベーション物件
取引態様 売主
備考 ◆リフォーム内容
・屋根貼り換え
・外壁貼り換え
・玄関入れ替え
・水回り一式交換
・床張り替え
・断熱材入れ替え
・天井、壁紙貼り換え
・間取り変更
・和洋変更
・給湯器入れ替え
・庭解体
・ハウスクリーニング
取り扱い会社

戸建エース / (株)アップデート不動産

新潟県長岡市古正寺3丁目116

情報登録日 2026/05/23 次回更新予定日 2026/06/14
取引条件有効期限 2026/12/30
  • 中央区沼垂リノベーション住宅
    戸建エース / (株)アップデート不動産
  • この物件を問い合わせる/無料
  • TEL: 080-7019-1778

この物件の地図・周辺情報・行政情報

この物件の周辺情報・行政情報を詳しく見る
【周辺情報】
物件の近くにあるコンビニや銀行・学校など、アイコン付のマップで詳しく表示できます!
【行政情報】
水道料や下水道料・ガス料金など、暮らしに関係のある情報を表示しています。
ローソン 新潟沼垂西店(コンビニ)まで520m
くりの木歯科(病院)まで190m
大光銀行 沼垂支店(銀行)まで230m
新潟沼垂郵便局(郵便局)まで590m

※カメラのアイコンがある場合は、マウスをポイントするとその施設の画像がご覧いただけます。


担当取扱い店舗情報

取扱い店舗画像
戸建エース / (株)アップデート不動産
TEL: 080-7019-1778
所在地: 新潟県長岡市古正寺3丁目116
交通:
営業時間: 10:00~17:00/定休日:水曜日 木曜日
免許番号: 新潟県知事(2)第5484号 この会社の情報を詳しく見る
所属団体名: 新潟県宅地建物取引業協会 長岡支部
取引態様: 売主
ホームページ: https://update-estate.com/