物件掲載企業数:297|賃貸物件:3,605件|売買物件:3,282件|今週の登録物件:218
閲覧中のブラウザ(インターネットエクスプローラー)は非推奨ブラウザです。
物件が正しく表示されなかったり、正しく検索されない場合があります。最新のブラウザ(Google Chrome・Edgeなど)にてご利用お願いいたします。
  

新潟県長岡市与板町与板459番地 中古一戸建て 12DK 8,000,000円の物件情報

与板のまちの中心地に建つ店舗併用住宅です。

物件名/所在地 詳細 価格
与板町与板店舗併用住宅
新潟県長岡市与板町与板459番地
  • 土地面積
    :436.32㎡ /131.98坪
  • 建物面積
    :326.4㎡ /98.73坪
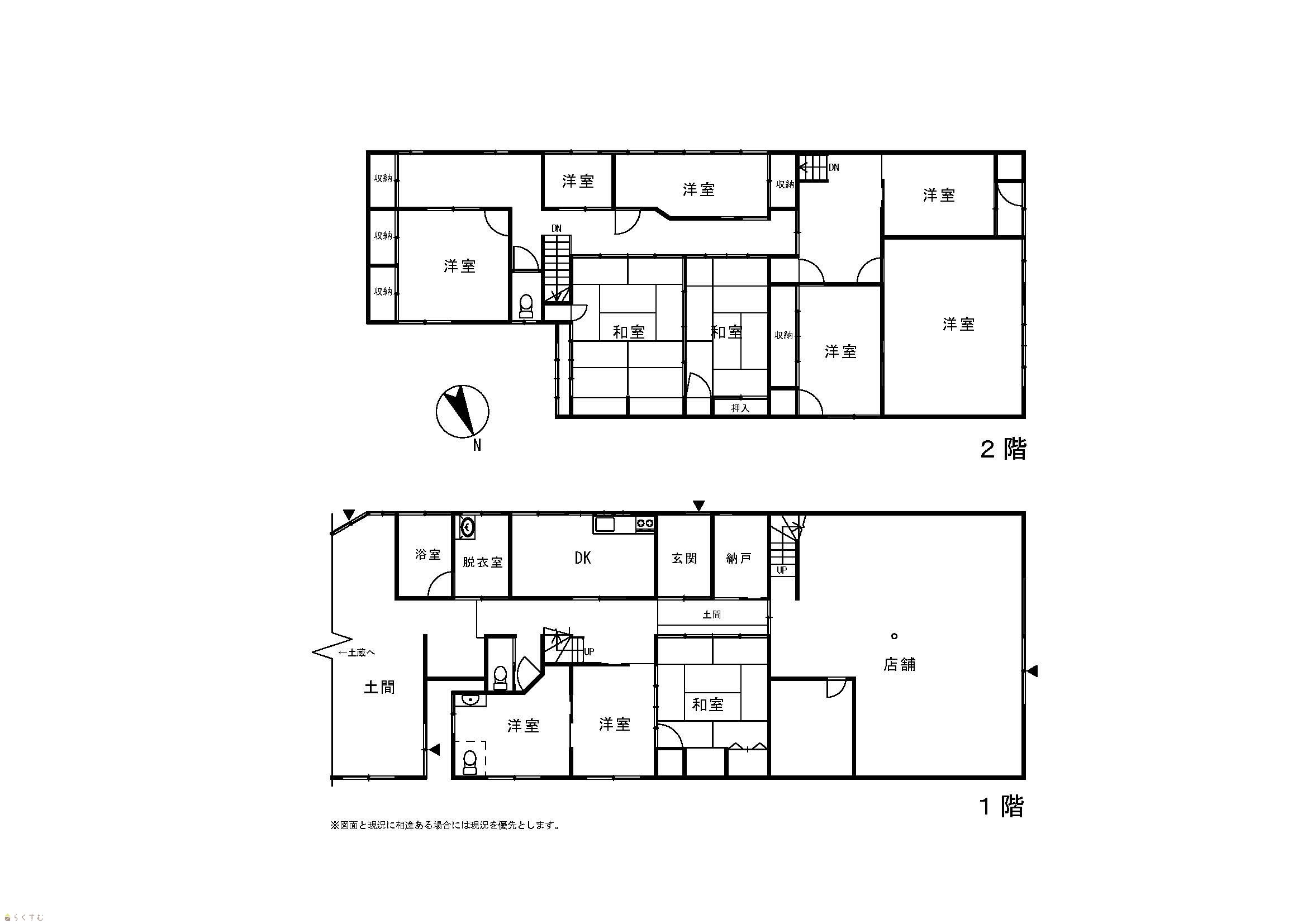
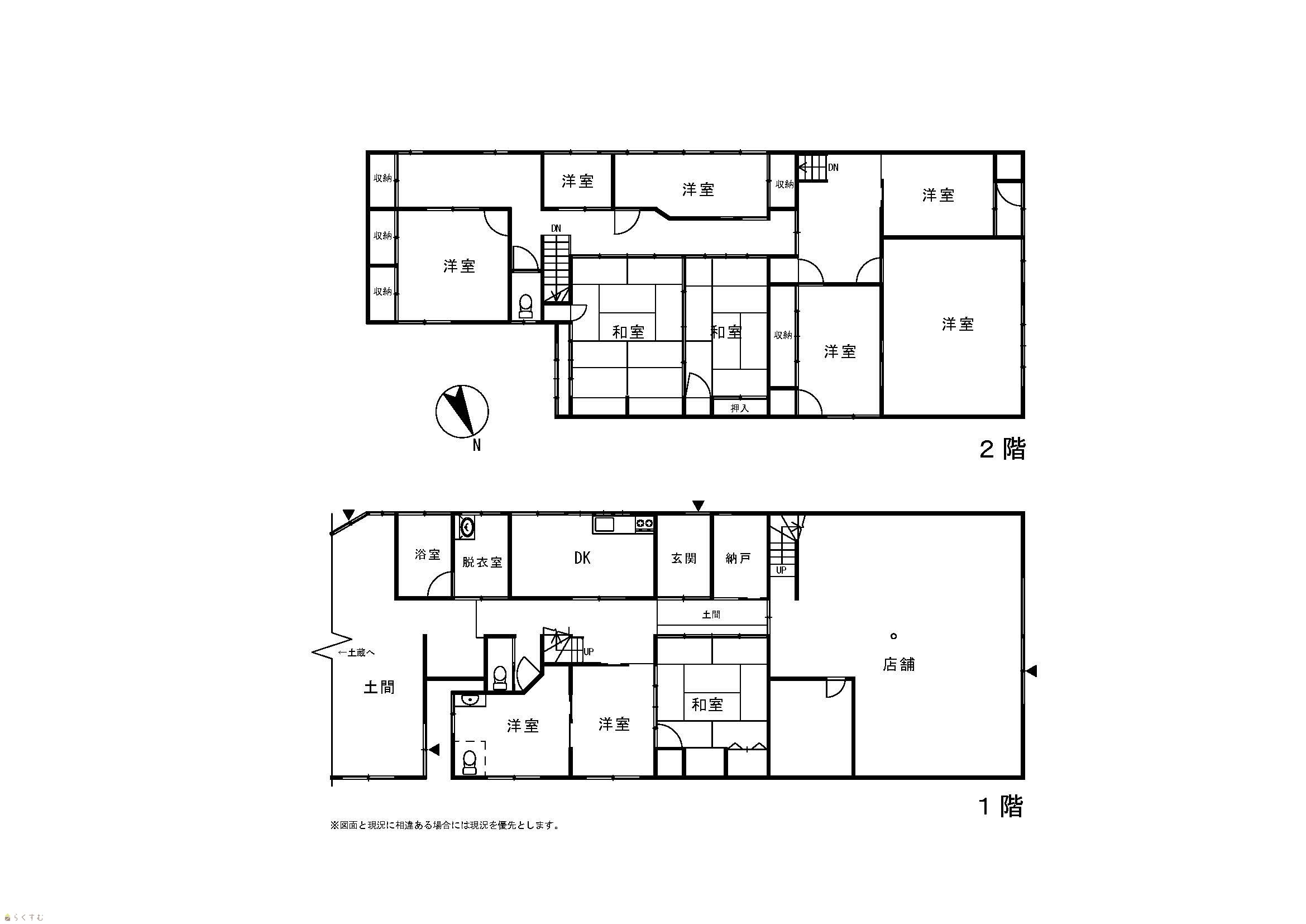
  • 間取り
    :12DK
  • 築年月
    :1935年1月
8,000,000
  • 与板町与板店舗併用住宅
    (株)池田組 
  • この物件を問い合わせる/無料
  • TEL: 0258-84-7781

物件画像

外観 間取り
物件画像
※画像クリックで拡大表示
外観
物件画像
※画像クリックで拡大表示
間取り図
詳細画像


物件概要

与板のまちの中心地に建つ店舗併用住宅です。住居部分は通り土間があり、古民家の趣が感じられます。
物件コード 00192-200015
物件名 与板町与板店舗併用住宅
交通 駅:越後線 小島谷駅から徒歩81分、バス:与板仲町から徒歩3分
物件所在地 新潟県長岡市与板町与板459番地
物件種別 中古一戸建て
構造 木造 階建 地上2階建
建ぺい率/容積率 80%/400%
建物面積 1階 173.12㎡/ 2階 153.28㎡/ 計 326.4㎡ /98.73坪
土地面積 436.32㎡ /131.98坪
築年月 1935年1月(築90年)
入居(引き渡し)時期 相談
用途地域 商業地域 地目 宅地  (現状:宅地)
都市計画 市街化区域 学校区 与板小学校(428m)・与板中学校(542m)
形状 間口 14m × 奥行 29m 道路 西側幅員14.9m(歩道含む)
私道 - その他の制限 準防火地域
  • 与板町与板店舗併用住宅
    (株)池田組 
  • この物件を問い合わせる/無料
  • TEL: 0258-84-7781

物件詳細情報

所在階/階数 - 号室 -
販売価格 8,000,000円 方位 西
間取り 12DK
店舗スペースあり
専有面積 - バルコニー面積 -
その他面積 - 駐車場 -
管理費 - 修繕積立金 -
現況 空家
仲介手数料 330,000円
利用制限 -
設備 駐車2台可能、システムキッチン、トイレ2か所以上、都市ガス、上水道、下水道、2世帯向き、事業向け
取引態様 一般
備考 ・土地面積は売買対象の土地4筆を合計したものです。
・付属建物に土蔵、物置、車庫、カーポートがあります。
・現況有姿での引き渡しとなります。
取り扱い会社

(株)池田組 

新潟県長岡市中島3-8-5

情報登録日 2024/12/16 次回更新予定日 2025/12/18
取引条件有効期限 2025/03/13
  • 与板町与板店舗併用住宅
    (株)池田組 
  • この物件を問い合わせる/無料
  • TEL: 0258-84-7781

この物件の地図・周辺情報・行政情報

この物件の周辺情報・行政情報を詳しく見る
【周辺情報】
物件の近くにあるコンビニや銀行・学校など、アイコン付のマップで詳しく表示できます!
【行政情報】
水道料や下水道料・ガス料金など、暮らしに関係のある情報を表示しています。
マルイ 与板店(スーパー)まで910m
第四北越銀行 与板支店(銀行)まで30m
大光銀行 与板支店(銀行)まで370m
与板郵便局(郵便局)まで120m

※カメラのアイコンがある場合は、マウスをポイントするとその施設の画像がご覧いただけます。


担当取扱い店舗情報

取扱い店舗画像
(株)池田組 
TEL: 0258-84-7781
所在地: 新潟県長岡市中島3-8-5
交通: 長岡駅
営業時間: 8:00~17:00/定休日:日曜、祝日、第2・4土曜
免許番号: 新潟県知事(5)第4552号 この会社の情報を詳しく見る
所属団体名: 公社 新潟県宅地建物取引協会 長岡支部
取引態様: 一般
ホームページ: http://local-life-standard.com/