物件掲載企業数:300|賃貸物件:2,773件|売買物件:3,235件|今週の登録物件:271
閲覧中のブラウザ(インターネットエクスプローラー)は非推奨ブラウザです。
物件が正しく表示されなかったり、正しく検索されない場合があります。最新のブラウザ(Google Chrome・Edgeなど)にてご利用お願いいたします。
  

新潟県三島郡出雲崎町大字川西字泉根366番地1 中古一戸建て 9DK 12,000,000円の物件情報

出雲崎町川西。風情豊かな庭を望む、9DKの中古住宅。敷地内大型車庫・作業所あり。

物件名/所在地 詳細 価格
出雲崎町 中古住宅 土地557坪・建物74坪
新潟県三島郡出雲崎町大字川西字泉根366番地1
  • 土地面積
    :1,842.32㎡ /557.3坪
  • 建物面積
    :247.22㎡ /74.78坪
  • 間取り
    :9DK
  • 築年月
    :1990年11月
12,000,000
  • 出雲崎町 中古住宅 土地557坪・建物74坪
    株式会社 ライフプラン
  • この物件を問い合わせる/無料
  • TEL: 0257-23-0500

物件画像

外観 間取り
物件画像
※画像クリックで拡大表示
外観
物件画像
※画像クリックで拡大表示
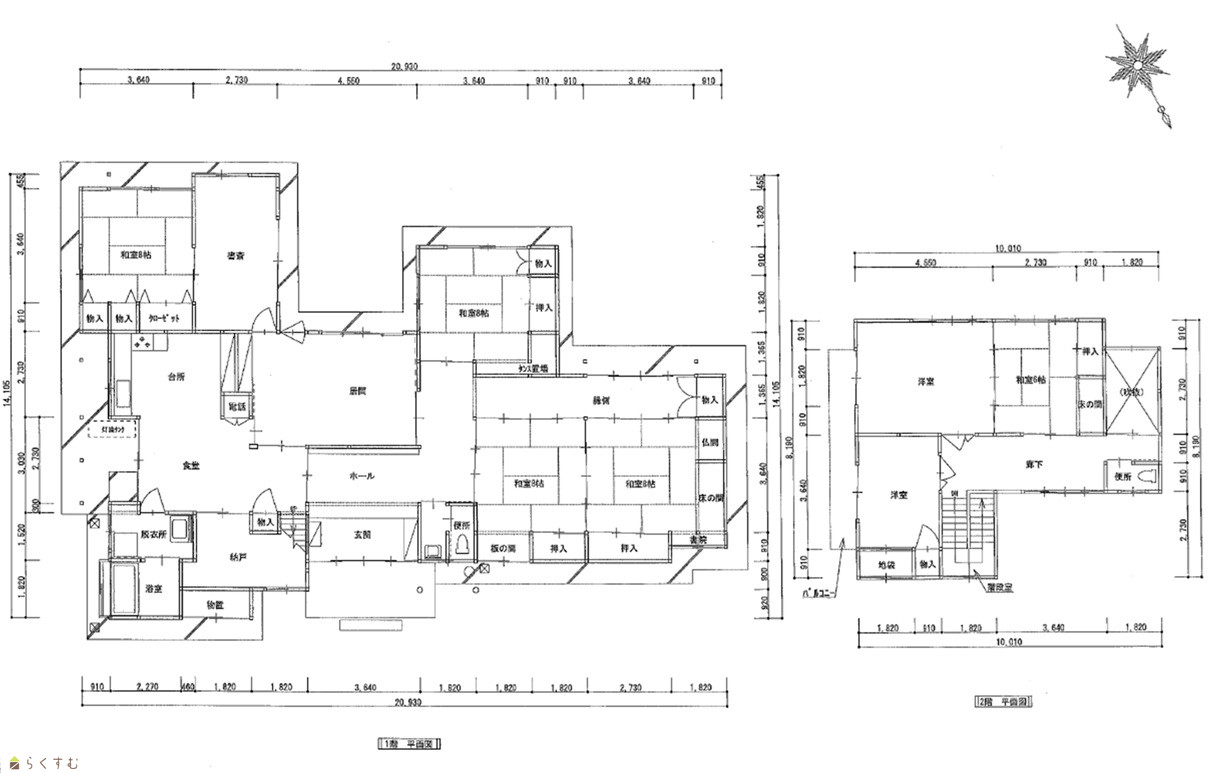
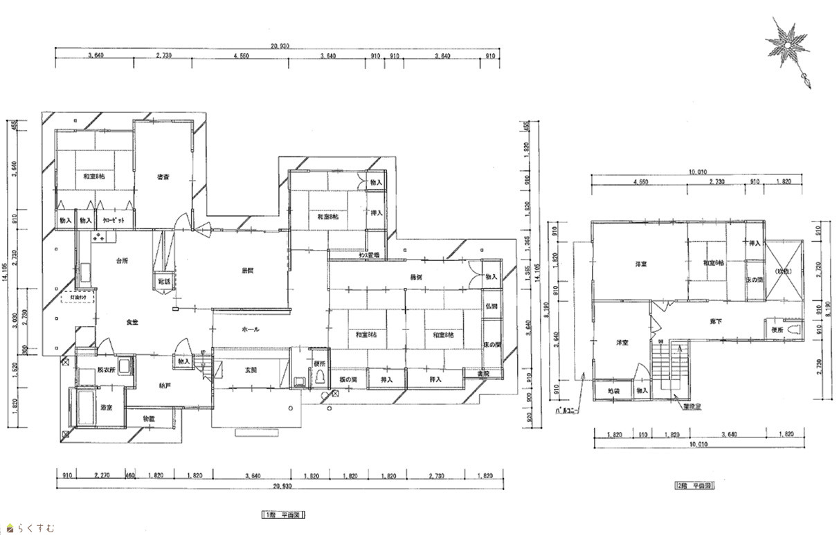
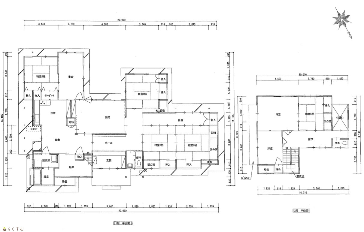
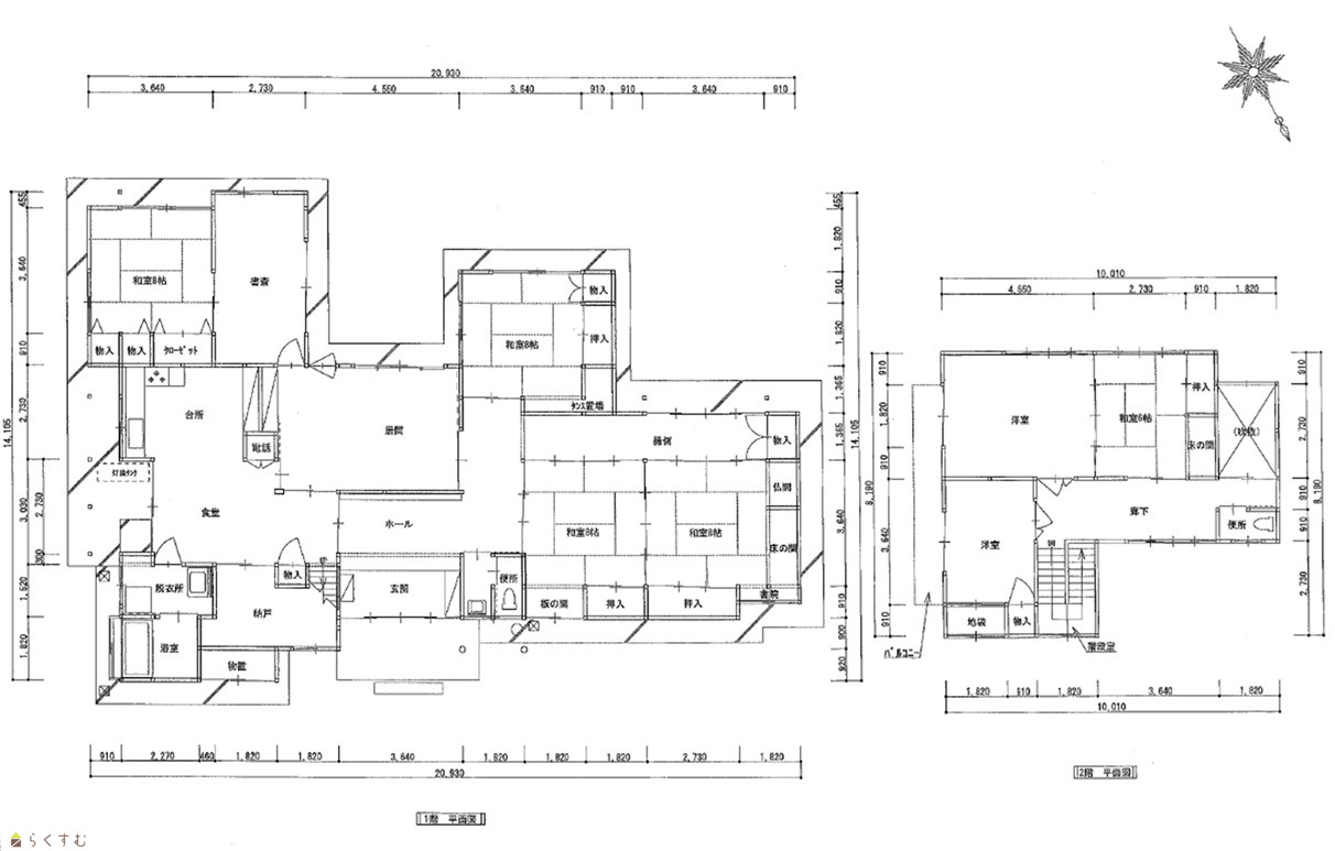
間取図
詳細画像


物件概要

周辺は自然豊かで野鳥の鳴き声も聞こえてきます。
物件コード 00190-200295
物件名 出雲崎町 中古住宅 土地557坪・建物74坪
交通 駅:越後線 出雲崎駅から徒歩14分、バス:出雲崎役場前から徒歩13分
物件所在地 新潟県三島郡出雲崎町大字川西字泉根366番地1
物件種別 中古一戸建て
構造 木造 階建 地上2階建
建ぺい率/容積率 -
建物面積 1階 187.59㎡/ 2階 59.63㎡/ 計 247.22㎡ /74.78坪
土地面積 1,842.32㎡ /557.3坪
築年月 1990年11月(築35年)
入居(引き渡し)時期 随時入居(引き渡し)可
用途地域 無指定 地目 宅地、雑種地
都市計画 都市計画区域外 学校区 出雲崎小学校(816m)・出雲崎中学校(1,239m)
形状 間口 70.05m × 奥行 49.62m 道路 北東側、町道中ノ谷線(幅員:6.1m~11.6m)
私道 - その他の制限 -
  • 出雲崎町 中古住宅 土地557坪・建物74坪
    株式会社 ライフプラン
  • この物件を問い合わせる/無料
  • TEL: 0257-23-0500

物件詳細情報

所在階/階数 - 号室 -
販売価格 12,000,000円 方位 北東
間取り 9DK (和室:6畳、8畳、8畳、8畳、8畳) (洋室:6、8、10、12)
専有面積 - バルコニー面積 -
その他面積 58.53㎡ /17.7坪  敷地内、作業所 駐車場 -
管理費 - 修繕積立金 -
現況 空家
仲介手数料 462,000円
利用制限 -
設備 日当り良好、閑静な住宅街、駐車3台以上可能、3口コンロ、ガスコンロ設置済み、追いだき機能付き、バス1坪以上、トイレ2か所以上、シャワー付き洗面台、LPG、上水道、下水道、2世帯向き、即引き渡し可能、別荘、田舎暮らし、事業向け
取引態様 一般
備考 ・建物内外部の家財類は、引渡時までに売主にて撤去します。※一部写真は、CGで家具等を消したものであり、現況と異なる可能性がございます。
・現況でのお引渡しとなります。(令和7年6月、建物内部調査記録あり)※建物に傾きがあります。
・居宅面積は、247.22㎡(74.78坪)。その他、敷地内に作業所があります。(58.53㎡/17.70坪)
取り扱い会社

株式会社 ライフプラン

新潟県柏崎市半田2-1-17

情報登録日 2025/08/19 次回更新予定日 2026/05/01
取引条件有効期限 2026/03/31
  • 出雲崎町 中古住宅 土地557坪・建物74坪
    株式会社 ライフプラン
  • この物件を問い合わせる/無料
  • TEL: 0257-23-0500

この物件の地図・周辺情報・行政情報

この物件の周辺情報・行政情報を詳しく見る
【周辺情報】
物件の近くにあるコンビニや銀行・学校など、アイコン付のマップで詳しく表示できます!
【行政情報】
水道料や下水道料・ガス料金など、暮らしに関係のある情報を表示しています。
出雲崎町役場(市区町村機関)まで1500m
出雲崎町立出雲崎小学校(学校)まで1000m

※カメラのアイコンがある場合は、マウスをポイントするとその施設の画像がご覧いただけます。


担当取扱い店舗情報

取扱い店舗画像
株式会社 ライフプラン
TEL: 0257-23-0500
所在地: 新潟県柏崎市半田2-1-17
交通: R8バイパス「半田中央」交差点角
営業時間: 9:00~17:30/定休日:土・日・祝(ご予約にて対応可能です。)
免許番号: 新潟県知事(9)第3314号 この会社の情報を詳しく見る
所属団体名: 公社 宅地建物取引業協会 柏崎支部
取引態様: 一般
ホームページ: http://www.kk-life-plan.co.jp/