物件掲載企業数:301|賃貸物件:3,182件|売買物件:3,223件|今週の登録物件:113
閲覧中のブラウザ(インターネットエクスプローラー)は非推奨ブラウザです。
物件が正しく表示されなかったり、正しく検索されない場合があります。最新のブラウザ(Google Chrome・Edgeなど)にてご利用お願いいたします。
  

新潟県上越市岩木508-4 中古一戸建て 3LDK 15,500,000円の物件情報

物件名/所在地 詳細 価格
岩木 中古住宅
新潟県上越市岩木508-4
  • 土地面積
    :247.92㎡ /74.99坪
  • 建物面積
    :69.55㎡ /21.03坪
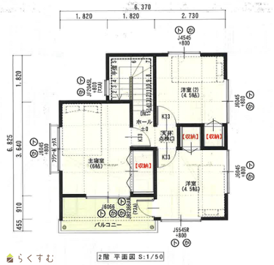
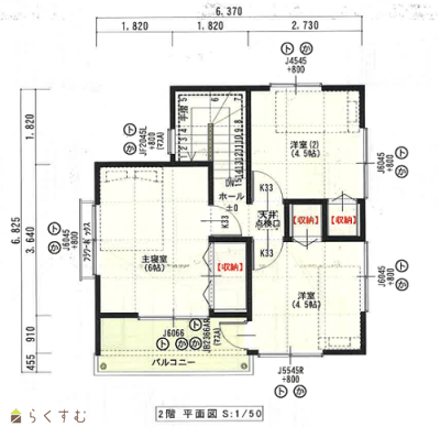
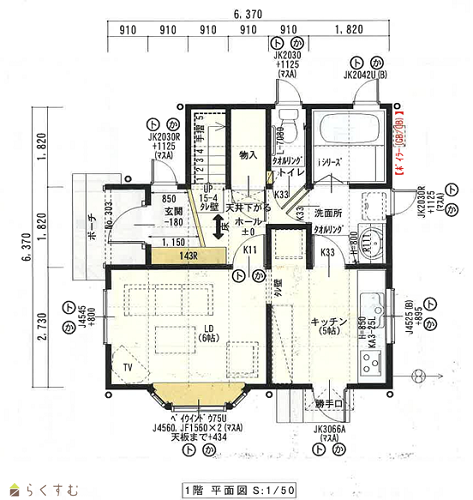
  • 間取り
    :3LDK
  • 築年月
    :2009年5月
15,500,000
  • 岩木 中古住宅
    アスナビ地所株式会社
  • この物件を問い合わせる/無料
  • TEL: 025-530-7340

物件画像

外観 間取り
物件画像
※画像クリックで拡大表示
外観
物件画像
※画像クリックで拡大表示
間取り
詳細画像


物件概要

物件コード 00159-200199
物件名 岩木 中古住宅
交通 駅:妙高はねうまライン 春日山駅から徒歩38分、バス:岩木入口から徒歩6分
物件所在地 新潟県上越市岩木508-4
物件種別 中古一戸建て
構造 木造 階建 地上2階建
建ぺい率/容積率 60%/200%
建物面積 1階 35.6㎡/ 2階 33.95㎡/ 計 69.55㎡ /21.03坪
土地面積 247.92㎡ /74.99坪
築年月 2009年5月(築17年)
入居(引き渡し)時期 相談
用途地域 第1種住居地域 地目 宅地  (現状:宅地)
都市計画 市街化区域 学校区 春日小学校(2,033m)・春日中学校(2,613m)
形状 間口 12m × 奥行 14m 道路 北側4.5m
私道 - その他の制限 -
  • 岩木 中古住宅
    アスナビ地所株式会社
  • この物件を問い合わせる/無料
  • TEL: 025-530-7340

物件詳細情報

所在階/階数 - 号室 -
販売価格 15,500,000円 方位
間取り 3LDK (洋室:6、4.5、4.5)
LD6
専有面積 - バルコニー面積 -
その他面積 - 駐車場 -
管理費 - 修繕積立金 -
現況 空家
仲介手数料 577,500円
利用制限 -
設備 南向き
取引態様 一般
備考 -
取り扱い会社

アスナビ地所株式会社

新潟県上越市東町2-14グランデ直江津駅前101 

情報登録日 2025/11/28 次回更新予定日 2026/05/22
取引条件有効期限 2025/12/28
  • 岩木 中古住宅
    アスナビ地所株式会社
  • この物件を問い合わせる/無料
  • TEL: 025-530-7340

この物件の地図・周辺情報・行政情報

この物件の周辺情報・行政情報を詳しく見る
【周辺情報】
物件の近くにあるコンビニや銀行・学校など、アイコン付のマップで詳しく表示できます!
【行政情報】
水道料や下水道料・ガス料金など、暮らしに関係のある情報を表示しています。

担当取扱い店舗情報

取扱い店舗画像
アスナビ地所株式会社
TEL: 025-530-7340
所在地: 新潟県上越市東町2-14グランデ直江津駅前101 
交通: 直江津駅 徒歩5分
営業時間: 9:00~18:00(日・祭9:00~17:00)/定休日:水曜日
免許番号: 新潟県知事(2)第5296号 この会社の情報を詳しく見る
所属団体名: 新潟県宅地建物取引業協会 上越支部
取引態様: 一般
ホームページ: http://asu-navi.com/