物件掲載企業数:296|賃貸物件:3,528件|売買物件:3,305件|今週の登録物件:315
閲覧中のブラウザ(インターネットエクスプローラー)は非推奨ブラウザです。
物件が正しく表示されなかったり、正しく検索されない場合があります。最新のブラウザ(Google Chrome・Edgeなど)にてご利用お願いいたします。
  

新潟県見附市葛巻1丁目10-10付近 売土地・分譲地 5,698,000円の物件情報

◆引っ越しサポート10万円分チケットプレゼントキャンペーン実施中! ■徒歩10分圏内にスーパー2軒あり ■閑静な住宅地 ■前面道路は消雪パイプ整備済み ■仲介手数料不要

物件名/所在地 詳細 価格
見附市葛巻1丁目 分譲地【全5区画】 ※建築条件付き
新潟県見附市葛巻1丁目10-10付近
  • 土地面積
    :149.1㎡ /45.1坪
  • 坪単価
    :120,085円/坪
  • 建ぺい率
    :60%
  • 容積率
    :200%
5,698,000
  • 見附市葛巻1丁目 分譲地【全5区画】 ※建築条件付き
    ハーバーエステート株式会社 
  • この物件を問い合わせる/無料
  • TEL: 0120-228-815

物件画像

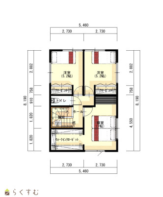
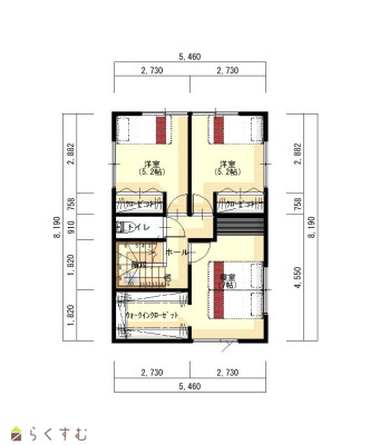
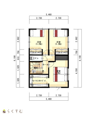
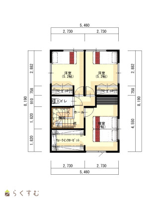
外観 間取り
物件画像
※画像クリックで拡大表示
区画図
物件画像
※画像クリックで拡大表示
価格表
詳細画像


物件概要

物件コード 00154-200666
物件名 見附市葛巻1丁目 分譲地【全5区画】 ※建築条件付き
交通 駅:信越線 見附駅から徒歩22分、バス:葛巻から徒歩5分
物件所在地 新潟県見附市葛巻1丁目10-10付近
物件種別 売土地・分譲地
物件区分 売土地
構造 - 階建 -
建ぺい率/容積率 60%/200%
建物面積 -
土地面積 149.1㎡ /45.1坪
築年月 -
入居(引き渡し)時期 相談
用途地域 第1種住居地域 地目 宅地
都市計画 市街化区域 学校区 葛巻小学校(1,288m)・西中学校(505m)
形状 - 道路 区画図参照
私道 - その他の制限 法22条指定区域
  • 見附市葛巻1丁目 分譲地【全5区画】 ※建築条件付き
    ハーバーエステート株式会社 
  • この物件を問い合わせる/無料
  • TEL: 0120-228-815

物件詳細情報

所在階/階数 - 号室 -
販売価格 5,698,000円 方位 -
間取り -
専有面積 - バルコニー面積 -
その他面積 - 駐車場 -
管理費 - 修繕積立金 -
現況 更地
仲介手数料 なし
利用制限 -
設備 角地、前道6m以上、更地、スーパー近く、閑静な住宅街、所有権、電気、都市ガス(宅地内)、上水道(宅地内)、下水道(宅地内)
取引態様 売主
備考 引っ越しサポート10万円分チケットプレゼントキャンペーン実施中!
対象となるお客様:
2026年3月末日までに、当社にて対象物件の売買契約を完了いただいたお客様。
・当社へ直接お問い合わせいただいたお客様が対象となります。
(他社様を通じたお問い合わせは対象外となります。)
・チケットはご購入いただいた「対象物件」にのみご利用いただけます。
プレゼント内容:
ご入居の際にかかるお引越し費用を10万円まで当社がサポートいたします。
ご注意事項:
・チケット金額を超える費用は、お客様の自己負担となります。

=========================================
■販売価格 569.8万円~685万円
■土地面積 149.10m2(45.1坪)~156.91m2(47.46坪)

※ハーバーハウス株式会社の建築条件付きです。
※2025年6月末引渡し予定です。

【建物プラン例 区画1】
建物参考価格:2170.3万円(税込)
建物面積:約87.77m2(約26.54坪)

【建物プラン例 区画5】
建物参考価格:2296.8万円(税込)
建物面積:約91.08m2(約27.48坪)
取り扱い会社

ハーバーエステート株式会社 

新潟県長岡市神田町2-1-2

情報登録日 2026/02/01 次回更新予定日 2026/02/16
取引条件有効期限 2026/03/31
  • 見附市葛巻1丁目 分譲地【全5区画】 ※建築条件付き
    ハーバーエステート株式会社 
  • この物件を問い合わせる/無料
  • TEL: 0120-228-815

この物件の地図・周辺情報・行政情報

この物件の周辺情報・行政情報を詳しく見る
【周辺情報】
物件の近くにあるコンビニや銀行・学校など、アイコン付のマップで詳しく表示できます!
【行政情報】
水道料や下水道料・ガス料金など、暮らしに関係のある情報を表示しています。

担当取扱い店舗情報

取扱い店舗画像
ハーバーエステート株式会社 
TEL: 0120-228-815
所在地: 新潟県長岡市神田町2-1-2
交通: 長岡駅
営業時間: 10:00~18:00/定休日:無休
免許番号: 国土交通大臣(2)第9588号 この会社の情報を詳しく見る
所属団体名: 全日本不動産協会 新潟県本部
取引態様: 売主
ホームページ: http://www.niigata-tochi.com/