スーパーや銀行等も近く、利便性抜群の好立地。1階車庫・居住エリアは2階3階です。
| 物件名/所在地 | 詳細 | 価格 | 
|---|---|---|
| 東宮内町中古建て
														 新潟県長岡市東宮内町3153-2  | 
							
								
  | 
							14,900,000円 | 
| 外観 | 間取り | 
|---|---|
| 
								 ※画像クリックで拡大表示 外観 
							 | 
							
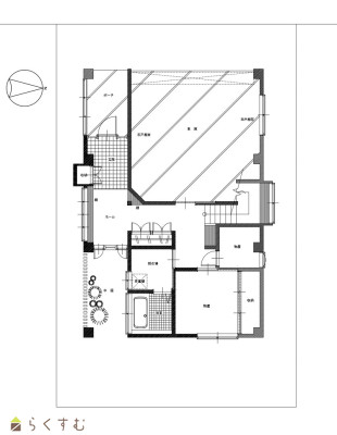
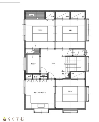
								![]() ※画像クリックで拡大表示 平面図(1階~3階) 
							 | 
						
| 詳細画像 | |
| 
								 | 
						|
| スーパーや銀行等も近く、利便性抜群の好立地。1階車庫・居住エリアは2階3階です。 | |||
| 物件コード | 00125-200094 | ||
|---|---|---|---|
| 物件名 | 東宮内町中古建て | ||
| 交通 | 駅:上越線 宮内駅から徒歩9分、バス:東宮内から徒歩3分 | ||
| 物件所在地 | 新潟県長岡市東宮内町3153-2 | ||
| 物件種別 | 中古一戸建て | ||
| 構造 | 木造・鉄骨造 | 階建 | 地上3階建 | 
| 建ぺい率/容積率 | 60%/200% | ||
| 建物面積 | 1階 66.52㎡/ 2階 81.69㎡/ 3階 79.49㎡/ 計 227.7㎡ /68.87坪 | ||
| 土地面積 | 149.83㎡ /45.32坪 | ||
| 築年月 | 1986年3月(築39年) | ||
| 入居(引き渡し)時期 | 相談 | ||
| 用途地域 | 第1種住居地域 | 地目 | 宅地 | 
| 都市計画 | 市街化区域 | 学校区 | 宮内小学校(445m)・宮内中学校(598m) | 
| 形状 | - | 道路 | 市道398号線幅員5.9m 消雪設備あり | 
| 私道 | なし | その他の制限 | 建築基準法第22条・まちなか居住区域・三種高度地区 | 
| 所在階/階数 | - | 号室 | - | 
|---|---|---|---|
| 販売価格 | 14,900,000円 | 方位 | 西 | 
| 間取り | 
																	6DK (和室:8.0畳、8.0畳、8.0畳、8.0畳) (洋室:6.0、8.0) DK8.0  | 
						||
| 専有面積 | - | バルコニー面積 | - | 
| その他面積 | - | 駐車場 | - | 
| 管理費 | - | 修繕積立金 | - | 
| 現況 | 空家 | ||
| 仲介手数料 | 557,700円 | ||
| 利用制限 | - | ||
| 設備 | 閑静な住宅街、スーパー近く、駐車2台可能、都市ガス、上水道、下水道、2世帯向き | ||
| 取引態様 | 一般 | ||
| 備考 | 1階:車庫・物置・浴室/2階:Dキッチン・8帖和室×3室・トイレ/3階:8帖和室×1室・8帖洋室×1室・6帖洋室×1室・屋根裏部屋2室※3階のミニキッチン・トイレは現在使用できません。使用する場合は別途工事が必要です(買主負担) ■売主「契約不適合責任」免責 ■消雪組合費+町会費(買主負担) | ||
| 取り扱い会社 | 
								 株式会社フォレス・タカダ 新潟県長岡市摂田屋5-6-22  | 
						||
| 情報登録日 | 2025/06/20 | 次回更新予定日 | 2025/11/18 | 
| 取引条件有効期限 | 2025/09/30 | ||
| 
																		ローソン 長岡笹崎一丁目店(コンビニ)まで410m セブン-イレブン 長岡宮内駅前通り店(コンビニ)まで360m 原信 宮内店(スーパー)まで540m ウオロク 要町店(スーパー)まで620m  | 
																
																		(生協)こどもクリニック(病院)まで130m 長岡信用金庫 宮内支店(銀行)まで480m 越後宮内郵便局(郵便局)まで340m  | 
															
※カメラのアイコンがある場合は、マウスをポイントするとその施設の画像がご覧いただけます。
						| TEL: | 0258-39-2919 | |
|---|---|---|
| 所在地: | 新潟県長岡市摂田屋5-6-22 | |
| 交通: | 信越線〔宮内駅〕徒歩13分 | |
| 営業時間: | 8:30~17:30/定休日:隔週土曜・日曜日・祝/会社カレンダーによる | |
| 免許番号: | 新潟県知事(8)第3591号 | 
										
											 | 
								
| 所属団体名: | 新潟県宅地建物取引業協会 長岡支部 | |
| 取引態様: | 一般 | |
| ホームページ: | http://www.takada-arc.com | |