☆飲食店やシェアキッチン・キッチンラボ等いかがでしょうか。もちろん飲食以外にも活用OK! 事業者様向きの物件です。
| 物件名/所在地 | 詳細 | 価格
							 表面利回り  | 
						
|---|---|---|
| 平島1丁目 売店舗・事務所
														 新潟県長岡市平島1丁目112  | 
							
								
  | 
							
															23,500,000円
																						 -  | 
						
| 外観 | 間取り | 
|---|---|
| 
								 ※画像クリックで拡大表示 外観写真01 
							 | 
							
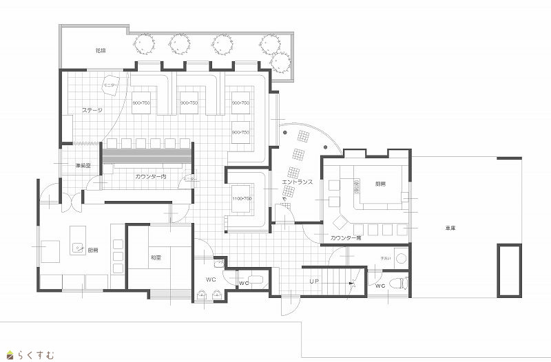
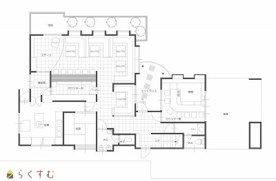
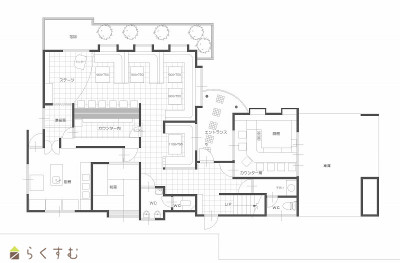
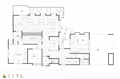
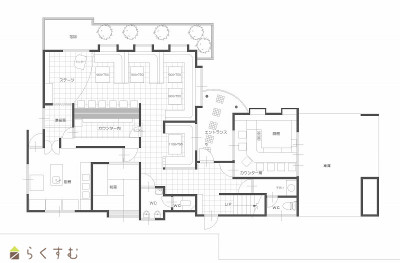
								![]() ※画像クリックで拡大表示 1階平面図 
							 | 
						
| 詳細画像 | |
| 
								 | 
						|
| ☆飲食店やシェアキッチン・キッチンラボ等いかがでしょうか。もちろん飲食以外にも活用OK! 事業者様向きの物件です。 | |||
| 物件コード | 00125-200091 | ||
|---|---|---|---|
| 物件名 | 平島1丁目 売店舗・事務所 | ||
| 交通 | 駅:信越線 宮内駅から徒歩16分、バス:平島上口から徒歩4分 | ||
| 物件所在地 | 新潟県長岡市平島1丁目112 | ||
| 物件種別 | 投資物件・その他 | ||
| 物件区分 | その他 | ||
| 構造 | 木造 | 階建 | 地上2階建 | 
| 建ぺい率/容積率 | 60%/200% | ||
| 建物面積 | 1階 108.71㎡/ 2階 47.2㎡/ 計 155.91㎡ /47.16坪 | ||
| 土地面積 | 468.82㎡ /141.81坪 | ||
| 築年月 | 1979年5月(築46年) | ||
| 入居(引き渡し)時期 | 相談 | ||
| 用途地域 | 準工業地域 | 地目 | 宅地 | 
| 都市計画 | 市街化区域 | 学校区 | 宮内小学校(979m)・宮内中学校(740m) | 
| 形状 | - | 道路 | 長岡市道 幅員10M(歩道含む) 消雪あり | 
| 私道 | - | その他の制限 | 建基法22条指定区域・大規模集客施設制限地区 | 
| 所在階/階数 | - | 号室 | - | 
|---|---|---|---|
| 販売価格 | 23,500,000円 | 方位 | - | 
| 表面利回り(満室想定時) | - | 満室想定年収 | - (想定月収: - ) | 
| 現行利回り | - | 現行年間年収 | - | 
| 住戸数 | - | ||
| 間取り | 1階:厨房エリア(厨房機器設備なし)・カウンター席・客席・ステージ・和室4.5帖1室・トイレ2ヵ所・1階洋室8帖1室/2階和室10帖2室 | ||
| 専有面積 | - 155.91㎡ /47.16坪 | バルコニー面積 | - | 
| その他面積 | - | 駐車場 | 約6台・屋根なし | 
| 管理費 | - | 修繕積立金 | - | 
| 現況 | 空家 | ||
| 仲介手数料 | 841,500円 | ||
| 利用制限 | - | ||
| 設備 | 駐車場(近隣含む)、公営水道、都市ガス、下水道、事業向け | ||
| 取引態様 | 一般 | ||
| 備考 | ■町内会費・消雪組合費の借主負担あり ■1階:厨房エリア(厨房機器設備なし)・カウンター席・客席・ステージ・和室4.5帖1室・トイレ2ヵ所・1階洋室8帖1室/2階和室10帖2室 | ||
| 取り扱い会社 | 
								 株式会社フォレス・タカダ 新潟県長岡市摂田屋5-6-22  | 
						||
| 情報登録日 | 2024/09/27 | 次回更新予定日 | 2025/11/18 | 
| 取引条件有効期限 | 2024/12/31 | ||
| 
																		ローソン 長岡摂田屋町店(コンビニ)まで350m デイリーヤマザキ 長岡平島1丁目店(コンビニ)まで280m  | 
																
																		セブン-イレブン 長岡南中央通り店(コンビニ)まで350m ファミリーマート 長岡宮栄店(コンビニ)まで560m  | 
															
※カメラのアイコンがある場合は、マウスをポイントするとその施設の画像がご覧いただけます。
						| TEL: | 0258-39-2919 | |
|---|---|---|
| 所在地: | 新潟県長岡市摂田屋5-6-22 | |
| 交通: | 信越線〔宮内駅〕徒歩13分 | |
| 営業時間: | 8:30~17:30/定休日:隔週土曜・日曜日・祝/会社カレンダーによる | |
| 免許番号: | 新潟県知事(8)第3591号 | 
										
											 | 
								
| 所属団体名: | 新潟県宅地建物取引業協会 長岡支部 | |
| 取引態様: | 一般 | |
| ホームページ: | http://www.takada-arc.com | |