物件掲載企業数:299|賃貸物件:3,595件|売買物件:3,320件|今週の登録物件:211
閲覧中のブラウザ(インターネットエクスプローラー)は非推奨ブラウザです。
物件が正しく表示されなかったり、正しく検索されない場合があります。最新のブラウザ(Google Chrome・Edgeなど)にてご利用お願いいたします。
  

新潟県長岡市陽光台4丁目1379-167 新築一戸建て 2LDK 25,800,000円の物件情報

【9/2 価格改定しました!】太陽光パネル搭載で電気代がお得に!インナーガレージ2台分、雪の日の乗り降りもストレスフリーで生活できます。自然落雪の屋根だから雪下ろしをしなくても安心!

物件名/所在地 詳細 価格
陽光台 3層階のデザイン住宅
新潟県長岡市陽光台4丁目1379-167
  • 土地面積
    :205.22㎡ /62.07坪
  • 建物面積
    :115.09㎡ /34.81坪
  • 間取り
    :2LDK
  • 築年月
    :2024年4月
25,800,000
  • 陽光台 3層階のデザイン住宅
    ダイエープロビス株式会社
  • この物件を問い合わせる/無料
  • TEL: 0258-24-1110

物件画像

外観 間取り
物件画像
※画像クリックで拡大表示
外観
物件画像
※画像クリックで拡大表示
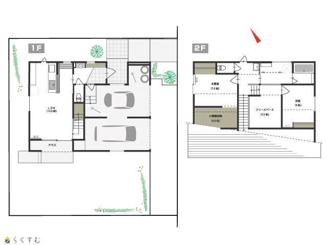
間取り
詳細画像


物件概要

空間を無駄なく使った、1階+1.5階+2階の3層プラン!心地よく家族が自然に集まる、南向きリビングとテラス
物件コード 00101-200394
物件名 陽光台 3層階のデザイン住宅
交通 駅:信越線 長岡駅から徒歩152分、バス:陽光台3丁目から徒歩7分
物件所在地 新潟県長岡市陽光台4丁目1379-167
物件種別 新築一戸建て
構造 木造 階建 地上2階建
建ぺい率/容積率 60%/200%
建物面積 1階 66.24㎡/ 2階 48.85㎡/ 計 115.09㎡ /34.81坪
土地面積 205.22㎡ /62.07坪
築年月 2024年4月(築1年)
入居(引き渡し)時期 随時入居(引き渡し)可
用途地域 第1種中高層住居専用地域 地目 宅地  (現状:宅地)
都市計画 市街化区域 学校区 青葉台小学校(1,600m)・青葉台中学校(2,600m)
形状 間口 14.6m × 奥行 14m 道路 東側 市道 幅員8.0m
私道 - その他の制限 -
  • 陽光台 3層階のデザイン住宅
    ダイエープロビス株式会社
  • この物件を問い合わせる/無料
  • TEL: 0258-24-1110

物件詳細情報

所在階/階数 - 号室 -
販売価格 25,800,000円 方位
間取り 2LDK (洋室:7、6)
LDK14
専有面積 - バルコニー面積 -
その他面積 - 駐車場 -
管理費 - 修繕積立金 -
現況 指定なし
仲介手数料 なし
利用制限 -
設備 高台に立地、整形地、前面道路6m以上、日当り良好、閑静な住宅街、全室フローリング、駐車場2台以上、庭あり、TVインターホン、複層ガラス、ディンプルキー、システムキッチン、カウンターキッチン、IHクッキングヒーター、食器洗浄乾燥機、追いだき機能付き、バス1坪以上、温水洗浄便座、シャワー付き洗面台、エアコン、24時間換気システム、オール電化、太陽光発電システム、省エネ給湯、上水道、下水道、電気、全居室収納あり、シューズBOX、即引き渡し可能
取引態様 売主
備考 -
取り扱い会社

ダイエープロビス株式会社

新潟県長岡市宝4丁目2番地25

情報登録日 2025/09/02 次回更新予定日 2025/10/29
取引条件有効期限 2025/12/31
  • 陽光台 3層階のデザイン住宅
    ダイエープロビス株式会社
  • この物件を問い合わせる/無料
  • TEL: 0258-24-1110

この物件の地図・周辺情報・行政情報

この物件の周辺情報・行政情報を詳しく見る
【周辺情報】
物件の近くにあるコンビニや銀行・学校など、アイコン付のマップで詳しく表示できます!
【行政情報】
水道料や下水道料・ガス料金など、暮らしに関係のある情報を表示しています。

担当取扱い店舗情報

取扱い店舗画像
ダイエープロビス株式会社
TEL: 0258-24-1110
所在地: 新潟県長岡市宝4丁目2番地25
交通: 「宝4丁目」バス停より徒歩2分
営業時間: 8:30 ~ 17:30/定休日:土曜・日曜・祝日
免許番号: 新潟県知事(13)1619号 この会社の情報を詳しく見る
所属団体名: 新潟県宅地建物取引業協会 長岡支部
取引態様: 売主
ホームページ: https://www.daiei-probis.com