物件掲載企業数:300|賃貸物件:3,191件|売買物件:3,233件|今週の登録物件:377
閲覧中のブラウザ(インターネットエクスプローラー)は非推奨ブラウザです。
物件が正しく表示されなかったり、正しく検索されない場合があります。最新のブラウザ(Google Chrome・Edgeなど)にてご利用お願いいたします。
  

新潟県柏崎市東本町3-10-12 中古一戸建て 3DK 3,000,000円の物件情報

土地約181坪、建物51坪、駐車場あり。1・2階ともに広々間取りでキッチン・トイレあり。事務所や作業スペースとしての活用も。

物件名/所在地 詳細 価格
柏崎市東本町3丁目売物件/事業向け
新潟県柏崎市東本町3-10-12
  • 土地面積
    :600㎡ /181.5坪
  • 建物面積
    :170.05㎡ /51.44坪
  • 間取り
    :3DK
  • 築年月
    :1975年8月
3,000,000
  • 柏崎市東本町3丁目売物件/事業向け
    株式会社 ホーメックス
  • この物件を問い合わせる/無料
  • TEL: 0257-24-0034

物件画像

外観 間取り
物件画像
※画像クリックで拡大表示
外観
物件画像
※画像クリックで拡大表示
間取り
詳細画像


物件概要

物件コード 00088-200840
物件名 柏崎市東本町3丁目売物件/事業向け
交通 駅:越後線 東柏崎駅から徒歩6分、バス:諏訪町1丁目から徒歩4分
物件所在地 新潟県柏崎市東本町3-10-12
物件種別 中古一戸建て
構造 木造 階建 地上2階建
建ぺい率/容積率 60%/200%
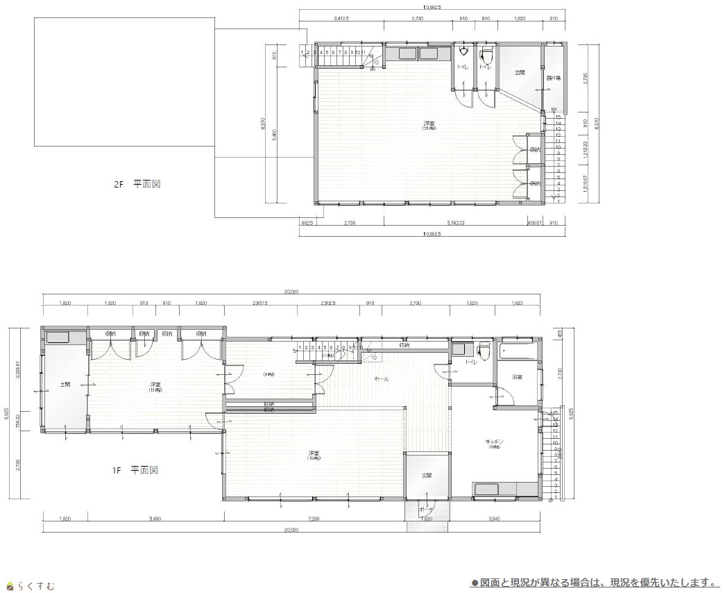
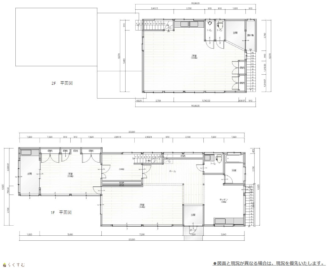
建物面積 計 170.05㎡ /51.44坪
土地面積 600㎡ /181.5坪
築年月 1975年8月(築50年)
入居(引き渡し)時期 相談
用途地域 第1種住居地域 地目 畑  (現状:宅地)
都市計画 - 学校区 柏崎小学校(857m)・第一中学校(894m)
形状 間口 12.9m × 奥行 45.5m 道路 公道 市道柏崎2-6号線(幅員6m)、融雪道路、一方通行路
私道 - その他の制限 -
  • 柏崎市東本町3丁目売物件/事業向け
    株式会社 ホーメックス
  • この物件を問い合わせる/無料
  • TEL: 0257-24-0034

物件詳細情報

所在階/階数 - 号室 -
販売価格 3,000,000円 方位
間取り 3DK (洋室:28、15.6、12、4.9)
DK9
専有面積 - バルコニー面積 -
その他面積 - 駐車場 -
管理費 - 修繕積立金 -
現況 空家
仲介手数料 330,000円
利用制限 -
設備 駐車3台以上可能、ガスコンロ設置済み、バス1坪以上、トイレ2か所以上、都市ガス、上水道、下水道、事業向け
取引態様 一般
備考 ■現況測量あり(実測:591.48㎡/178.92坪)
■本件建物は昭和51年・昭和58年に増築工事あり。登記は未登記である。
■本土地の地先には、融雪道のための電柱および分電盤があり移動は出来ないものと思われるものが存在します。また、同地先には自治会の資源物置場が設置され、敷地の正面に間口制限があります。
■本建物は昭和56年6月以前に新築・増築がされており、現行の建築基準法における耐震基準には合致しません。
■2025年4月の建築基準法改正により、大規模なリフォーム工事等を行う場合は確認申請が必要となる。
■解体の場合、工事費は約400万円税込程度となります。
取り扱い会社

株式会社 ホーメックス

新潟県柏崎市土合628-1

情報登録日 2026/02/13 次回更新予定日 2026/04/29
取引条件有効期限 2026/05/13
  • 柏崎市東本町3丁目売物件/事業向け
    株式会社 ホーメックス
  • この物件を問い合わせる/無料
  • TEL: 0257-24-0034

この物件の地図・周辺情報・行政情報

この物件の周辺情報・行政情報を詳しく見る
【周辺情報】
物件の近くにあるコンビニや銀行・学校など、アイコン付のマップで詳しく表示できます!
【行政情報】
水道料や下水道料・ガス料金など、暮らしに関係のある情報を表示しています。

担当取扱い店舗情報

取扱い店舗画像
株式会社 ホーメックス
TEL: 0257-24-0034
所在地: 新潟県柏崎市土合628-1
交通:
営業時間: 8:30~17:30/定休日:土・日・祝(対応可能です) 年末年始・お盆・GW
免許番号: 新潟県知事(9)第3199号 この会社の情報を詳しく見る
所属団体名: 新潟県宅地建物取引業協会 柏崎支部
取引態様: 一般
ホームページ: http://homex.co.jp/