物件掲載企業数:301|賃貸物件:3,182件|売買物件:3,223件|今週の登録物件:112
閲覧中のブラウザ(インターネットエクスプローラー)は非推奨ブラウザです。
物件が正しく表示されなかったり、正しく検索されない場合があります。最新のブラウザ(Google Chrome・Edgeなど)にてご利用お願いいたします。
  

新潟県柏崎市中浜2丁目10-24 中古一戸建て 3DK 5,000,000円の物件情報

人気の平家3ⅮK、駐車2台可能、別荘にも、港公園まで徒歩約3分 

物件名/所在地 詳細 価格
柏崎市中浜2丁目売住宅
新潟県柏崎市中浜2丁目10-24
  • 土地面積
    :162.85㎡ /49.26坪
  • 建物面積
    :73.5㎡ /22.23坪
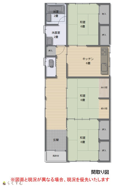
  • 間取り
    :3DK
  • 築年月
    :不詳
5,000,000
  • 柏崎市中浜2丁目売住宅
    株式会社 ホーメックス
  • この物件を問い合わせる/無料
  • TEL: 0257-24-0034

物件画像

外観 間取り
物件画像
※画像クリックで拡大表示
外観
物件画像
※画像クリックで拡大表示
間取り図
詳細画像


物件概要

物件コード 00088-200790
物件名 柏崎市中浜2丁目売住宅
交通 駅:信越線 柏崎駅から徒歩22分、バス:赤坂山陸橋前から徒歩2分
物件所在地 新潟県柏崎市中浜2丁目10-24
物件種別 中古一戸建て
構造 木造 階建 地上2階建
建ぺい率/容積率 60%/200%
建物面積 1階 73.5㎡/ 計 73.5㎡ /22.23坪
土地面積 162.85㎡ /49.26坪
築年月 不詳
入居(引き渡し)時期 相談
用途地域 第1種住居地域 地目 宅地
都市計画 非線引き都市計画区域 学校区 大洲小学校(278m)・第三中学校(1,014m)
形状 - 道路 公道
私道 - その他の制限 -
  • 柏崎市中浜2丁目売住宅
    株式会社 ホーメックス
  • この物件を問い合わせる/無料
  • TEL: 0257-24-0034

物件詳細情報

所在階/階数 - 号室 -
販売価格 5,000,000円 方位
間取り 3DK (和室:6畳、6畳、6畳)
DK6
専有面積 - バルコニー面積 -
その他面積 - 駐車場 -
管理費 - 修繕積立金 -
現況 空家
仲介手数料 330,000円
利用制限 -
設備 閑静な住宅街、駐車2台可能、システムキッチン、3口コンロ、バス1坪以上、エアコンあり、都市ガス、上水道、下水道
取引態様 一般
備考 □平成10年建築
□建物は登記されておりません。
□建物保存登記をする場合は別途費用がかかります。
□現況有姿での売買となります。
□再建築の際には、東側のセットバックが必要になる場合があります。
取り扱い会社

株式会社 ホーメックス

新潟県柏崎市土合628-1

情報登録日 2026/02/13 次回更新予定日 2026/05/22
取引条件有効期限 2025/08/15
  • 柏崎市中浜2丁目売住宅
    株式会社 ホーメックス
  • この物件を問い合わせる/無料
  • TEL: 0257-24-0034

この物件の地図・周辺情報・行政情報

この物件の周辺情報・行政情報を詳しく見る
【周辺情報】
物件の近くにあるコンビニや銀行・学校など、アイコン付のマップで詳しく表示できます!
【行政情報】
水道料や下水道料・ガス料金など、暮らしに関係のある情報を表示しています。
国立病院機構 新潟病院(病院)まで1200m
セブン銀行ATM(銀行)まで1150m
柏崎中浜郵便局(郵便局)まで270m

※カメラのアイコンがある場合は、マウスをポイントするとその施設の画像がご覧いただけます。


担当取扱い店舗情報

取扱い店舗画像
株式会社 ホーメックス
TEL: 0257-24-0034
所在地: 新潟県柏崎市土合628-1
交通:
営業時間: 8:30~17:30/定休日:土・日・祝(対応可能です) 年末年始・お盆・GW
免許番号: 新潟県知事(9)第3199号 この会社の情報を詳しく見る
所属団体名: 新潟県宅地建物取引業協会 柏崎支部
取引態様: 一般
ホームページ: http://homex.co.jp/