物件掲載企業数:297|賃貸物件:3,615件|売買物件:3,296件|今週の登録物件:276
閲覧中のブラウザ(インターネットエクスプローラー)は非推奨ブラウザです。
物件が正しく表示されなかったり、正しく検索されない場合があります。最新のブラウザ(Google Chrome・Edgeなど)にてご利用お願いいたします。
  

新潟県柏崎市松波4丁目4-4 中古一戸建て 5K 500,000円の物件情報

スーパー、コンビニS、コンビニFが徒歩圏!

物件名/所在地 詳細 価格
松波4丁目売り住宅
新潟県柏崎市松波4丁目4-4
  • 土地面積
    :135.64㎡ /41.03坪
  • 建物面積
    :95.42㎡ /28.86坪
  • 間取り
    :5K
  • 築年月
    :1972年2月
500,000
  • 松波4丁目売り住宅
    柏越建設 株式会社
  • この物件を問い合わせる/無料
  • TEL: 0257-24-1548

物件画像

外観 間取り
物件画像
※画像クリックで拡大表示
外観
物件画像
※画像クリックで拡大表示
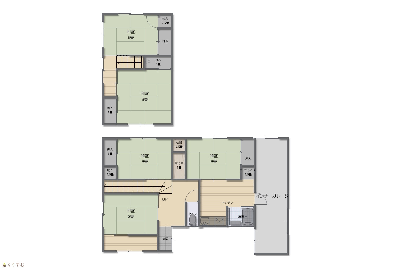
間取り
詳細画像


物件概要

敷地内に消雪パイプがあります!
物件コード 00085-200023
物件名 松波4丁目売り住宅
交通 駅:越後線 西中通駅から徒歩34分、バス:松波中学校前から徒歩1分
物件所在地 新潟県柏崎市松波4丁目4-4
物件種別 中古一戸建て
構造 木造 階建 地上2階建
建ぺい率/容積率 70%/200%
建物面積 1階 54.94㎡/ 2階 40.48㎡/ 計 95.42㎡ /28.86坪
土地面積 135.64㎡ /41.03坪
築年月 1972年2月(築53年)
入居(引き渡し)時期 相談
用途地域 無指定 地目 宅地  (現状:宅地)
都市計画 非線引き都市計画区域 学校区 荒浜小学校(526m)・松浜中学校(123m)
形状 間口 12.71m × 奥行 10.65m 道路 位置指定道路
私道 南側 位置指定道路 その他の制限 -
  • 松波4丁目売り住宅
    柏越建設 株式会社
  • この物件を問い合わせる/無料
  • TEL: 0257-24-1548

物件詳細情報

所在階/階数 - 号室 -
販売価格 500,000円 方位
間取り 5K (和室:6畳、6畳、6畳、6畳、8畳)
K4.5
専有面積 - バルコニー面積 -
その他面積 23.4㎡ /7.07坪  ガレージ 駐車場 -
管理費 - 修繕積立金 -
現況 居住中
仲介手数料 330,000円
利用制限 -
設備 日当り良好、駐車2台可能、南向き、温水洗浄便座、エアコンあり、都市ガス、上水道、下水道
取引態様 専任
備考 -
取り扱い会社

柏越建設 株式会社

新潟県柏崎市半田2丁目7番5号エクシードA102

情報登録日 2025/11/20 次回更新予定日 2025/12/22
取引条件有効期限 2026/02/20
  • 松波4丁目売り住宅
    柏越建設 株式会社
  • この物件を問い合わせる/無料
  • TEL: 0257-24-1548

この物件の地図・周辺情報・行政情報

この物件の周辺情報・行政情報を詳しく見る
【周辺情報】
物件の近くにあるコンビニや銀行・学校など、アイコン付のマップで詳しく表示できます!
【行政情報】
水道料や下水道料・ガス料金など、暮らしに関係のある情報を表示しています。

担当取扱い店舗情報

取扱い店舗画像
柏越建設 株式会社
TEL: 0257-24-1548
所在地: 新潟県柏崎市半田2丁目7番5号エクシードA102
交通: 柏崎駅
営業時間: 9:00~17:00/定休日:日・祝
免許番号: 新潟県知事(9)第3408号 この会社の情報を詳しく見る
所属団体名: 柏越建設株式会社
取引態様: 専任