物件掲載企業数:301|賃貸物件:3,189件|売買物件:3,240件|今週の登録物件:209
閲覧中のブラウザ(インターネットエクスプローラー)は非推奨ブラウザです。
物件が正しく表示されなかったり、正しく検索されない場合があります。最新のブラウザ(Google Chrome・Edgeなど)にてご利用お願いいたします。
  

新潟県長岡市古正寺1丁目3026番3 新築一戸建て 3LDK 57,800,000円の物件情報

R8年4月完成予定!≪事前の見学予約でQUOカード3,000円分プレゼント!≫ ・木目天井材による内と外をつなげる空間設計 ・センチュリーモノコック構造が生み出す『KURAⓇ』と3.5m高天井 ・人気のニッチ造作や独立ワイド洗面化粧台、家事らくアイテム『かん太くん』も設置済

物件名/所在地 詳細 価格
R8/4月完成予定≪ミサワホーム分譲住宅≫古正寺1 B棟
新潟県長岡市古正寺1丁目3026番3
  • 土地面積
    :217.26㎡ /65.72坪
  • 建物面積
    :96.29㎡ /29.12坪
  • 間取り
    :3LDK
  • 築年月
    :2026年4月
57,800,000
  • R8/4月完成予定≪ミサワホーム分譲住宅≫古正寺1 B棟
    ミサワホーム北越 株式会社
  • この物件を問い合わせる/無料
  • TEL: 0120-486-330

物件画像

外観 間取り
物件画像
※画像クリックで拡大表示
完成予想図【外観】※完成前のため、CGパースでのイメージです
物件画像
※画像クリックで拡大表示
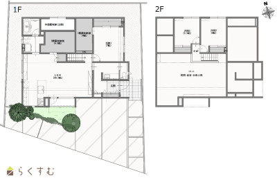
間取り
詳細画像


物件概要

≪ミサワホームの分譲住宅≫ 自社物件につきキャンペーン中!
物件コード 00080-200359
物件名 R8/4月完成予定≪ミサワホーム分譲住宅≫古正寺1 B棟
交通 駅:上越新幹線 長岡駅から徒歩42分、バス:古正寺中央から徒歩3分
物件所在地 新潟県長岡市古正寺1丁目3026番3
物件種別 新築一戸建て
構造 木質パネル工法 階建 地上2階建
建ぺい率/容積率 60%/200%
建物面積 1階 88.79㎡/ 2階 7.5㎡/ 計 96.29㎡ /29.12坪
土地面積 217.26㎡ /65.72坪
築年月 2026年4月完成予定
入居(引き渡し)時期 相談
用途地域 第1種中高層住居専用地域 地目 宅地  (現状:宅地)
都市計画 市街化区域 学校区 大島小学校(1,017m)・大島中学校(732m)
形状 間口 16.31m × 奥行 17.16m 道路 南側:公道8.0m
私道 - その他の制限 古正寺地区まちづくり協定
  • R8/4月完成予定≪ミサワホーム分譲住宅≫古正寺1 B棟
    ミサワホーム北越 株式会社
  • この物件を問い合わせる/無料
  • TEL: 0120-486-330

物件詳細情報

所在階/階数 - 号室 -
販売価格 57,800,000円 方位
間取り 3LDK (洋室:7、6、5.5)
LDK20.2帖
専有面積 - バルコニー面積 -
その他面積 - 駐車場 -
管理費 - 修繕積立金 -
現況 -
仲介手数料 なし
消雪設備年会費 20,000円
利用制限 -
設備 整形地、前面道路6m以上、日当り良好、閑静な住宅街、スーパー近く、長期優良住宅、設計住宅性能評価付き、耐震構造、建物確認・完了検査済証あり、LDK15畳以上、全室フローリング、天井高2.5m以上、駐車場2台以上、駐車場3台以上、南向き、庭あり、TVインターホン、ディンプルキー、システムキッチン、カウンターキッチン、IHクッキングヒーター、食器洗浄乾燥機、3口コンロ、追いだき機能付き、バス1坪以上、温水洗浄便座、シャワー付き洗面台、エアコン、24時間換気システム、省エネ給湯、高気密高断熱住宅、都市ガス、上水道、下水道、電気、全居室収納あり、床下収納、シューズインクローゼット、BS端子、LAN端子、照明器具付き
取引態様 売主
備考 ※KURAは、ミサワホーム株式会社の登録商標です。

<QUOカードプレゼントに関しまして>
※1家族様1回限り
※将来的に住まいづくりを検討の方限定で、未成年・学生の方は除きます
※特典のみの目当てで来場された方には特典をお渡しできない場合がござます
※その他来場予約キャンペーンとの併用は不可となります。
取り扱い会社

ミサワホーム北越 株式会社

新潟県長岡市古正寺2丁目71番地

情報登録日 2026/04/17 次回更新予定日 2026/05/13
取引条件有効期限 2026/05/31
  • R8/4月完成予定≪ミサワホーム分譲住宅≫古正寺1 B棟
    ミサワホーム北越 株式会社
  • この物件を問い合わせる/無料
  • TEL: 0120-486-330

この物件の地図・周辺情報・行政情報

この物件の周辺情報・行政情報を詳しく見る
【周辺情報】
物件の近くにあるコンビニや銀行・学校など、アイコン付のマップで詳しく表示できます!
【行政情報】
水道料や下水道料・ガス料金など、暮らしに関係のある情報を表示しています。

担当取扱い店舗情報

取扱い店舗画像
ミサワホーム北越 株式会社
TEL: 0120-486-330
所在地: 新潟県長岡市古正寺2丁目71番地
交通: 長岡駅
営業時間: 9:00~18:00/定休日:火・水
免許番号: 国土交通大臣(3)8557号 この会社の情報を詳しく見る
所属団体名: 新潟県宅地建物取引協会 長岡支部
取引態様: 売主
ホームページ: http://hokuetsu.misawa.co.jp