物件掲載企業数:297|賃貸物件:2,858件|売買物件:3,259件|今週の登録物件:328
閲覧中のブラウザ(インターネットエクスプローラー)は非推奨ブラウザです。
物件が正しく表示されなかったり、正しく検索されない場合があります。最新のブラウザ(Google Chrome・Edgeなど)にてご利用お願いいたします。
  

新潟県上越市富岡土地区画整理事業6街区4 新築一戸建て 3LDK 47,600,000円の物件情報

≪事前の見学予約でQUOカード3,000円分プレゼント!≫ ◆アクセントウォールが美しい開放的なリビング空間 ◆人気の『ヌック』や回遊動線を採用

物件名/所在地 詳細 価格
R8/4月完成予定≪ミサワホームの分譲住宅≫富岡分譲B棟
新潟県上越市富岡土地区画整理事業6街区4
  • 土地面積
    :195.2㎡ /59.04坪
  • 建物面積
    :102.28㎡ /30.93坪
  • 間取り
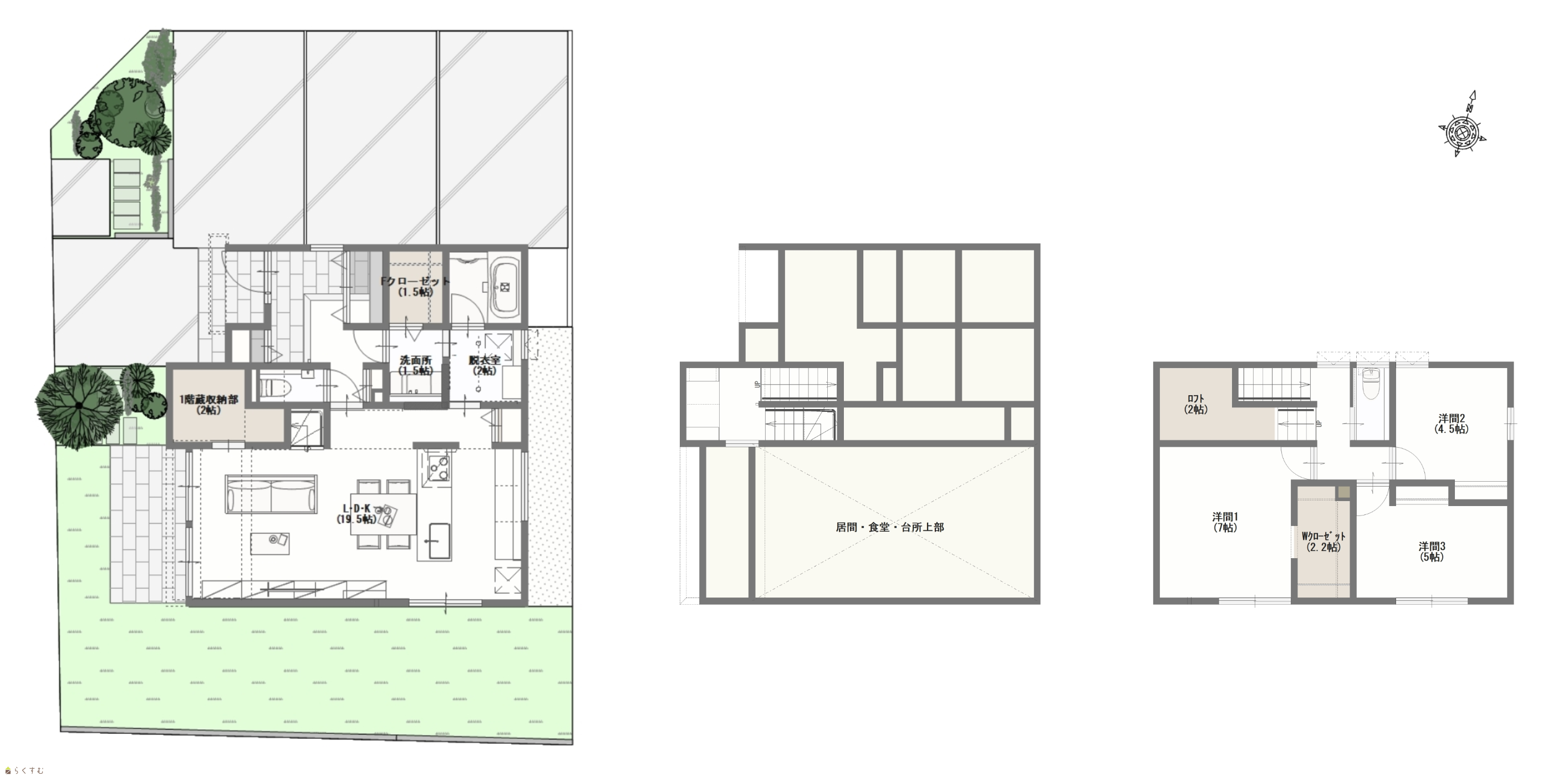
    :3LDK
  • 築年月
    :2026年4月
47,600,000
  • R8/4月完成予定≪ミサワホームの分譲住宅≫富岡分譲B棟
    ミサワホーム北越 株式会社
  • この物件を問い合わせる/無料
  • TEL: 0120-486-330

物件画像

外観 間取り
物件画像
※画像クリックで拡大表示
完成予想図【外観】※完成前のため、CGパースでのイメージです
物件画像
※画像クリックで拡大表示
間取り
詳細画像


物件概要

≪ミサワホームの分譲住宅≫ 自社物件につきキャンペーン中!
物件コード 00080-200356
物件名 R8/4月完成予定≪ミサワホームの分譲住宅≫富岡分譲B棟
交通 駅:妙高はねうまライン 春日山駅から徒歩44分、バス:富岡小学校前から徒歩3分
物件所在地 新潟県上越市富岡土地区画整理事業6街区4
物件種別 新築一戸建て
構造 木質パネル工法 階建 地上2階建
建ぺい率/容積率 70%/200%
建物面積 1階 60.52㎡/ 2階 41.76㎡/ 計 102.28㎡ /30.93坪
土地面積 195.2㎡ /59.04坪
築年月 2026年4月完成予定
入居(引き渡し)時期 相談
用途地域 第1種中高層住居専用地域 地目 田  (現状:宅地)
都市計画 市街化区域 学校区 富岡小学校(220m)・城東中学校(3,900m)
形状 間口 14.37m × 奥行 11.73m 道路 北側:公道7.0m、西側:公道7.0m
私道 - その他の制限 景観法
  • R8/4月完成予定≪ミサワホームの分譲住宅≫富岡分譲B棟
    ミサワホーム北越 株式会社
  • この物件を問い合わせる/無料
  • TEL: 0120-486-330

物件詳細情報

所在階/階数 - 号室 -
販売価格 47,600,000円 方位 西
間取り 3LDK (洋室:7、5、4.5)
LDK19.5帖
建築確認番号:NK第25本02160号
専有面積 - バルコニー面積 -
その他面積 - 駐車場 -
管理費 - 修繕積立金 -
現況 指定なし
仲介手数料 なし
調整池管理組合費用 6,000円
調整池管理組合費用1区画月額500円
利用制限 -
設備 角地、整形地、前面道路6m以上、日当り良好、閑静な住宅街、スーパー近く、長期優良住宅、設計住宅性能評価付き、耐震構造、BELS/省エネ基準適合認定建物、建物確認・完了検査済証あり、LDK15畳以上、全室フローリング、天井高2.5m以上、駐車場2台以上、庭あり、TVインターホン、複層ガラス、ディンプルキー、システムキッチン、カウンターキッチン、IHクッキングヒーター、食器洗浄乾燥機、追いだき機能付き、バス1坪以上、温水洗浄便座、エアコン、24時間換気システム、オール電化、省エネ給湯、高気密高断熱住宅、LPG、上水道、下水道、電気、ウォークインクローゼット、全居室収納あり、床下収納、シューズインクローゼット
取引態様 売主
備考 <QUOカードプレゼントに関しまして>
※1家族様1回限り
※将来的に住まいづくりを検討の方限定で、未成年・学生の方は除きます
※特典のみの目当てで来場された方には特典をお渡しできない場合がござます
取り扱い会社

ミサワホーム北越 株式会社

新潟県長岡市古正寺2丁目71番地

情報登録日 2026/03/09 次回更新予定日 2026/03/27
取引条件有効期限 2026/03/31
  • R8/4月完成予定≪ミサワホームの分譲住宅≫富岡分譲B棟
    ミサワホーム北越 株式会社
  • この物件を問い合わせる/無料
  • TEL: 0120-486-330

この物件の地図・周辺情報・行政情報

この物件の周辺情報・行政情報を詳しく見る
【周辺情報】
物件の近くにあるコンビニや銀行・学校など、アイコン付のマップで詳しく表示できます!
【行政情報】
水道料や下水道料・ガス料金など、暮らしに関係のある情報を表示しています。

担当取扱い店舗情報

取扱い店舗画像
ミサワホーム北越 株式会社
TEL: 0120-486-330
所在地: 新潟県長岡市古正寺2丁目71番地
交通: 長岡駅
営業時間: 9:00~18:00/定休日:火・水
免許番号: 国土交通大臣(3)8557号 この会社の情報を詳しく見る
所属団体名: 新潟県宅地建物取引協会 長岡支部
取引態様: 売主
ホームページ: http://hokuetsu.misawa.co.jp