物件掲載企業数:301|賃貸物件:3,182件|売買物件:3,223件|今週の登録物件:112
閲覧中のブラウザ(インターネットエクスプローラー)は非推奨ブラウザです。
物件が正しく表示されなかったり、正しく検索されない場合があります。最新のブラウザ(Google Chrome・Edgeなど)にてご利用お願いいたします。
  

新潟県長岡市小国町桐沢1825-3 中古一戸建て 5LDK 8,500,000円の物件情報

令和7年4月20日価格改定 ミサワホーム施工スムストック住宅 落雪高床式3階建てなので降雪時期も安心です

物件名/所在地 詳細 価格
【ミサワホームのスムストック:高床式5LDK】小国町桐沢
新潟県長岡市小国町桐沢1825-3
  • 土地面積
    :314.42㎡ /95.11坪
  • 建物面積
    :205.14㎡ /62.05坪
  • 間取り
    :5LDK
  • 築年月
    :2000年11月
8,500,000
  • 【ミサワホームのスムストック:高床式5LDK】小国町桐沢
    ミサワホーム北越 株式会社
  • この物件を問い合わせる/無料
  • TEL: 0120-486-330

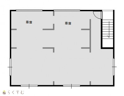
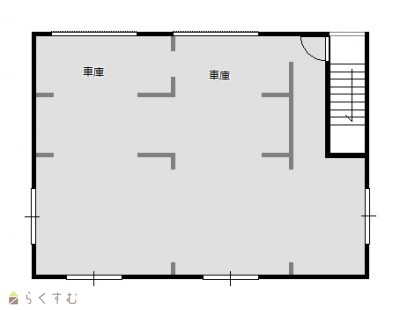
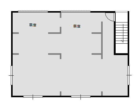
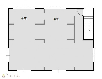
物件画像

外観 間取り
物件画像
※画像クリックで拡大表示
外観
物件画像
※画像クリックで拡大表示
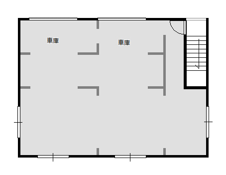
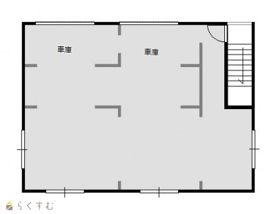
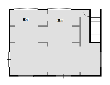
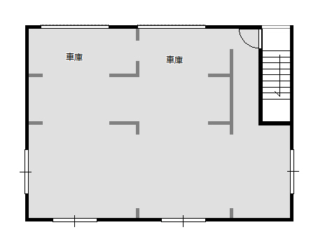
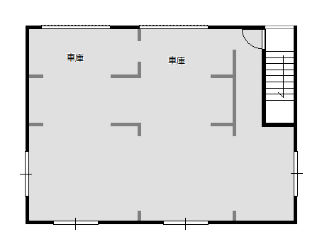
間取図
詳細画像


物件概要

アフターメンテナンスも継続します。田舎暮らしにも最適です。
物件コード 00080-200194
物件名 【ミサワホームのスムストック:高床式5LDK】小国町桐沢
交通 バス:法坂から徒歩14分
物件所在地 新潟県長岡市小国町桐沢1825-3
物件種別 中古一戸建て
構造 木造 階建 地上3階建
建ぺい率/容積率 70%/200%
建物面積 1階 68.72㎡/ 2階 71.83㎡/ 3階 64.59㎡/ 計 205.14㎡ /62.05坪
土地面積 314.42㎡ /95.11坪
築年月 2000年11月(築25年)
入居(引き渡し)時期 相談
用途地域 用途の指定のない地域 地目 宅地
都市計画 都市計画区域外 学校区 小国小学校(1,665m)・小国中学校(1,868m)
形状 - 道路 北側11M県道(消雪あり)
私道 - その他の制限 -
  • 【ミサワホームのスムストック:高床式5LDK】小国町桐沢
    ミサワホーム北越 株式会社
  • この物件を問い合わせる/無料
  • TEL: 0120-486-330

物件詳細情報

所在階/階数 - 号室 -
販売価格 8,500,000円 方位 指定なし
間取り 5LDK
専有面積 - バルコニー面積 -
その他面積 68.72㎡ /20.78坪  高床 駐車場 -
管理費 - 修繕積立金 -
現況 空家
仲介手数料 346,500円
利用制限 -
設備 日当り良好、耐震構造、駐車3台以上可能、複層ガラス、システムキッチン、追いだき機能付き、バス1坪以上、温水洗浄便座、トイレ2か所以上、シャワー付き洗面台、24時間換気システム、ルーフバルコニー、LPG、上水道、下水道、ウォークインクローゼット、全居室収納あり、BS端子、別荘、田舎暮らし
取引態様 専任
備考 -
取り扱い会社

ミサワホーム北越 株式会社

新潟県長岡市古正寺2丁目71番地

情報登録日 2025/05/03 次回更新予定日 2026/05/22
取引条件有効期限 2025/09/30
  • 【ミサワホームのスムストック:高床式5LDK】小国町桐沢
    ミサワホーム北越 株式会社
  • この物件を問い合わせる/無料
  • TEL: 0120-486-330

この物件の地図・周辺情報・行政情報

この物件の周辺情報・行政情報を詳しく見る
【周辺情報】
物件の近くにあるコンビニや銀行・学校など、アイコン付のマップで詳しく表示できます!
【行政情報】
水道料や下水道料・ガス料金など、暮らしに関係のある情報を表示しています。

担当取扱い店舗情報

取扱い店舗画像
ミサワホーム北越 株式会社
TEL: 0120-486-330
所在地: 新潟県長岡市古正寺2丁目71番地
交通: 長岡駅
営業時間: 9:00~18:00/定休日:火・水
免許番号: 国土交通大臣(3)8557号 この会社の情報を詳しく見る
所属団体名: 新潟県宅地建物取引協会 長岡支部
取引態様: 専任
ホームページ: http://hokuetsu.misawa.co.jp