物件掲載企業数:300|賃貸物件:2,773件|売買物件:3,235件|今週の登録物件:271
閲覧中のブラウザ(インターネットエクスプローラー)は非推奨ブラウザです。
物件が正しく表示されなかったり、正しく検索されない場合があります。最新のブラウザ(Google Chrome・Edgeなど)にてご利用お願いいたします。
  

新潟県長岡市表町1丁目2-7 投資物件・その他 15,000,000円の物件情報

長岡花火ビューの建物です。駐車場縦列4台

物件名/所在地 詳細 価格
表面利回り
表町1丁目売事務所・倉庫・住居
新潟県長岡市表町1丁目2-7
  • 土地面積
    :244.06㎡ /73.82坪
  • 建ぺい率
    :80%
  • 容積率
    :400%
15,000,000
-
  • 表町1丁目売事務所・倉庫・住居
    佐藤リアルティ 株式会社
  • この物件を問い合わせる/無料
  • TEL: 0258-34-3718

物件画像

外観 間取り
物件画像
※画像クリックで拡大表示
外観
物件画像
※画像クリックで拡大表示
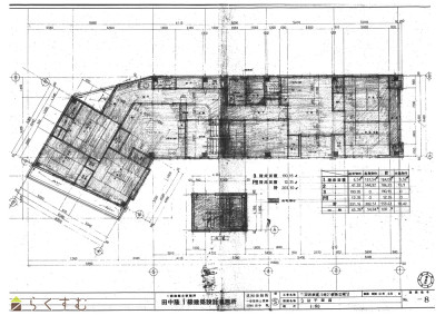
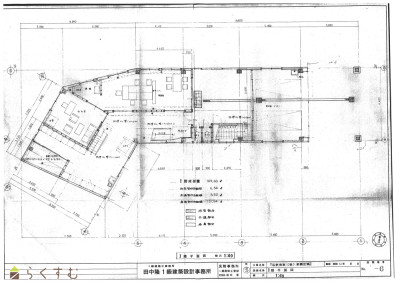
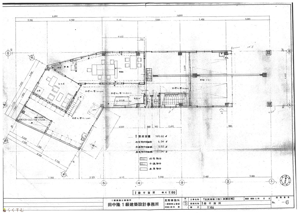
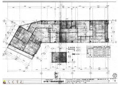
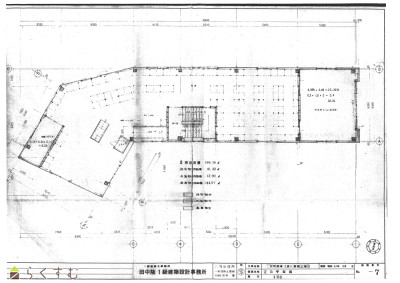
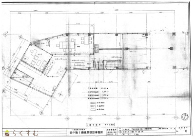
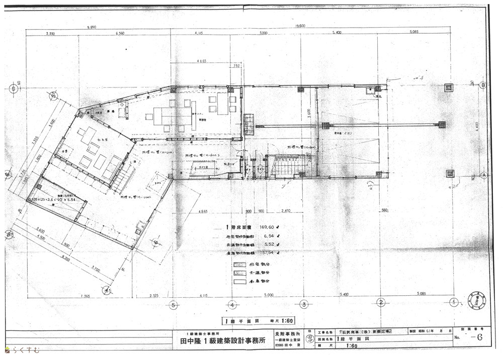
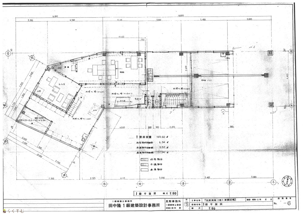
間取り
詳細画像


物件概要

物件コード 00056-200197
物件名 表町1丁目売事務所・倉庫・住居
交通 駅:上越新幹線 長岡駅から徒歩13分、バス:千手3丁目から徒歩3分
物件所在地 新潟県長岡市表町1丁目2-7
物件種別 投資物件・その他
物件区分 その他
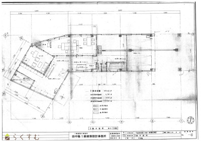
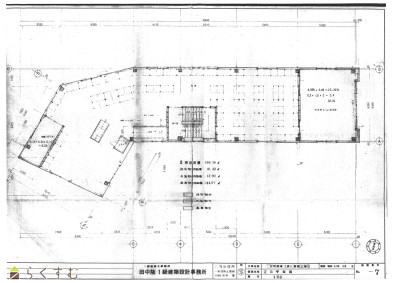
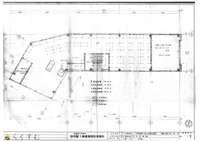
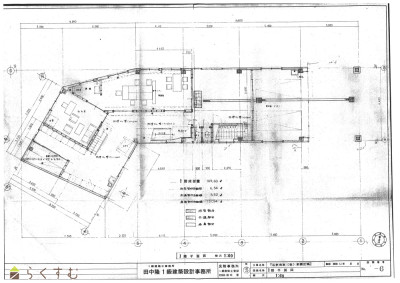
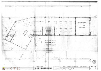
構造 鉄骨 階建 地上3階建
建ぺい率/容積率 80%/400%
建物面積 1階 171.84㎡/ 2階 201.63㎡/ 3階 190.46㎡/ 計 563.93㎡ /170.58坪
土地面積 244.06㎡ /73.82坪
築年月 1988年3月(築38年)
入居(引き渡し)時期 相談
用途地域 商業地域 地目 宅地  (現状:宅地)
都市計画 市街化区域 学校区 表町小学校(892m)・東中学校(1,487m)
形状 - 道路 南側公道
私道 - その他の制限 準防火地域
  • 表町1丁目売事務所・倉庫・住居
    佐藤リアルティ 株式会社
  • この物件を問い合わせる/無料
  • TEL: 0258-34-3718

物件詳細情報

所在階/階数 - 号室 -
販売価格 15,000,000円 方位 -
表面利回り(満室想定時) - 満室想定年収 - (想定月収: - )
現行利回り - 現行年間年収 -
住戸数 -
間取り -
専有面積 - バルコニー面積 -
その他面積 - 駐車場 敷地内
管理費 - 修繕積立金 -
現況 空家
仲介手数料 561,000円
利用制限 -
設備 南側道路面す、駐車場(近隣含む)、公営水道、都市ガス、下水道
取引態様 一般
備考 任意売却・
売主契約不適合責任免責・境界非表示
取り扱い会社

佐藤リアルティ 株式会社

新潟県長岡市笹崎1-4-5武蔵ビル 2F

情報登録日 2025/11/04 次回更新予定日 2026/05/01
取引条件有効期限 2026/03/27
  • 表町1丁目売事務所・倉庫・住居
    佐藤リアルティ 株式会社
  • この物件を問い合わせる/無料
  • TEL: 0258-34-3718

この物件の地図・周辺情報・行政情報

この物件の周辺情報・行政情報を詳しく見る
【周辺情報】
物件の近くにあるコンビニや銀行・学校など、アイコン付のマップで詳しく表示できます!
【行政情報】
水道料や下水道料・ガス料金など、暮らしに関係のある情報を表示しています。

担当取扱い店舗情報

取扱い店舗画像
佐藤リアルティ 株式会社
TEL: 0258-34-3718
所在地: 新潟県長岡市笹崎1-4-5武蔵ビル 2F
交通: 宮内駅
営業時間: 9:00~18:00/定休日:日、祝日
免許番号: 新潟県知事(3)第5117号 この会社の情報を詳しく見る
所属団体名: 全日本不動産協会 新潟県本部
取引態様: 一般
ホームページ: http://sato-realty.co.jp/