物件掲載企業数:297|賃貸物件:3,618件|売買物件:3,294件|今週の登録物件:273
閲覧中のブラウザ(インターネットエクスプローラー)は非推奨ブラウザです。
物件が正しく表示されなかったり、正しく検索されない場合があります。最新のブラウザ(Google Chrome・Edgeなど)にてご利用お願いいたします。
  

新潟県三条市東三条1丁目22番地10号 中古マンション 3LDK 14,980,000円の物件情報

東三条駅徒歩約3分!対面キッチン!

物件名/所在地 詳細 価格
◆売りマンション◆アパシティ東三条駅壱番館
403号室
新潟県三条市東三条1丁目22番地10号
  • 専有面積
    :63.04㎡ /19.06坪
  • 間取り
    :3LDK
  • 築年月
    :2001年2月
14,980,000
  • ◆売りマンション◆アパシティ東三条駅壱番館
    株式会社 ユタカ不動産
  • この物件を問い合わせる/無料
  • TEL: 0256-35-5825

物件画像

外観 間取り
物件画像
※画像クリックで拡大表示
外観
物件画像
※画像クリックで拡大表示
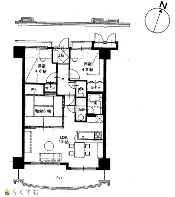
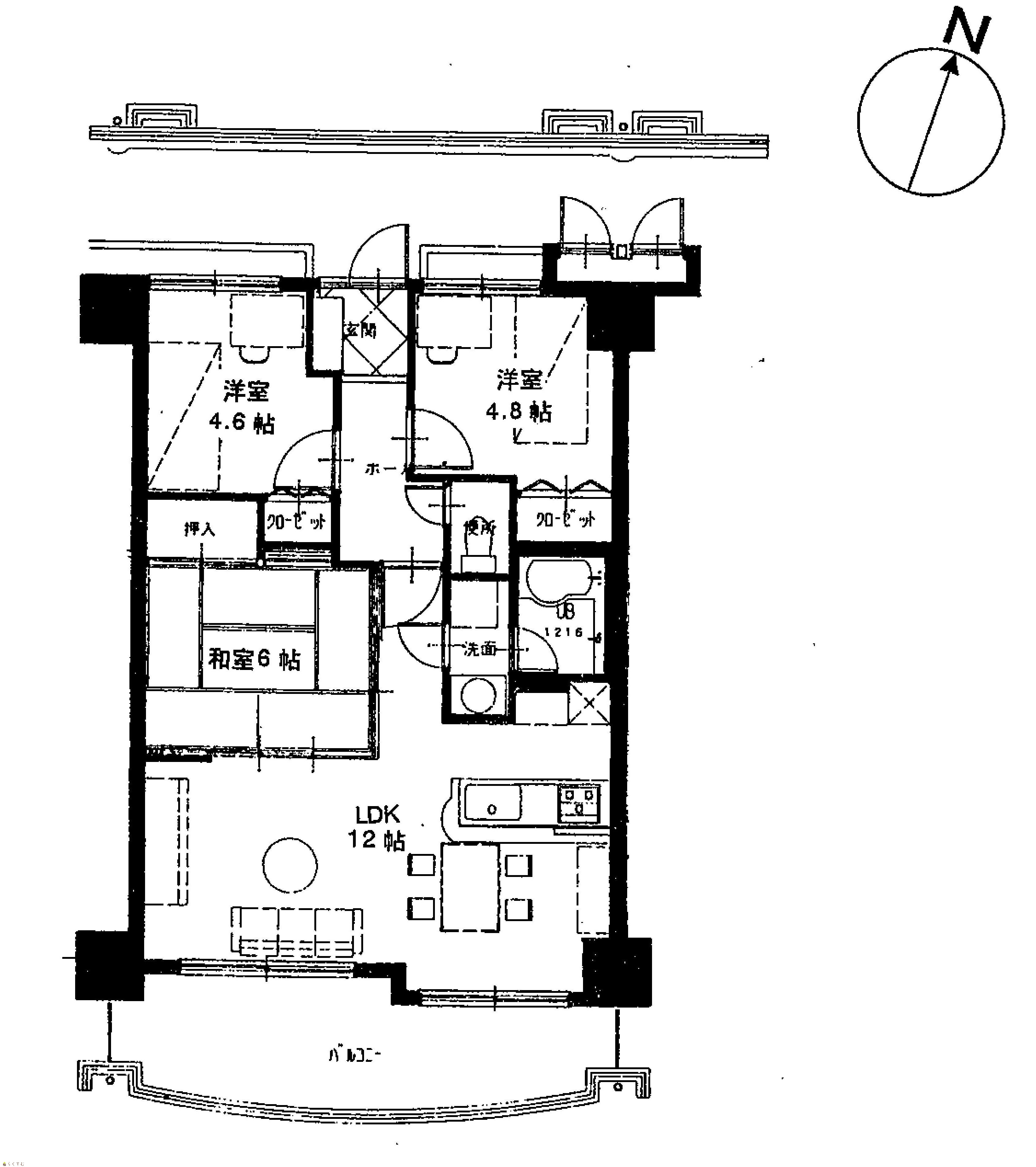
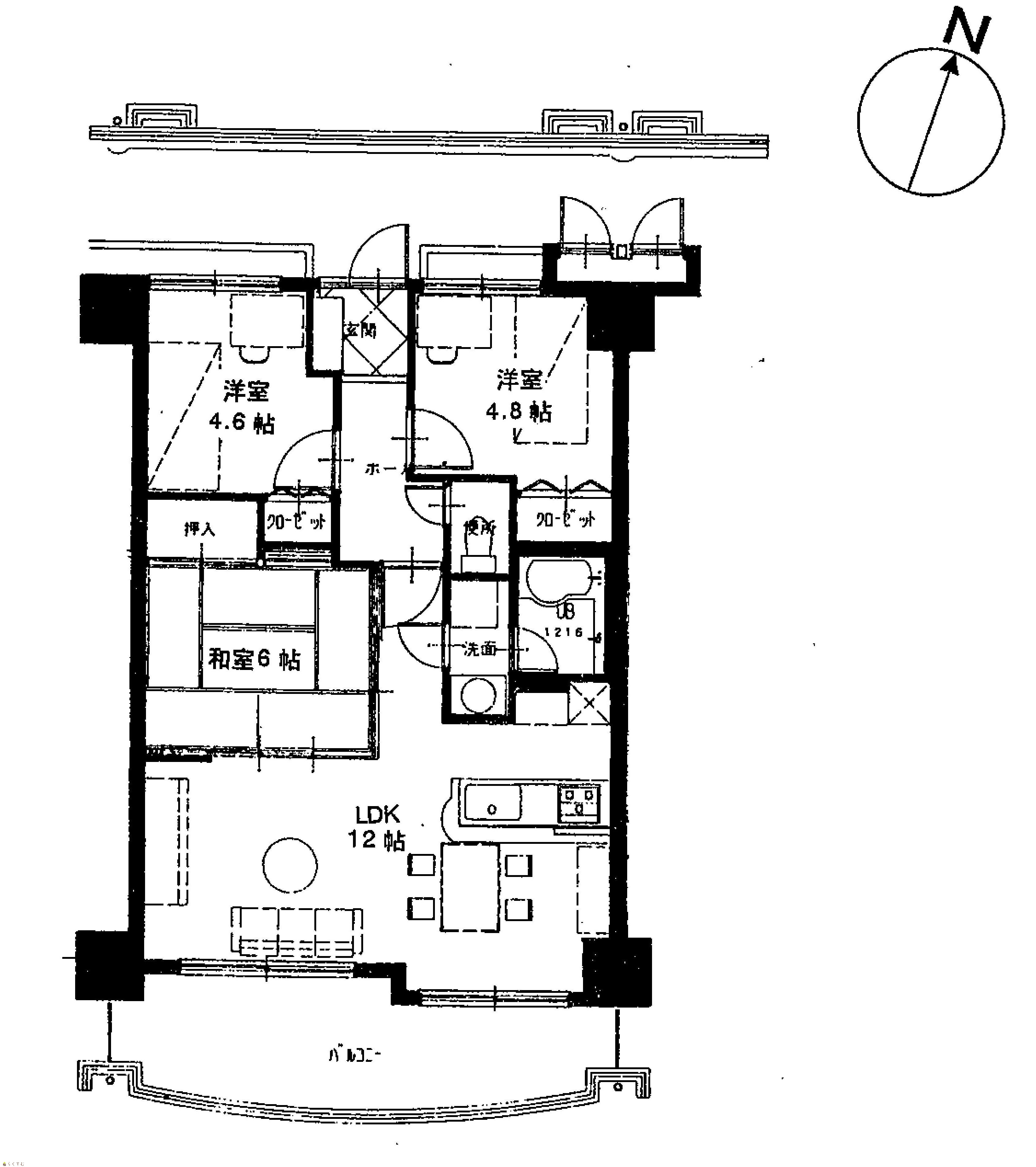
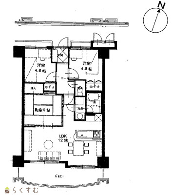
間取図
詳細画像


物件概要

物件コード 00052-200268
物件名 ◆売りマンション◆アパシティ東三条駅壱番館
交通 駅:信越線 東三条駅から徒歩3分、バス:神社庁前から徒歩3分
物件所在地 新潟県三条市東三条1丁目22番地10号
物件種別 中古マンション
構造 鉄筋コン 階建 地上8階建
建ぺい率/容積率 60%/200%
建物面積 計 63.04㎡ /19.06坪
土地面積 -
築年月 2001年2月(築24年)
入居(引き渡し)時期 相談
用途地域 第1種住居地域 地目 宅地  (現状:宅地)
都市計画 非線引き都市計画区域 学校区 一ノ木戸小学校(1,300m)・第二中学校(1,300m)
形状 - 道路 南側:幅員8.8m 北東側:13.7m
私道 - その他の制限 準防火地域
  • ◆売りマンション◆アパシティ東三条駅壱番館
    株式会社 ユタカ不動産
  • この物件を問い合わせる/無料
  • TEL: 0256-35-5825

物件詳細情報

所在階/階数 4階/8階 号室 403号室
販売価格 14,980,000円 方位
間取り 3LDK (和室:4.6畳、6畳) (洋室:4.8)
LDK12
専有面積 63.04㎡ /19.06坪 バルコニー面積 10.44㎡ /3.15坪
その他面積 - 駐車場 月額6000円
管理費 月額7,500円 修繕積立金 月額12,600円
現況 空家
仲介手数料 560,340円
温泉使用料 2,000円
利用制限 ペット:可
設備 2階以上、日当り良好、最寄駅近く、エレベーター、宅配BOX、集会所、和室あり、バイク置き場、駐輪場、南向き、管理人常駐(日中)、セキュリティー良し、システムキッチン、対面式キッチン、2口コンロ、3口コンロ、温水洗浄便座、都市ガス、公営水道、下水道、全室収納あり、シューズBOX
取引態様 専任
備考 契約時一時金
■管理準備金100,000円■温泉採取許可申請料35,000円■修繕積立基金100,000円
取り扱い会社

株式会社 ユタカ不動産

新潟県三条市旭町1丁目1-19-3ユタカビル

情報登録日 2025/06/29 次回更新予定日 2025/12/21
取引条件有効期限 2026/03/01
  • ◆売りマンション◆アパシティ東三条駅壱番館
    株式会社 ユタカ不動産
  • この物件を問い合わせる/無料
  • TEL: 0256-35-5825

この物件の地図・周辺情報・行政情報

この物件の周辺情報・行政情報を詳しく見る
【周辺情報】
物件の近くにあるコンビニや銀行・学校など、アイコン付のマップで詳しく表示できます!
【行政情報】
水道料や下水道料・ガス料金など、暮らしに関係のある情報を表示しています。

担当取扱い店舗情報

取扱い店舗画像
株式会社 ユタカ不動産
TEL: 0256-35-5825
所在地: 新潟県三条市旭町1丁目1-19-3ユタカビル
交通: 東三条駅
営業時間: 9:00~18:00/定休日:火曜・祭日
免許番号: 新潟見知事(9)第3203号 この会社の情報を詳しく見る
所属団体名: 新潟県宅地建物取引協会 三条支部
取引態様: 専任
ホームページ: http://www.yutakafudousan.com