物件掲載企業数:301|賃貸物件:3,289件|売買物件:3,251件|今週の登録物件:265
閲覧中のブラウザ(インターネットエクスプローラー)は非推奨ブラウザです。
物件が正しく表示されなかったり、正しく検索されない場合があります。最新のブラウザ(Google Chrome・Edgeなど)にてご利用お願いいたします。
  

新潟県小千谷市千谷川2-1-15 中古一戸建て 4LDK 10,800,000円の物件情報

高床3階建ての住宅です

物件名/所在地 詳細 価格
小千谷市千谷川2丁目中古住宅
新潟県小千谷市千谷川2-1-15
  • 土地面積
    :340.85㎡ /103.1坪
  • 建物面積
    :194.62㎡ /58.87坪
  • 間取り
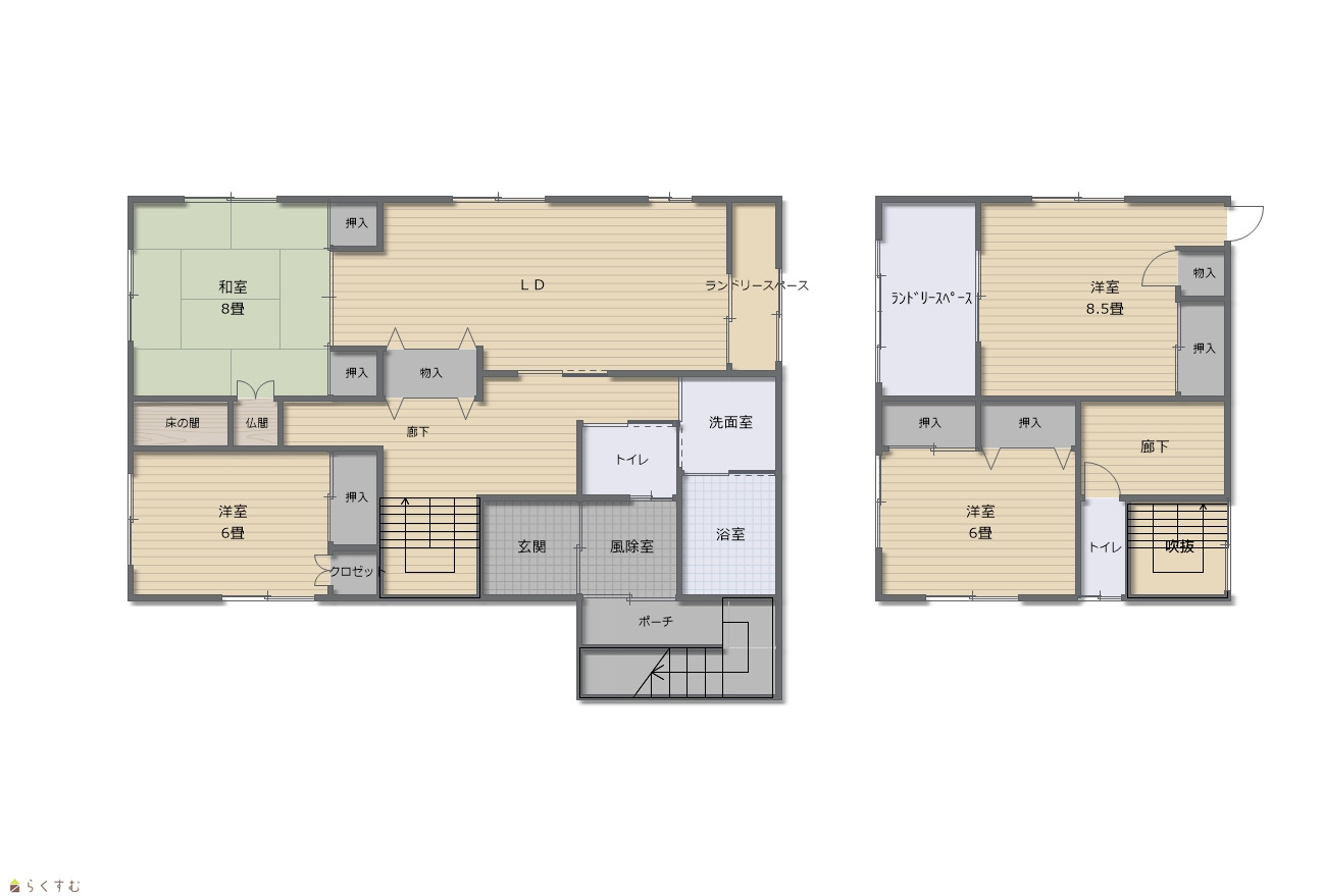
    :4LDK
  • 築年月
    :2005年10月
10,800,000
  • 小千谷市千谷川2丁目中古住宅
    ブレイン・リアルエステート合同会社
  • この物件を問い合わせる/無料
  • TEL: 0258-86-6934

物件画像

外観 間取り
物件画像
※画像クリックで拡大表示
外観
物件画像
※画像クリックで拡大表示
間取り
詳細画像


物件概要

春の新生活をこの住宅で始めましょう
物件コード 00044-200716
物件名 小千谷市千谷川2丁目中古住宅
交通 駅:上越線 小千谷駅から徒歩25分、バス:本町東から徒歩4分
物件所在地 新潟県小千谷市千谷川2-1-15
物件種別 中古一戸建て
構造 木造 階建 地上3階建
建ぺい率/容積率 60%/200%
建物面積 1階 56.27㎡/ 2階 89.94㎡/ 3階 48.41㎡/ 計 194.62㎡ /58.87坪
土地面積 340.85㎡ /103.1坪
築年月 2005年10月(築20年)
入居(引き渡し)時期 相談
用途地域 第1種住居地域 地目 宅地
都市計画 非線引き都市計画区域 学校区 小千谷小学校(1,114m)・小千谷中学校(1,058m)
形状 - 道路 -
私道 - その他の制限 -
  • 小千谷市千谷川2丁目中古住宅
    ブレイン・リアルエステート合同会社
  • この物件を問い合わせる/無料
  • TEL: 0258-86-6934

物件詳細情報

所在階/階数 - 号室 -
販売価格 10,800,000円 方位 -
間取り 4LDK
専有面積 - バルコニー面積 -
その他面積 - 駐車場 -
管理費 - 修繕積立金 -
現況 空家
仲介手数料 422,400円
利用制限 -
設備 高台に立地、駐車2台可能、システムキッチン、追いだき機能付き、バス1坪以上、温水洗浄便座、シャワー付き洗面台、都市ガス、上水道、下水道、全居室収納あり
取引態様 一般
備考 ・現況有姿での引渡しとなり売主による契約不適合責任は免責となります。・敷地内は1階車庫部分に縦列で2台駐車可能です(ミニバン等は入庫不可)
取り扱い会社

ブレイン・リアルエステート合同会社

新潟県長岡市大島本町3丁目10番8号202号室

情報登録日 2026/05/16 次回更新予定日 2026/06/14
取引条件有効期限 2026/06/03
  • 小千谷市千谷川2丁目中古住宅
    ブレイン・リアルエステート合同会社
  • この物件を問い合わせる/無料
  • TEL: 0258-86-6934

この物件の地図・周辺情報・行政情報

この物件の周辺情報・行政情報を詳しく見る
【周辺情報】
物件の近くにあるコンビニや銀行・学校など、アイコン付のマップで詳しく表示できます!
【行政情報】
水道料や下水道料・ガス料金など、暮らしに関係のある情報を表示しています。

担当取扱い店舗情報

取扱い店舗画像
ブレイン・リアルエステート合同会社
TEL: 0258-86-6934
所在地: 新潟県長岡市大島本町3丁目10番8号202号室
交通:
営業時間: 9:30~18:00/定休日:水曜日、日曜日
免許番号: 新潟県知事(4)第4978号 この会社の情報を詳しく見る
所属団体名: ブレインリアルエステート合同会社
取引態様: 一般
ホームページ: http://www.brain-niigata.co.jp