物件掲載企業数:299|賃貸物件:2,844件|売買物件:3,240件|今週の登録物件:362
閲覧中のブラウザ(インターネットエクスプローラー)は非推奨ブラウザです。
物件が正しく表示されなかったり、正しく検索されない場合があります。最新のブラウザ(Google Chrome・Edgeなど)にてご利用お願いいたします。
  

新潟県三島郡出雲崎町大寺925番地 中古一戸建て 7LDK 1,600,000円の物件情報

のどかな田園風景が広がる集落内の物件。海へも近いです。

物件名/所在地 詳細 価格
出雲崎町大寺中古住宅
新潟県三島郡出雲崎町大寺925番地
  • 土地面積
    :551.56㎡ /166.84坪
  • 建物面積
    :500.94㎡ /151.53坪
  • 間取り
    :7LDK
  • 築年月
    :不詳
1,600,000
  • 出雲崎町大寺中古住宅
    ブレイン・リアルエステート合同会社
  • この物件を問い合わせる/無料
  • TEL: 0258-86-6934

物件画像

外観 間取り
物件画像
※画像クリックで拡大表示
外観
物件画像
※画像クリックで拡大表示
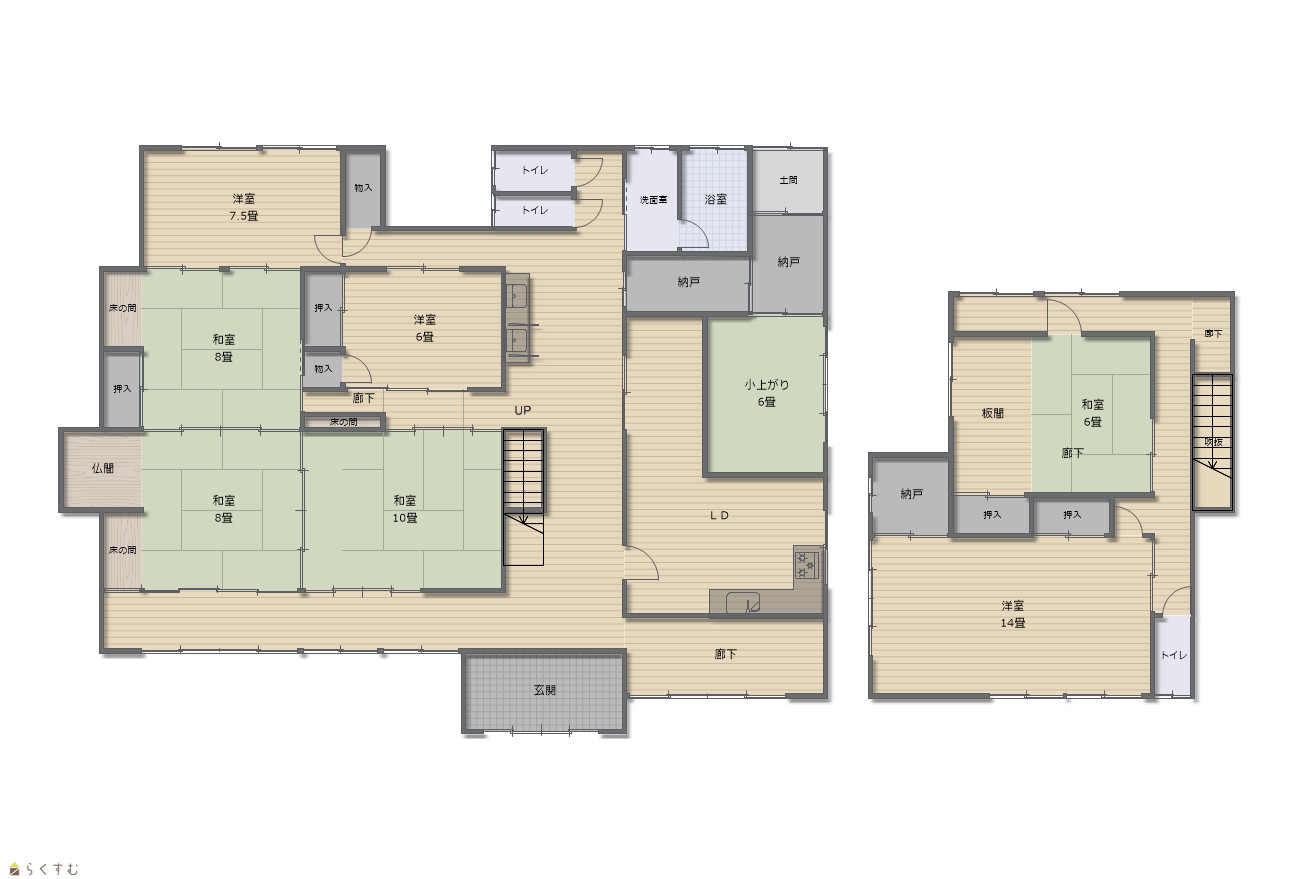
間取り
詳細画像


物件概要

セカンドハウスやシェアハウスとしてのご利用もできます。
物件コード 00044-200705
物件名 出雲崎町大寺中古住宅
交通 駅:越後線 妙法寺駅から徒歩12分、バス:大寺から徒歩3分
物件所在地 新潟県三島郡出雲崎町大寺925番地
物件種別 中古一戸建て
構造 木造 階建 地上2階建
建ぺい率/容積率 60%/200%
建物面積 1階 344.97㎡/ 2階 155.97㎡/ 計 500.94㎡ /151.53坪
土地面積 551.56㎡ /166.84坪
築年月 不詳
入居(引き渡し)時期 相談
用途地域 用途の指定のない地域 地目 宅地
都市計画 都市計画区域外 学校区 出雲崎小学校(3,809m)・出雲崎中学校(3,827m)
形状 間口 21m × 奥行 38m 道路 南側公道 東側公道
私道 - その他の制限 -
  • 出雲崎町大寺中古住宅
    ブレイン・リアルエステート合同会社
  • この物件を問い合わせる/無料
  • TEL: 0258-86-6934

物件詳細情報

所在階/階数 - 号室 -
販売価格 1,600,000円 方位 南東
間取り 7LDK (和室:6畳、8畳、8畳、10畳、6畳) (洋室:6、7.5、14)
LDK15
専有面積 - バルコニー面積 -
その他面積 - 駐車場 -
管理費 - 修繕積立金 -
現況 居住中
仲介手数料 110,000円
利用制限 -
設備 角地、日当り良好、閑静な住宅街、LDK15帖以上、駐車3台以上可能、南向き、システムキッチン、3口コンロ、ガスコンロ設置済み、追いだき機能付き、バス1坪以上、トイレ2か所以上、LPG、上水道、浄化槽、即引き渡し可能、別荘、田舎暮らし、事業向け
取引態様 一般
備考 -
取り扱い会社

ブレイン・リアルエステート合同会社

新潟県長岡市大島本町3丁目10番8号202号室

情報登録日 2025/12/23 次回更新予定日 2026/04/02
取引条件有効期限 2026/03/31
  • 出雲崎町大寺中古住宅
    ブレイン・リアルエステート合同会社
  • この物件を問い合わせる/無料
  • TEL: 0258-86-6934

この物件の地図・周辺情報・行政情報

この物件の周辺情報・行政情報を詳しく見る
【周辺情報】
物件の近くにあるコンビニや銀行・学校など、アイコン付のマップで詳しく表示できます!
【行政情報】
水道料や下水道料・ガス料金など、暮らしに関係のある情報を表示しています。

担当取扱い店舗情報

取扱い店舗画像
ブレイン・リアルエステート合同会社
TEL: 0258-86-6934
所在地: 新潟県長岡市大島本町3丁目10番8号202号室
交通:
営業時間: 9:30~18:00/定休日:水曜日、日曜日
免許番号: 新潟県知事(4)第4978号 この会社の情報を詳しく見る
所属団体名: ブレインリアルエステート合同会社
取引態様: 一般
ホームページ: http://www.brain-niigata.co.jp