物件掲載企業数:299|賃貸物件:2,844件|売買物件:3,240件|今週の登録物件:362
閲覧中のブラウザ(インターネットエクスプローラー)は非推奨ブラウザです。
物件が正しく表示されなかったり、正しく検索されない場合があります。最新のブラウザ(Google Chrome・Edgeなど)にてご利用お願いいたします。
  

新潟県小千谷市三仏生3588-3 中古一戸建て 8DK 12,800,000円の物件情報

スーパーベイシアまで徒歩5分の部屋数多い中古住宅

物件名/所在地 詳細 価格
小千谷市三仏生 中古住宅
新潟県小千谷市三仏生3588-3
  • 土地面積
    :425.26㎡ /128.64坪
  • 建物面積
    :203.51㎡ /61.56坪
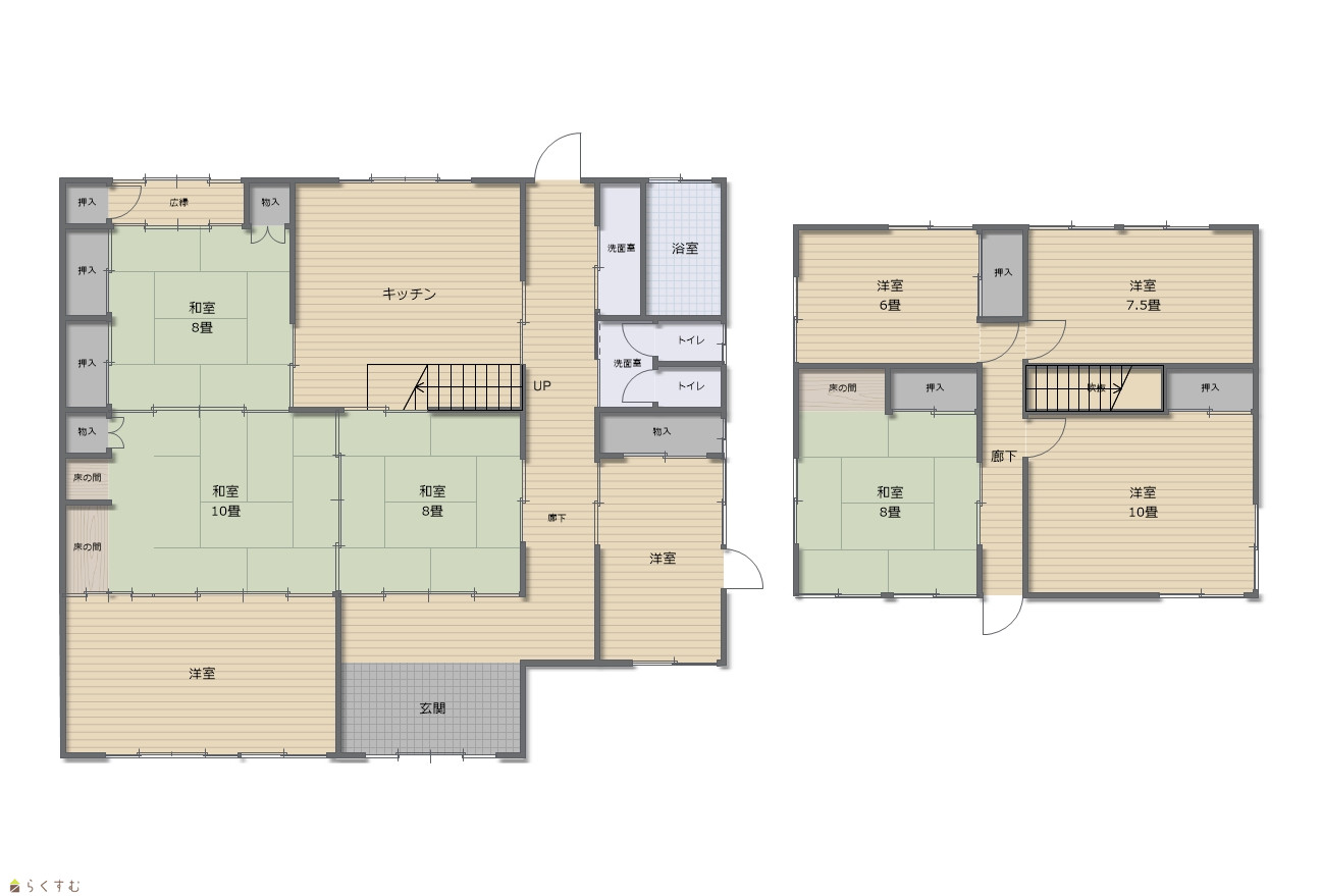
  • 間取り
    :8DK
  • 築年月
    :1980年12月
12,800,000
  • 小千谷市三仏生 中古住宅
    ブレイン・リアルエステート合同会社
  • この物件を問い合わせる/無料
  • TEL: 0258-86-6934

物件画像

外観 間取り
物件画像
※画像クリックで拡大表示
外観
物件画像
※画像クリックで拡大表示
間取り
詳細画像


物件概要

物件コード 00044-200696
物件名 小千谷市三仏生 中古住宅
交通 駅:上越線 小千谷駅から徒歩40分、バス:すみれ保育園前から徒歩3分
物件所在地 新潟県小千谷市三仏生3588-3
物件種別 中古一戸建て
構造 木造 階建 地上2階建
建ぺい率/容積率 70%/200%
建物面積 1階 135.25㎡/ 2階 68.26㎡/ 計 203.51㎡ /61.56坪
土地面積 425.26㎡ /128.64坪
築年月 1980年12月(築45年)
入居(引き渡し)時期 2026年5月頃
用途地域 用途の指定のない地域 地目 宅地
都市計画 非線引き都市計画区域 学校区 千田小学校(990m)・千田中学校(847m)
形状 - 道路 南側:公道 11m
私道 - その他の制限 -
  • 小千谷市三仏生 中古住宅
    ブレイン・リアルエステート合同会社
  • この物件を問い合わせる/無料
  • TEL: 0258-86-6934

物件詳細情報

所在階/階数 - 号室 -
販売価格 12,800,000円 方位
間取り 8DK
専有面積 - バルコニー面積 -
その他面積 - 駐車場 -
管理費 - 修繕積立金 -
現況 居住中
仲介手数料 488,400円
利用制限 -
設備 日当り良好、閑静な住宅街、駐車2台可能、都市ガス、上水道、下水道
取引態様 一般
備考 ■現況有姿での引渡し、売主による契約不適合責任は免責 ■隣地と共有の融雪井戸有り ■現在、下水道は隣地と共有していますが売主にの負担により新たに下水道公共桝を設置し配管完了後引渡しとなります。■現在居住中です内覧は事前予約必要です 
取り扱い会社

ブレイン・リアルエステート合同会社

新潟県長岡市大島本町3丁目10番8号202号室

情報登録日 2025/09/18 次回更新予定日 2026/04/02
取引条件有効期限 2025/12/03
  • 小千谷市三仏生 中古住宅
    ブレイン・リアルエステート合同会社
  • この物件を問い合わせる/無料
  • TEL: 0258-86-6934

この物件の地図・周辺情報・行政情報

この物件の周辺情報・行政情報を詳しく見る
【周辺情報】
物件の近くにあるコンビニや銀行・学校など、アイコン付のマップで詳しく表示できます!
【行政情報】
水道料や下水道料・ガス料金など、暮らしに関係のある情報を表示しています。

担当取扱い店舗情報

取扱い店舗画像
ブレイン・リアルエステート合同会社
TEL: 0258-86-6934
所在地: 新潟県長岡市大島本町3丁目10番8号202号室
交通:
営業時間: 9:30~18:00/定休日:水曜日、日曜日
免許番号: 新潟県知事(4)第4978号 この会社の情報を詳しく見る
所属団体名: ブレインリアルエステート合同会社
取引態様: 一般
ホームページ: http://www.brain-niigata.co.jp