物件掲載企業数:301|賃貸物件:3,182件|売買物件:3,223件|今週の登録物件:112
閲覧中のブラウザ(インターネットエクスプローラー)は非推奨ブラウザです。
物件が正しく表示されなかったり、正しく検索されない場合があります。最新のブラウザ(Google Chrome・Edgeなど)にてご利用お願いいたします。
  

新潟県長岡市千手2丁目11-18 中古マンション 4LDK 23,500,000円の物件情報

築20年未満の分譲マンションです!

物件名/所在地 詳細 価格
サーパス千手弐番館201号室
201号室
新潟県長岡市千手2丁目11-18
  • 専有面積
    :88.57㎡ /26.79坪
  • 間取り
    :4LDK
  • 築年月
    :2006年11月
23,500,000
  • サーパス千手弐番館201号室
    株式会社 高野不動産販売
  • この物件を問い合わせる/無料
  • TEL: 0258-33-7711

物件画像

外観 間取り
物件画像
※画像クリックで拡大表示
正面玄関側(西側)
物件画像
※画像クリックで拡大表示
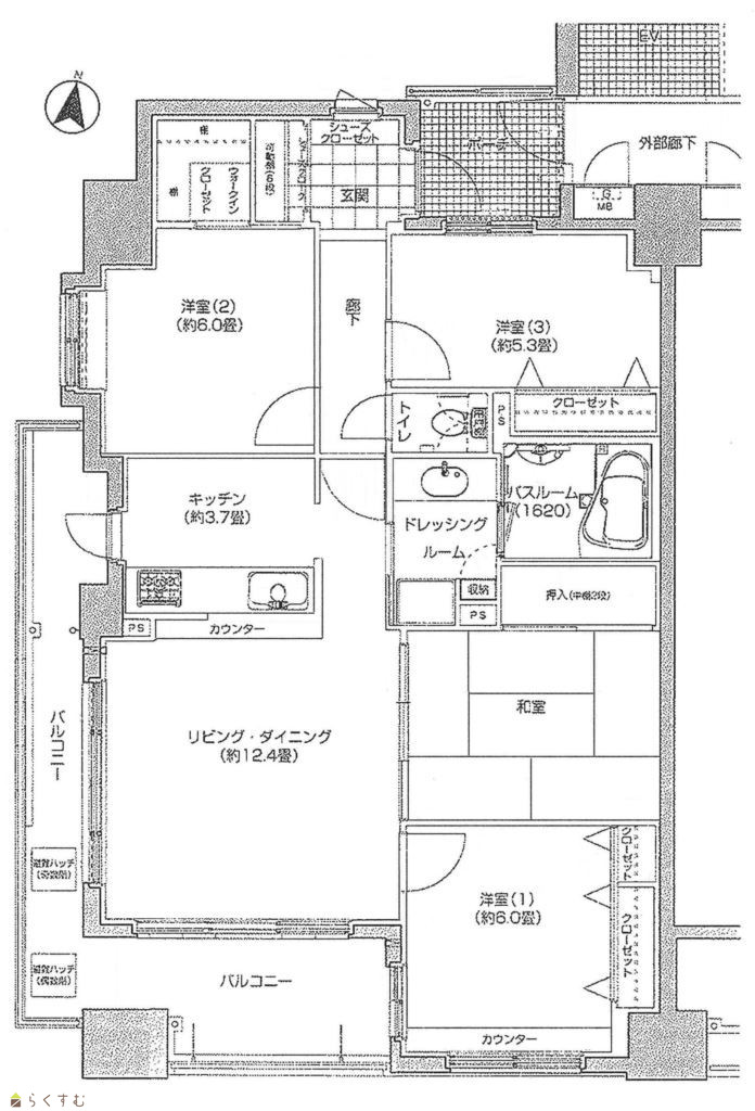
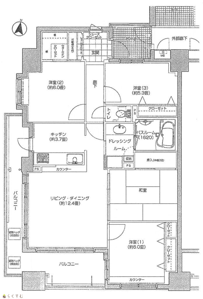
4LDK
詳細画像


物件概要

角部屋で階下に住戸が無い、4LDKです
物件コード 00041-200896
物件名 サーパス千手弐番館201号室
交通 駅:上越新幹線 長岡駅から徒歩14分、バス:柏町から徒歩4分
物件所在地 新潟県長岡市千手2丁目11-18
物件種別 中古マンション
構造 鉄筋コン 階建 地上9階建
建ぺい率/容積率 90%/300%
建物面積 計 6,450.71㎡ /1,951.33坪
土地面積 1,791.41㎡ /541.9坪
築年月 2006年11月(築19年)
入居(引き渡し)時期 相談
用途地域 近隣商業地域 地目 宅地  (現状:宅地)
都市計画 市街化区域 学校区 千手小学校(213m)・南中学校(387m)
形状 - 道路 西側 公道 約22m、北側 公道 約15m
私道 - その他の制限 -
  • サーパス千手弐番館201号室
    株式会社 高野不動産販売
  • この物件を問い合わせる/無料
  • TEL: 0258-33-7711

物件詳細情報

所在階/階数 2階/9階 号室 201号室
販売価格 23,500,000円 方位 南西
間取り 4LDK (和室:6畳) (洋室:6、6、5.3)
LDK16.1
専有面積 88.57㎡ /26.79坪 バルコニー面積 16.77㎡ /5.07坪
その他面積 - 駐車場 7,000円(抽選)
管理費 12,700円 修繕積立金 19,500円
現況 空家
仲介手数料 841,500円
インターネット利用料 2,835円
支払必須
専有部分警備料 427円
支払必須(アルソック提携)
エスコートサービス利用料 330円
支払必須
利用制限 ペット:可、楽器:可
設備 角部屋、2階以上、閑静な住宅街、外観タイル張り、洗濯機置き場、エレベーター、宅配BOX、集会所、LDK15帖以上、全室フローリング、平面駐車場、南向き、管理人常駐(日中)、TV付きインターホン、エントランスオートロック、セキュリティ会社あり、対面式キッチン、食器洗浄乾燥機、浄水器、3口コンロ、ガスコンロ設置済み、浴室乾燥機、浴室1坪以上、温水洗浄便座、シャワー付き洗面台、エアコン、床暖房、都市ガス、公営水道、下水道
取引態様 一般
備考 駐車場は現在平置きの区画ですが、2年ごとに抽選があります。
取り扱い会社

株式会社 高野不動産販売

新潟県長岡市柏町1丁目4-33

情報登録日 2024/10/18 次回更新予定日 2026/05/22
取引条件有効期限 2025/02/08
  • サーパス千手弐番館201号室
    株式会社 高野不動産販売
  • この物件を問い合わせる/無料
  • TEL: 0258-33-7711

この物件の地図・周辺情報・行政情報

この物件の周辺情報・行政情報を詳しく見る
【周辺情報】
物件の近くにあるコンビニや銀行・学校など、アイコン付のマップで詳しく表示できます!
【行政情報】
水道料や下水道料・ガス料金など、暮らしに関係のある情報を表示しています。
セブン-イレブン 長岡西千手店(コンビニ)まで420m
ローソン 長岡幸町店(コンビニ)まで630m
柏薬局(ドラッグストア)まで280m
杉本内科医院(病院)まで70m
渡辺医院(病院)まで300m
シートン動物病院 長岡(病院)まで290m
長岡信用金庫 本店(銀行)まで690m
第四北越銀行 長岡本店営業部(銀行)まで780m

※カメラのアイコンがある場合は、マウスをポイントするとその施設の画像がご覧いただけます。


担当取扱い店舗情報

取扱い店舗画像
株式会社 高野不動産販売
TEL: 0258-33-7711
所在地: 新潟県長岡市柏町1丁目4-33
交通: 長岡駅
営業時間: 9:00~17:30/定休日:土曜日・日曜日・祝日・お盆・年末年始
免許番号: 新潟県知事(1)第5568号 この会社の情報を詳しく見る
所属団体名: (公社)新潟県宅地建物取引業協会,(公社)首都圏不動産公正取引協議会,(公財)日本賃貸住宅管理協会
取引態様: 一般
ホームページ: https://www.tknf.co.jp