物件掲載企業数:300|賃貸物件:2,775件|売買物件:3,237件|今週の登録物件:262
閲覧中のブラウザ(インターネットエクスプローラー)は非推奨ブラウザです。
物件が正しく表示されなかったり、正しく検索されない場合があります。最新のブラウザ(Google Chrome・Edgeなど)にてご利用お願いいたします。
  

新潟県長岡市宮内7丁目3番9号ドーン・レジデンス 412号 投資物件・その他 1R 4,500,000円の物件情報

現在賃貸にてご入居中。オーナーチェンジ物件

物件名/所在地 詳細 価格
表面利回り
ドーン・レジデンス 412
412号室
新潟県長岡市宮内7丁目3番9号ドーン・レジデンス 412号
  • 土地面積
    :-
  • 建ぺい率
    :60%
  • 容積率
    :200%
4,500,000
13.3%
(満室想定時)
  • ドーン・レジデンス 412
    株式会社 高野不動産販売
  • この物件を問い合わせる/無料
  • TEL: 0258-33-7711

物件画像

外観 間取り
物件画像
※画像クリックで拡大表示
物件画像
※画像クリックで拡大表示
詳細画像


物件概要

物件コード 00041-200755
物件名 ドーン・レジデンス 412
交通 駅:上越新幹線 長岡駅から徒歩28分、バス:宮内7丁目から徒歩1分
物件所在地 新潟県長岡市宮内7丁目3番9号ドーン・レジデンス 412号
物件種別 投資物件・その他
物件区分 マンション(区分所有)
構造 鉄筋コン 階建 地上9階建
建ぺい率/容積率 60%/200%
建物面積 -
土地面積 -
築年月 1992年8月(築33年)
入居(引き渡し)時期 相談
用途地域 第1種住居地域 地目 宅地  (現状:宅地)
都市計画 市街化区域 学校区 宮内小学校・宮内中学校
形状 - 道路 -
私道 - その他の制限 -
  • ドーン・レジデンス 412
    株式会社 高野不動産販売
  • この物件を問い合わせる/無料
  • TEL: 0258-33-7711

物件詳細情報

所在階/階数 4階/9階 号室 412号室
販売価格 4,500,000円 方位 -
表面利回り(満室想定時) 13.3% 満室想定年収 600,000円 (想定月収: 50,000円 )
現行利回り - 現行年間年収 -
住戸数 1
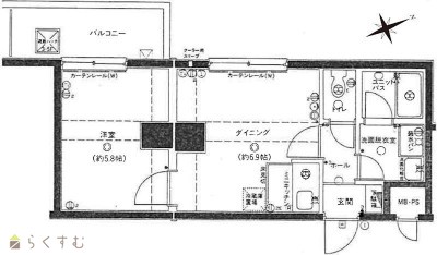
間取り 1DK
専有面積 30.87㎡ /9.33坪 ~ 30.87㎡ /9.33坪 バルコニー面積 5.6㎡ /1.69坪
その他面積 - 駐車場 -
管理費 7,100円 修繕積立金 3,550円
現況 賃貸中
仲介手数料 なし
利用制限 ペット:不可、楽器:不可
設備 エレベーター
取引態様 売主
備考 ①水道子メーター制
②ケーブルTV視聴料2,200円(税別)/月がかかります。
取り扱い会社

株式会社 高野不動産販売

新潟県長岡市柏町1丁目4-33

情報登録日 2022/12/05 次回更新予定日 2026/05/01
取引条件有効期限 -
  • ドーン・レジデンス 412
    株式会社 高野不動産販売
  • この物件を問い合わせる/無料
  • TEL: 0258-33-7711

この物件の地図・周辺情報・行政情報

この物件の周辺情報・行政情報を詳しく見る
【周辺情報】
物件の近くにあるコンビニや銀行・学校など、アイコン付のマップで詳しく表示できます!
【行政情報】
水道料や下水道料・ガス料金など、暮らしに関係のある情報を表示しています。
ローソン 長岡笹崎一丁目店(コンビニ)まで700m
ウオロク 要町店(スーパー)まで700m
ウエルシア長岡笹崎店(ドラッグストア)まで640m
(生協)こどもクリニック(病院)まで940m
さの整形外科クリニック(病院)まで670m
長岡宮原郵便局(郵便局)まで690m

※カメラのアイコンがある場合は、マウスをポイントするとその施設の画像がご覧いただけます。


担当取扱い店舗情報

取扱い店舗画像
株式会社 高野不動産販売
TEL: 0258-33-7711
所在地: 新潟県長岡市柏町1丁目4-33
交通: 長岡駅
営業時間: 9:00~17:30/定休日:土曜日・日曜日・祝日・お盆・年末年始
免許番号: 新潟県知事(1)第5568号 この会社の情報を詳しく見る
所属団体名: (公社)新潟県宅地建物取引業協会,(公社)首都圏不動産公正取引協議会,(公財)日本賃貸住宅管理協会
取引態様: 売主
ホームページ: https://www.tknf.co.jp