物件掲載企業数:301|賃貸物件:3,182件|売買物件:3,223件|今週の登録物件:113
閲覧中のブラウザ(インターネットエクスプローラー)は非推奨ブラウザです。
物件が正しく表示されなかったり、正しく検索されない場合があります。最新のブラウザ(Google Chrome・Edgeなど)にてご利用お願いいたします。
  

新潟県長岡市豊1丁目7-12 中古一戸建て 6LDK 21,000,000円の物件情報

ショッピングセンターまで徒歩圏内!バイパスへのアクセス良好!立派な庭のある、和式住宅!

物件名/所在地 詳細 価格
豊1丁目 中古住宅
新潟県長岡市豊1丁目7-12
  • 土地面積
    :338㎡ /102.24坪
  • 建物面積
    :203.33㎡ /61.5坪
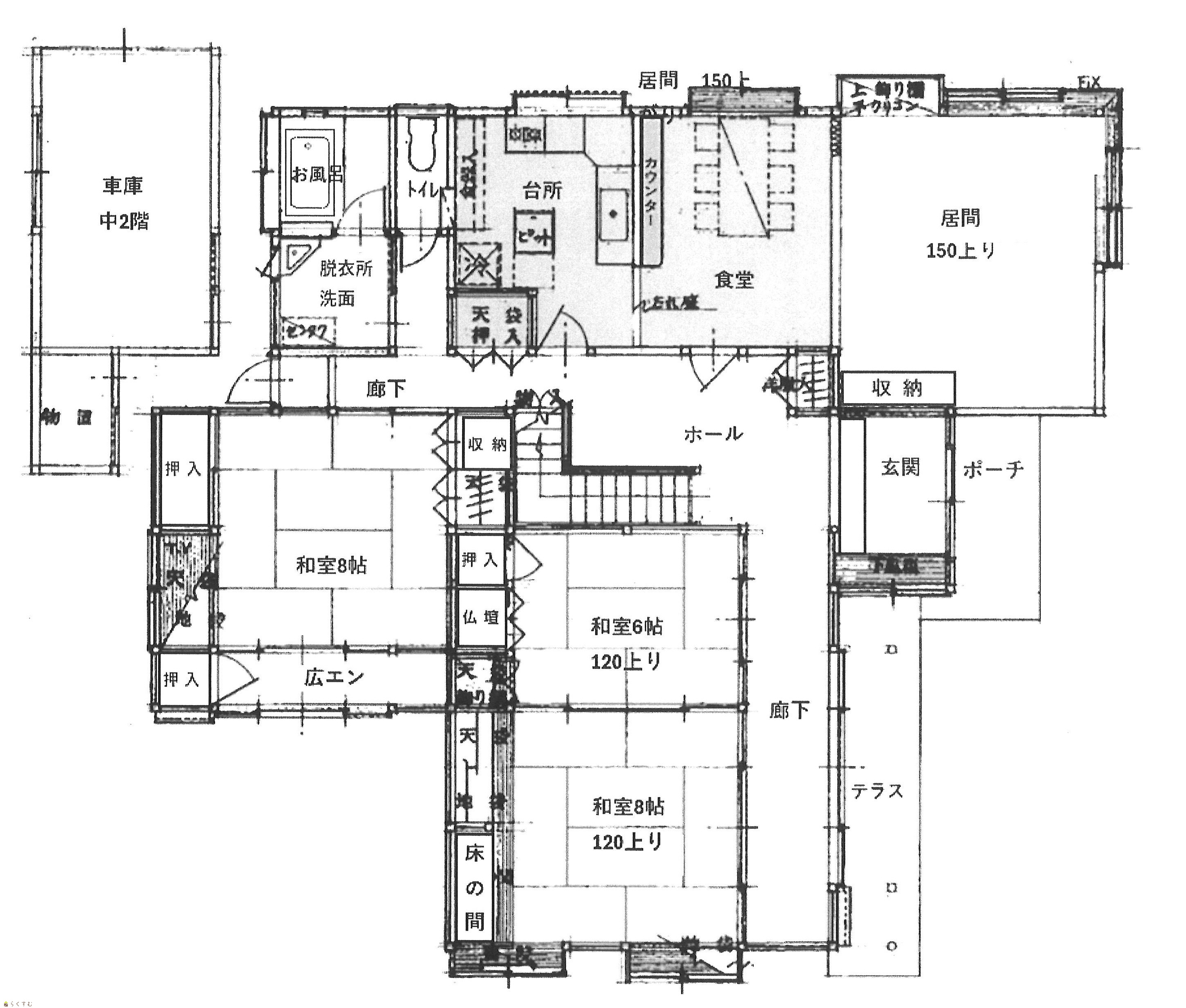
  • 間取り
    :6LDK
  • 築年月
    :1983年7月
21,000,000
  • 豊1丁目 中古住宅
    髙頭不動産 株式会社
  • この物件を問い合わせる/無料
  • TEL: 0120-1818-27

物件画像

外観 間取り
物件画像
※画像クリックで拡大表示
外観
物件画像
※画像クリックで拡大表示
間取り
詳細画像


物件概要

物件コード 00040-201158
物件名 豊1丁目 中古住宅
交通 駅:信越線 北長岡駅から徒歩21分、バス:豊町から徒歩3分
物件所在地 新潟県長岡市豊1丁目7-12
物件種別 中古一戸建て
構造 木造 階建 地上2階建
建ぺい率/容積率 60%/200%
建物面積 1階 133.55㎡/ 2階 69.78㎡/ 計 203.33㎡ /61.5坪
土地面積 338㎡ /102.24坪
築年月 1983年7月(築42年)
入居(引き渡し)時期 随時入居(引き渡し)可
用途地域 第1種中高層住居専用地域 地目 宅地  (現状:宅地)
都市計画 市街化区域 学校区 川崎東小学校(305m)・東北中学校(354m)
形状 - 道路 東側 公道 6m 融雪道路 /北側 公道 6m 融雪道路
私道 - その他の制限 -
  • 豊1丁目 中古住宅
    髙頭不動産 株式会社
  • この物件を問い合わせる/無料
  • TEL: 0120-1818-27

物件詳細情報

所在階/階数 - 号室 -
販売価格 21,000,000円 方位 -
間取り 6LDK
専有面積 - バルコニー面積 -
その他面積 - 駐車場 -
管理費 - 修繕積立金 -
現況 空家
仲介手数料 759,000円
利用制限 -
設備 角地、閑静な住宅街、スーパー近く、温水洗浄便座、トイレ2か所以上、都市ガス、上水道、下水道、即引き渡し可能
取引態様 一般
備考 -
取り扱い会社

髙頭不動産 株式会社

新潟県長岡市千歳1-3-25

情報登録日 2025/09/02 次回更新予定日 2026/05/22
取引条件有効期限 2025/12/31
  • 豊1丁目 中古住宅
    髙頭不動産 株式会社
  • この物件を問い合わせる/無料
  • TEL: 0120-1818-27

この物件の地図・周辺情報・行政情報

この物件の周辺情報・行政情報を詳しく見る
【周辺情報】
物件の近くにあるコンビニや銀行・学校など、アイコン付のマップで詳しく表示できます!
【行政情報】
水道料や下水道料・ガス料金など、暮らしに関係のある情報を表示しています。
ローソン 長岡川崎町店(コンビニ)まで790m
セブン-イレブン 長岡永田店(コンビニ)まで650m
良食生活館 川崎店(スーパー)まで130m
原信 川崎店(スーパー)まで350m
ラ・ムー 長岡愛宕店(スーパー)まで950m
美園内科クリニック(病院)まで290m
田村クリニック(病院)まで690m
あたごこどもクリニック(病院)まで840m
まつむら第二歯科(病院)まで870m
長岡レディースクリニック(病院)まで830m

※カメラのアイコンがある場合は、マウスをポイントするとその施設の画像がご覧いただけます。


担当取扱い店舗情報

取扱い店舗画像
髙頭不動産 株式会社
TEL: 0120-1818-27
所在地: 新潟県長岡市千歳1-3-25
交通: 長岡駅
営業時間: 8時30分~17時30分(大手支店は9時~18時)/定休日:本社:土日祝日(事前予約での対応可能)、支店:日曜祝日第5土曜(毎年2月下旬から3月は休みなし)
免許番号: 新潟県知事(17)第191号 この会社の情報を詳しく見る
所属団体名: 新潟県宅地建物取引協会 長岡支部
取引態様: 一般
ホームページ: http://www.takato-f.com