物件掲載企業数:301|賃貸物件:3,182件|売買物件:3,223件|今週の登録物件:132
閲覧中のブラウザ(インターネットエクスプローラー)は非推奨ブラウザです。
物件が正しく表示されなかったり、正しく検索されない場合があります。最新のブラウザ(Google Chrome・Edgeなど)にてご利用お願いいたします。
  

新潟県長岡市与板町与板459 中古一戸建て 11DK 4,800,000円の物件情報

与板のメインストリート沿いに佇む店舗併設の住宅です!レトロな土蔵付き♪

物件名/所在地 詳細 価格
長岡市与板町与板 売住宅
新潟県長岡市与板町与板459
  • 土地面積
    :448.08㎡ /135.54坪
  • 建物面積
    :326.4㎡ /98.73坪
  • 間取り
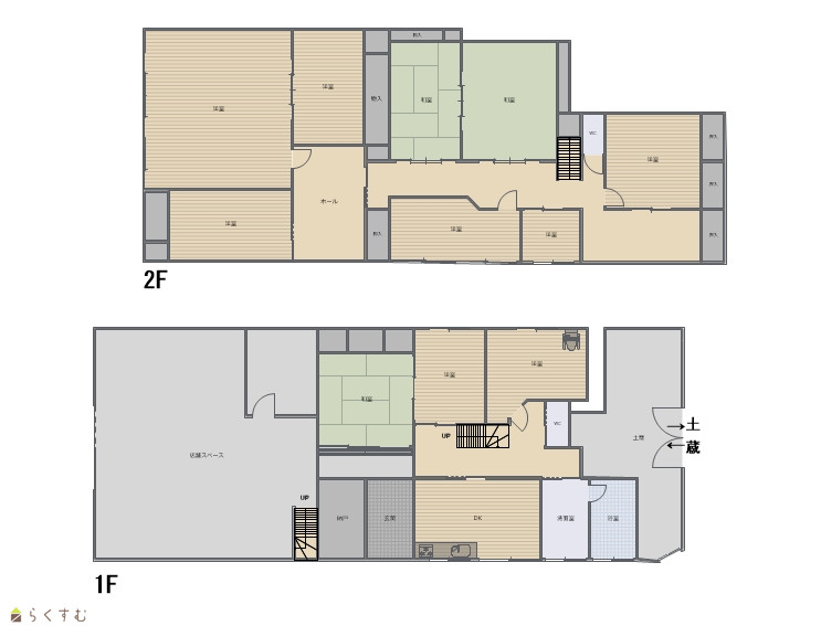
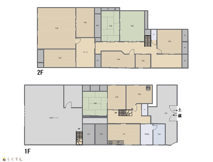
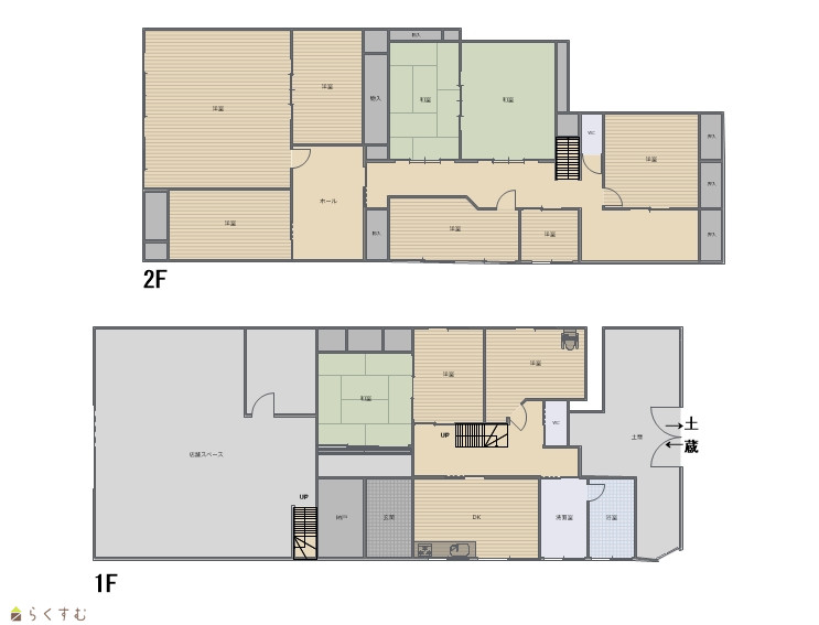
    :11DK
  • 築年月
    :1935年1月
4,800,000
  • 長岡市与板町与板 売住宅
    髙頭不動産 株式会社
  • この物件を問い合わせる/無料
  • TEL: 0120-1818-27

物件画像

外観 間取り
物件画像
※画像クリックで拡大表示
外観
物件画像
※画像クリックで拡大表示
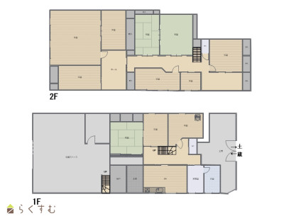
間取図(現況優先)
詳細画像


物件概要

物件コード 00040-201107
物件名 長岡市与板町与板 売住宅
交通 駅:信越線 見附駅から徒歩132分、バス:与板仲町から徒歩3分
物件所在地 新潟県長岡市与板町与板459
物件種別 中古一戸建て
構造 木造 階建 地上2階建
建ぺい率/容積率 80%/400%
建物面積 1階 173.12㎡/ 2階 153.28㎡/ 計 326.4㎡ /98.73坪
土地面積 448.08㎡ /135.54坪
築年月 1935年1月(築91年)
入居(引き渡し)時期 相談
用途地域 商業地域 地目 宅地
都市計画 市街化区域 学校区 与板小学校(428m)・与板中学校(541m)
形状 間口 14m × 奥行 29m 道路 西側 公道 約15m
私道 - その他の制限 ※準防火地域
  • 長岡市与板町与板 売住宅
    髙頭不動産 株式会社
  • この物件を問い合わせる/無料
  • TEL: 0120-1818-27

物件詳細情報

所在階/階数 - 号室 -
販売価格 4,800,000円 方位 -
間取り 11DK
専有面積 - バルコニー面積 -
その他面積 - 駐車場 -
管理費 - 修繕積立金 -
現況 空家
仲介手数料 330,000円
利用制限 -
設備 駐車2台可能、システムキッチン、トイレ2か所以上、都市ガス、上水道、下水道、事業向け
取引態様 一般
備考 ※現況有姿渡し
※売主契約不適合免責
取り扱い会社

髙頭不動産 株式会社

新潟県長岡市千歳1-3-25

情報登録日 2025/05/08 次回更新予定日 2026/05/21
取引条件有効期限 2025/08/08
  • 長岡市与板町与板 売住宅
    髙頭不動産 株式会社
  • この物件を問い合わせる/無料
  • TEL: 0120-1818-27

この物件の地図・周辺情報・行政情報

この物件の周辺情報・行政情報を詳しく見る
【周辺情報】
物件の近くにあるコンビニや銀行・学校など、アイコン付のマップで詳しく表示できます!
【行政情報】
水道料や下水道料・ガス料金など、暮らしに関係のある情報を表示しています。
マルイ 与板店(スーパー)まで910m
ウエルシア長岡与板店 (調剤薬局)(ドラッグストア)まで970m

※カメラのアイコンがある場合は、マウスをポイントするとその施設の画像がご覧いただけます。


担当取扱い店舗情報

取扱い店舗画像
髙頭不動産 株式会社
TEL: 0120-1818-27
所在地: 新潟県長岡市千歳1-3-25
交通: 長岡駅
営業時間: 8時30分~17時30分(大手支店は9時~18時)/定休日:本社:土日祝日(事前予約での対応可能)、支店:日曜祝日第5土曜(毎年2月下旬から3月は休みなし)
免許番号: 新潟県知事(17)第191号 この会社の情報を詳しく見る
所属団体名: 新潟県宅地建物取引協会 長岡支部
取引態様: 一般
ホームページ: http://www.takato-f.com