物件掲載企業数:301|賃貸物件:3,182件|売買物件:3,223件|今週の登録物件:113
閲覧中のブラウザ(インターネットエクスプローラー)は非推奨ブラウザです。
物件が正しく表示されなかったり、正しく検索されない場合があります。最新のブラウザ(Google Chrome・Edgeなど)にてご利用お願いいたします。
  

新潟県長岡市三和3丁目4-20 中古一戸建て 4LDK 43,000,000円の物件情報

【価格改定】テクノストラクチャー耐震工法採用の耐震等級3で安心の長期優良住宅

物件名/所在地 詳細 価格
三和コンセプトハウス
新潟県長岡市三和3丁目4-20
  • 土地面積
    :239.88㎡ /72.56坪
  • 建物面積
    :118.69㎡ /35.9坪
  • 間取り
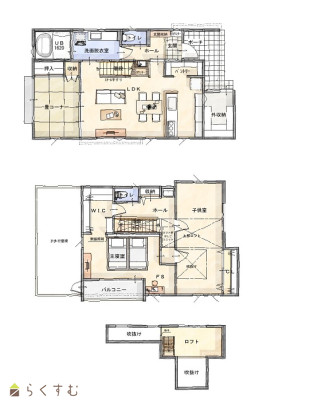
    :4LDK
  • 築年月
    :2023年9月
43,000,000
  • 三和コンセプトハウス
    株式会社 アークエイト
  • この物件を問い合わせる/無料
  • TEL: 0258-29-0070

物件画像

外観 間取り
物件画像
※画像クリックで拡大表示
外観
物件画像
※画像クリックで拡大表示
間取り
詳細画像


物件概要

物件コード 00033-200139
物件名 三和コンセプトハウス
交通 駅:信越線 宮内駅から徒歩21分、バス:市役所から徒歩5分
物件所在地 新潟県長岡市三和3丁目4-20
物件種別 中古一戸建て
構造 木造 階建 -
建ぺい率/容積率 60%/200%
建物面積 1階 66.52㎡/ 2階 52.17㎡/ 計 118.69㎡ /35.9坪
土地面積 239.88㎡ /72.56坪
築年月 2023年9月(築2年)
入居(引き渡し)時期 相談
用途地域 第2種中高層住居専用地域 地目 宅地
都市計画 市街化区域 学校区 宮内小学校(955m)・宮内中学校(1,169m)
形状 間口 9.23m × 奥行 26m 道路 市道 8m
私道 - その他の制限 -
  • 三和コンセプトハウス
    株式会社 アークエイト
  • この物件を問い合わせる/無料
  • TEL: 0258-29-0070

物件詳細情報

所在階/階数 - 号室 -
販売価格 43,000,000円 方位
間取り 4LDK (和室:6畳) (洋室:9、6.5、4.5)
LDK17.28
専有面積 - バルコニー面積 -
その他面積  パントリー、WIC、小屋裏収納 駐車場 -
管理費 - 修繕積立金 -
現況 指定なし
仲介手数料 なし
利用制限 -
設備 日当り良好、閑静な住宅街、長期優良住宅、耐震構造、瑕疵担保保険対象、耐震基準適合証明書あり、新築時図面あり、建物確認・完了検査済証あり、LDK15帖以上、築10年以内、駐車3台以上可能、TVインターホン、複層ガラス、システムキッチン、カウンターキッチン、IHクッキングヒーター、食器洗浄乾燥機、3口コンロ、追いだき機能付き、浴室乾燥機、バス1坪以上、温水洗浄便座、トイレ2か所以上、シャワー付き洗面台、エアコンあり、床暖房、24時間換気システム、省エネ給湯機、都市ガス、上水道、下水道、バリアフリー、ウォークインクローゼット、全居室収納あり、シューズBOX、LAN端子
取引態様 売主
備考 -
取り扱い会社

株式会社 アークエイト

新潟県長岡市蓮潟2-11-27

情報登録日 2026/02/20 次回更新予定日 2026/05/22
取引条件有効期限 2026/04/30
  • 三和コンセプトハウス
    株式会社 アークエイト
  • この物件を問い合わせる/無料
  • TEL: 0258-29-0070

この物件の地図・周辺情報・行政情報

この物件の周辺情報・行政情報を詳しく見る
【周辺情報】
物件の近くにあるコンビニや銀行・学校など、アイコン付のマップで詳しく表示できます!
【行政情報】
水道料や下水道料・ガス料金など、暮らしに関係のある情報を表示しています。

担当取扱い店舗情報

取扱い店舗画像
株式会社 アークエイト
TEL: 0258-29-0070
所在地: 新潟県長岡市蓮潟2-11-27
交通:
営業時間: 8:30~17:30/定休日:隔土・日祝(休日/時間外も対応します。ご連絡下さい。)
免許番号: 新潟県知事(6)4284号 この会社の情報を詳しく見る
所属団体名: 新潟県宅地建物取引業協会
取引態様: 売主
ホームページ: https://www.arceight.co.jp