物件掲載企業数:296|賃貸物件:3,618件|売買物件:3,303件|今週の登録物件:234
閲覧中のブラウザ(インターネットエクスプローラー)は非推奨ブラウザです。
物件が正しく表示されなかったり、正しく検索されない場合があります。最新のブラウザ(Google Chrome・Edgeなど)にてご利用お願いいたします。
  

新潟県長岡市下々条町2476番地13 中古一戸建て 3LDK 18,400,000円の物件情報

//閑静な住宅街に位置する、高床住宅で広々とした一戸建て// ■スーパーマルイ様まで徒歩4分で買物も便利 ■国道8号線へのアクセスも抜群(車で1分) ■徒歩圏内に公園も充実 ■高床ですので雨風に当たらない収納スペースも十分

物件名/所在地 詳細 価格
【中古住宅】長岡市下々条町 中古住宅
新潟県長岡市下々条町2476番地13
  • 土地面積
    :225.93㎡ /68.34坪
  • 建物面積
    :203.08㎡ /61.43坪
  • 間取り
    :3LDK
  • 築年月
    :2000年10月
18,400,000
  • 【中古住宅】長岡市下々条町 中古住宅
    有限会社 ABCホーム
  • この物件を問い合わせる/無料
  • TEL: 0258-35-6682

物件画像

外観 間取り
物件画像
※画像クリックで拡大表示
外観①
物件画像
※画像クリックで拡大表示
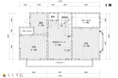
間取り2階
詳細画像


物件概要

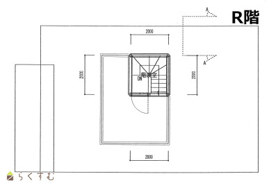
学校や公園が近く、子育て世代に最適な環境です。南向きのリビングで日当たり良好。3階はホールが広く、趣味のスペースとしてもご利用いただけます。屋上にはテラスもあり、晴れた日は日光浴もできます。
物件コード 00017-200338
物件名 【中古住宅】長岡市下々条町 中古住宅
交通 駅:信越線 押切駅から徒歩28分、バス:大野から徒歩1分
物件所在地 新潟県長岡市下々条町2476番地13
物件種別 中古一戸建て
構造 木造鉄筋コン 階建 地上3階建
建ぺい率/容積率 70%/200%
建物面積 1階 67.44㎡/ 2階 63.89㎡/ 3階 71.75㎡/ 計 203.08㎡ /61.43坪
土地面積 225.93㎡ /68.34坪
築年月 2000年10月(築25年)
入居(引き渡し)時期 相談
用途地域 第2種中高層住居専用地域 地目 宅地  (現状:宅地)
都市計画 市街化区域 学校区 黒条小学校(654m)・堤岡中学校(248m)
形状 間口 9.7m × 奥行 17.5m 道路 北東:長岡市道6m/北西:長岡市道6m ※いずれも消雪道路
私道 - その他の制限 地区整備計画 A地区(住宅)に該当
  • 【中古住宅】長岡市下々条町 中古住宅
    有限会社 ABCホーム
  • この物件を問い合わせる/無料
  • TEL: 0258-35-6682

物件詳細情報

所在階/階数 - 号室 -
販売価格 18,400,000円 方位 -
間取り 3LDK (洋室:4.3、8.5、10.9)
LDK22.9
3階:9.8帖(多目的スペース)/R階:ルーフテラス
専有面積 - バルコニー面積 -
その他面積 9.5㎡ /2.87坪  3階:バルコニー(物干しスペース) 駐車場 -
管理費 - 修繕積立金 -
現況 空家
仲介手数料 673,200円
利用制限 -
設備 角地、日当り良好、閑静な住宅街、スーパー近く、新築時図面あり、LDK15帖以上、全室フローリング、駐車3台以上可能、南向き、TVインターホン、IHクッキングヒーター、浄水器、3口コンロ、追いだき機能付き、バス1坪以上、温水洗浄便座、トイレ2か所以上、シャワー付き洗面台、エアコンあり、都市ガス、上水道、下水道、ウォークインクローゼット、シューズBOX
取引態様 一般
備考 前面道路は消雪道路です
取り扱い会社

有限会社 ABCホーム

新潟県長岡市曙1-1-7

情報登録日 2024/11/25 次回更新予定日 2025/11/24
取引条件有効期限 2025/02/20
  • 【中古住宅】長岡市下々条町 中古住宅
    有限会社 ABCホーム
  • この物件を問い合わせる/無料
  • TEL: 0258-35-6682

この物件の地図・周辺情報・行政情報

この物件の周辺情報・行政情報を詳しく見る
【周辺情報】
物件の近くにあるコンビニや銀行・学校など、アイコン付のマップで詳しく表示できます!
【行政情報】
水道料や下水道料・ガス料金など、暮らしに関係のある情報を表示しています。

担当取扱い店舗情報

取扱い店舗画像
有限会社 ABCホーム
TEL: 0258-35-6682
所在地: 新潟県長岡市曙1-1-7
交通:
営業時間: 9:00~18:00/定休日:
免許番号: 新潟県知事(4)4781号 この会社の情報を詳しく見る
所属団体名: 新潟県宅地建物取引業協会 長岡支部
取引態様: 一般
ホームページ: http://abc-home.d.dooo.jp/