物件掲載企業数:300|賃貸物件:2,775件|売買物件:3,235件|今週の登録物件:277
閲覧中のブラウザ(インターネットエクスプローラー)は非推奨ブラウザです。
物件が正しく表示されなかったり、正しく検索されない場合があります。最新のブラウザ(Google Chrome・Edgeなど)にてご利用お願いいたします。
  

新潟県長岡市城内町1丁目2-6 投資物件・その他 58,000,000円の物件情報

長岡駅160m徒歩約2分

物件名/所在地 詳細 価格
表面利回り
城内町1丁目 売中古ビル
新潟県長岡市城内町1丁目2-6
  • 土地面積
    :167.5㎡ /50.66坪
  • 建ぺい率
    :80%
  • 容積率
    :600%
58,000,000
-
  • 城内町1丁目 売中古ビル
    株式会社 金井不動産
  • この物件を問い合わせる/無料
  • TEL: 0120-35-3901

物件画像

外観 間取り
物件画像
※画像クリックで拡大表示
外観
物件画像
※画像クリックで拡大表示
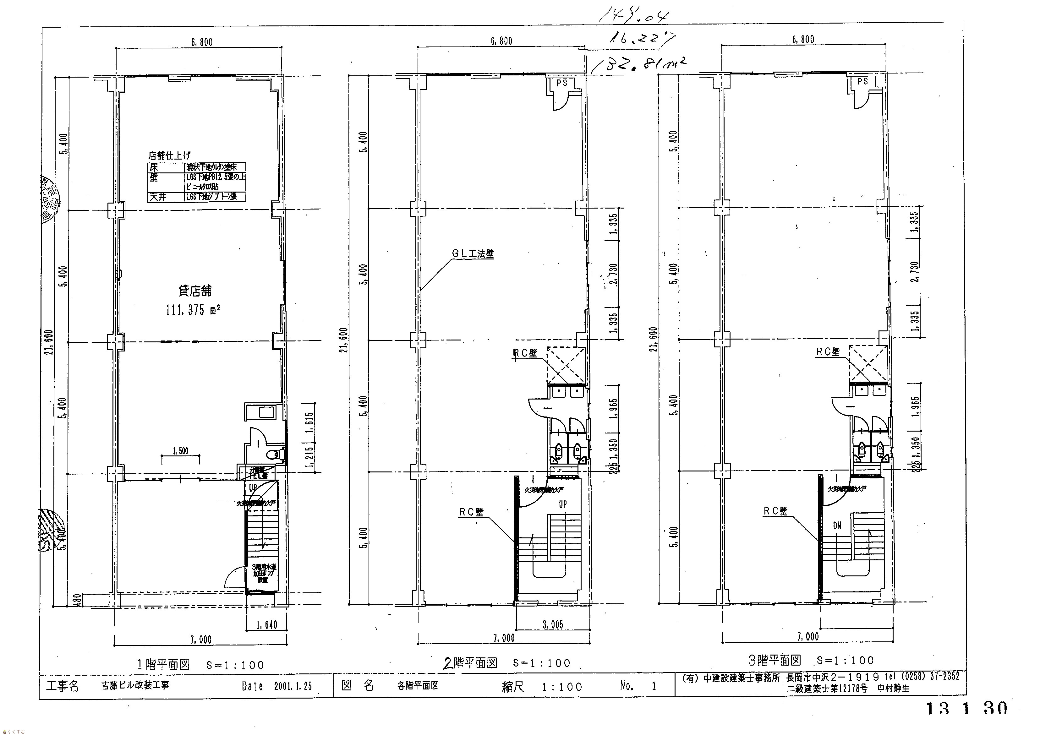
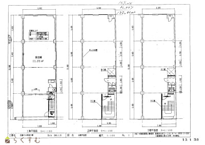
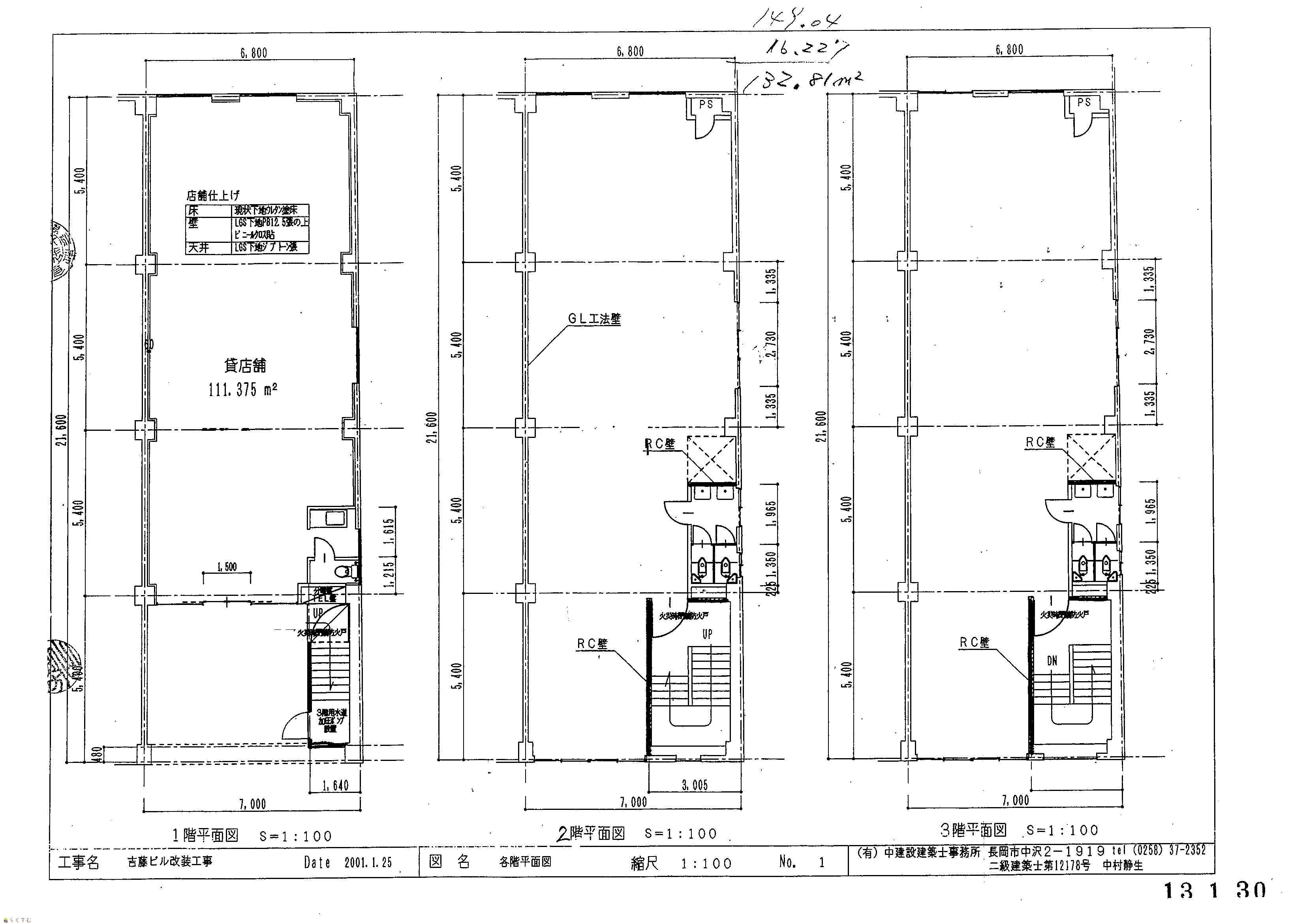
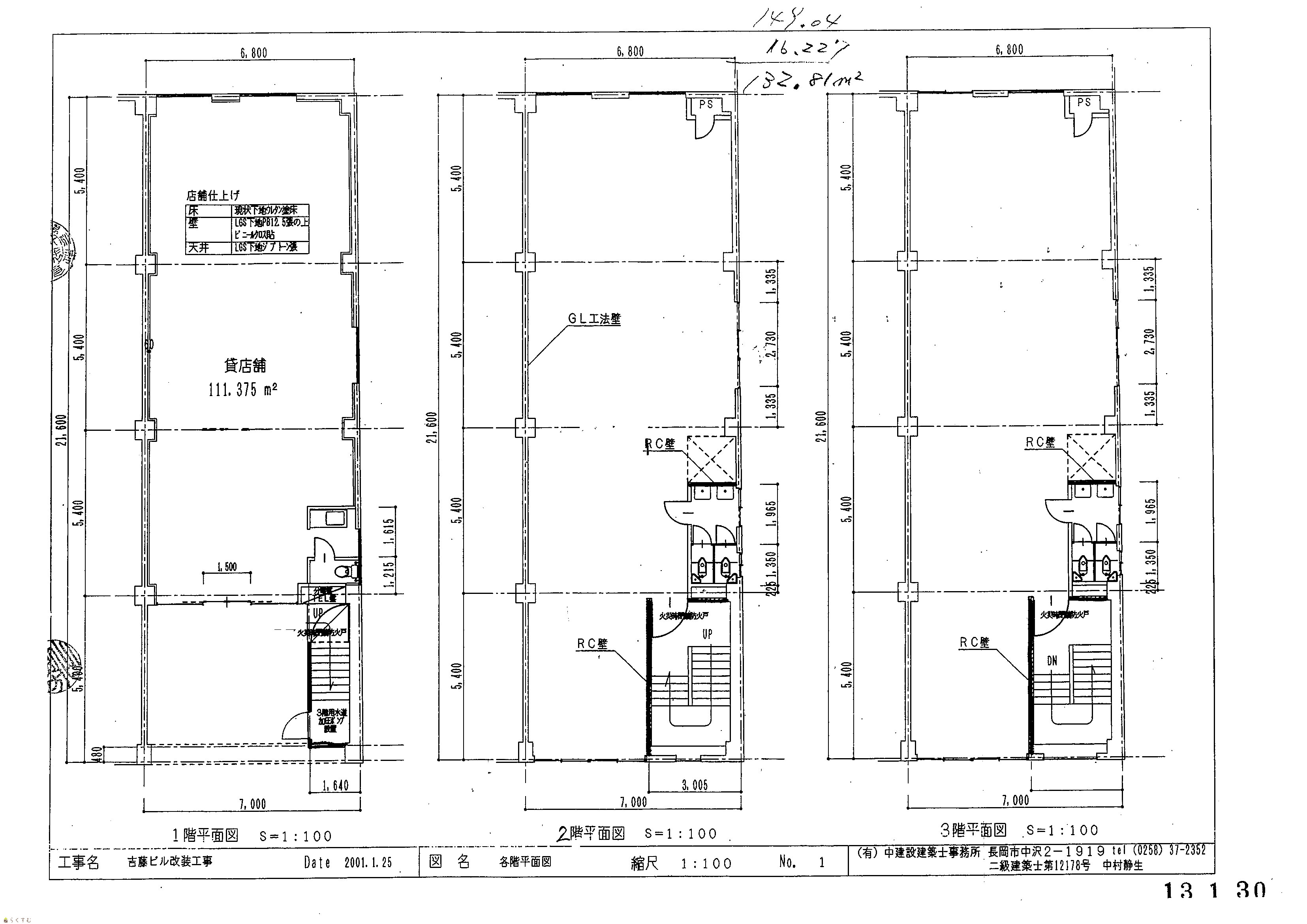
建物図面
詳細画像


物件概要

物件コード 00014-200335
物件名 城内町1丁目 売中古ビル
交通 駅:上越新幹線 長岡駅から徒歩5分、バス:厚生会館前から徒歩4分
物件所在地 新潟県長岡市城内町1丁目2-6
物件種別 投資物件・その他
物件区分 その他
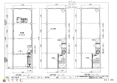
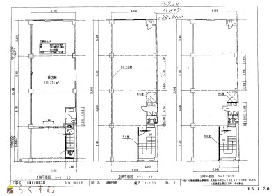
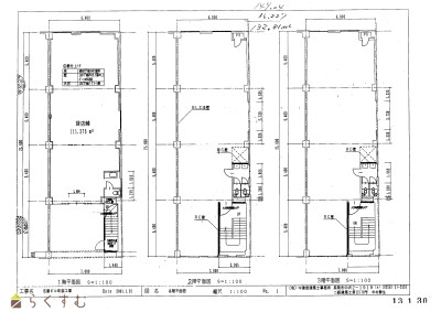
構造 鉄筋コン 階建 地上3階建
建ぺい率/容積率 80%/600%
建物面積 1階 144.99㎡/ 2階 145.2㎡/ 3階 145.2㎡/ 計 435.39㎡ /131.7坪
土地面積 167.5㎡ /50.66坪
築年月 1977年8月(築48年)
入居(引き渡し)時期 相談
用途地域 商業地域 地目 宅地  (現状:宅地)
都市計画 市街化区域 学校区 阪之上小学校・東中学校
形状 - 道路 長岡市道
私道 - その他の制限 防火地域・まちなか居住区域・都市機能誘導区域・埋蔵文化財包蔵地内
  • 城内町1丁目 売中古ビル
    株式会社 金井不動産
  • この物件を問い合わせる/無料
  • TEL: 0120-35-3901

物件詳細情報

所在階/階数 - 号室 -
販売価格 58,000,000円 方位 -
表面利回り(満室想定時) - 満室想定年収 - (想定月収: - )
現行利回り - 現行年間年収 -
住戸数 -
間取り -
専有面積 - バルコニー面積 -
その他面積 - 駐車場 -
管理費 - 修繕積立金 -
現況 賃貸中
仲介手数料 1,980,000円
利用制限 -
設備 事業向け
取引態様 一般
備考 -
取り扱い会社

株式会社 金井不動産

新潟県長岡市要町3-1-26

情報登録日 2023/03/11 次回更新予定日 2026/05/01
取引条件有効期限 2023/04/30
  • 城内町1丁目 売中古ビル
    株式会社 金井不動産
  • この物件を問い合わせる/無料
  • TEL: 0120-35-3901

この物件の地図・周辺情報・行政情報

この物件の周辺情報・行政情報を詳しく見る
【周辺情報】
物件の近くにあるコンビニや銀行・学校など、アイコン付のマップで詳しく表示できます!
【行政情報】
水道料や下水道料・ガス料金など、暮らしに関係のある情報を表示しています。

担当取扱い店舗情報

取扱い店舗画像
株式会社 金井不動産
TEL: 0120-35-3901
所在地: 新潟県長岡市要町3-1-26
交通: 長岡駅大手口①バス乗場より乗車~溝橋下車徒歩約4分
営業時間: 9:30~18:00/定休日:日曜・祝祭日
免許番号: 新潟県知事(16)第495号 この会社の情報を詳しく見る
所属団体名: 新潟県宅地建物取引業協会 長岡支部
取引態様: 一般
ホームページ: http://www.3901.com