物件掲載企業数:300|賃貸物件:2,773件|売買物件:3,235件|今週の登録物件:271
閲覧中のブラウザ(インターネットエクスプローラー)は非推奨ブラウザです。
物件が正しく表示されなかったり、正しく検索されない場合があります。最新のブラウザ(Google Chrome・Edgeなど)にてご利用お願いいたします。
  

新潟県長岡市曙2丁目4番20 投資物件・その他 128,000,000円の物件情報

物件名/所在地 詳細 価格
表面利回り
曙2丁目 1棟売マンション 土地246坪
新潟県長岡市曙2丁目4番20
  • 土地面積
    :813.41㎡ /246.05坪
  • 建ぺい率
    :60%
  • 容積率
    :200%
128,000,000
-
  • 曙2丁目 1棟売マンション 土地246坪
    株式会社 金井不動産
  • この物件を問い合わせる/無料
  • TEL: 0120-35-3901

物件画像

外観 間取り
物件画像
※画像クリックで拡大表示
外観
物件画像
※画像クリックで拡大表示
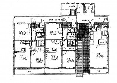
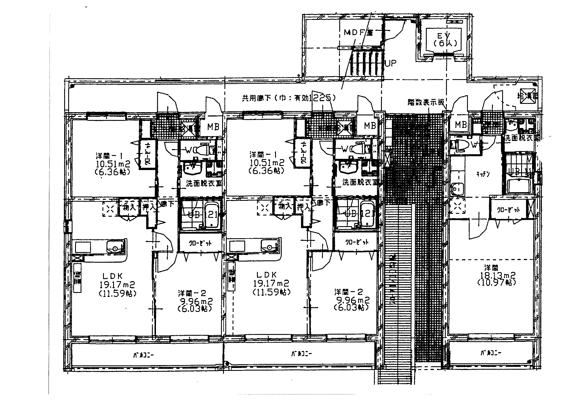
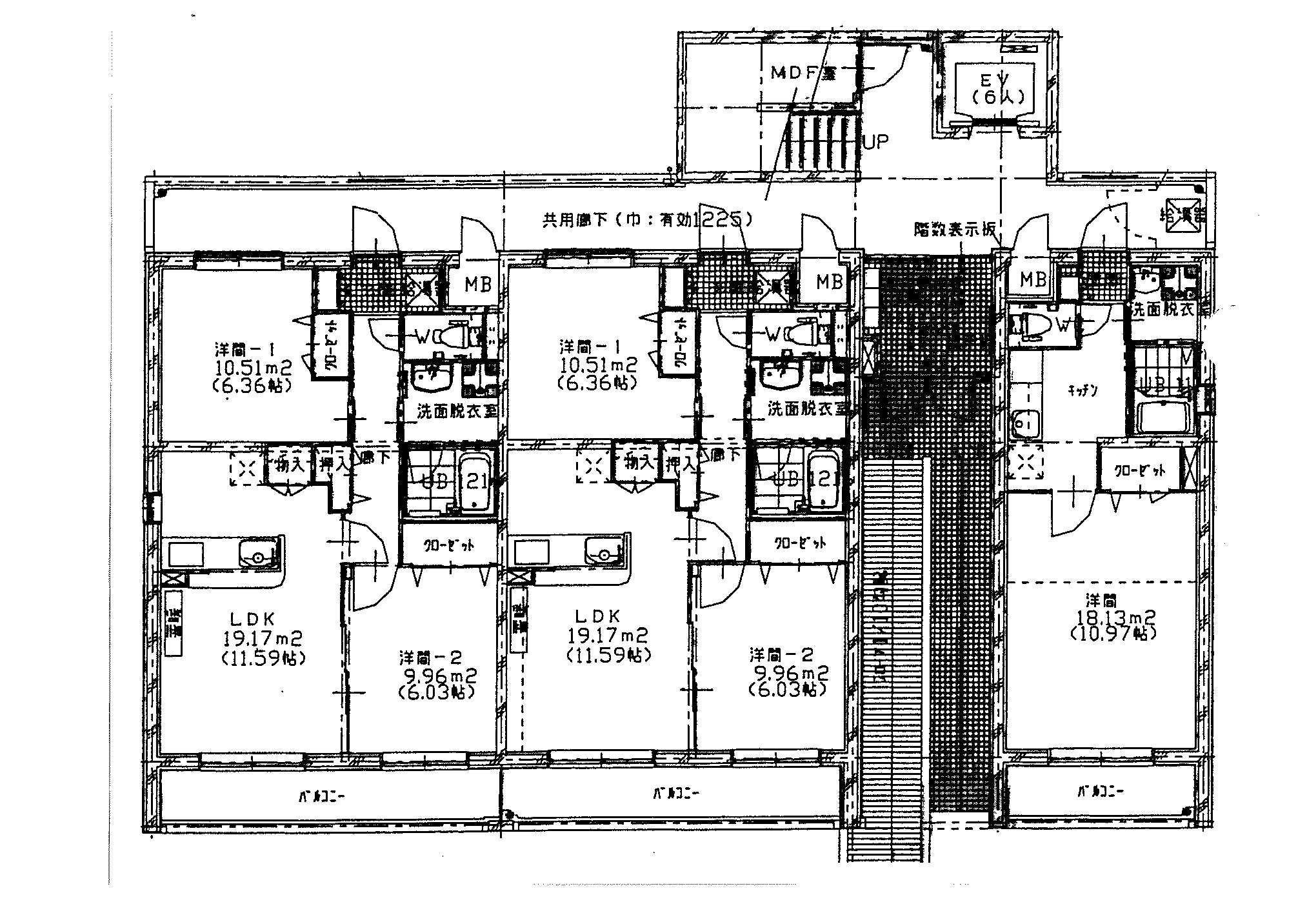
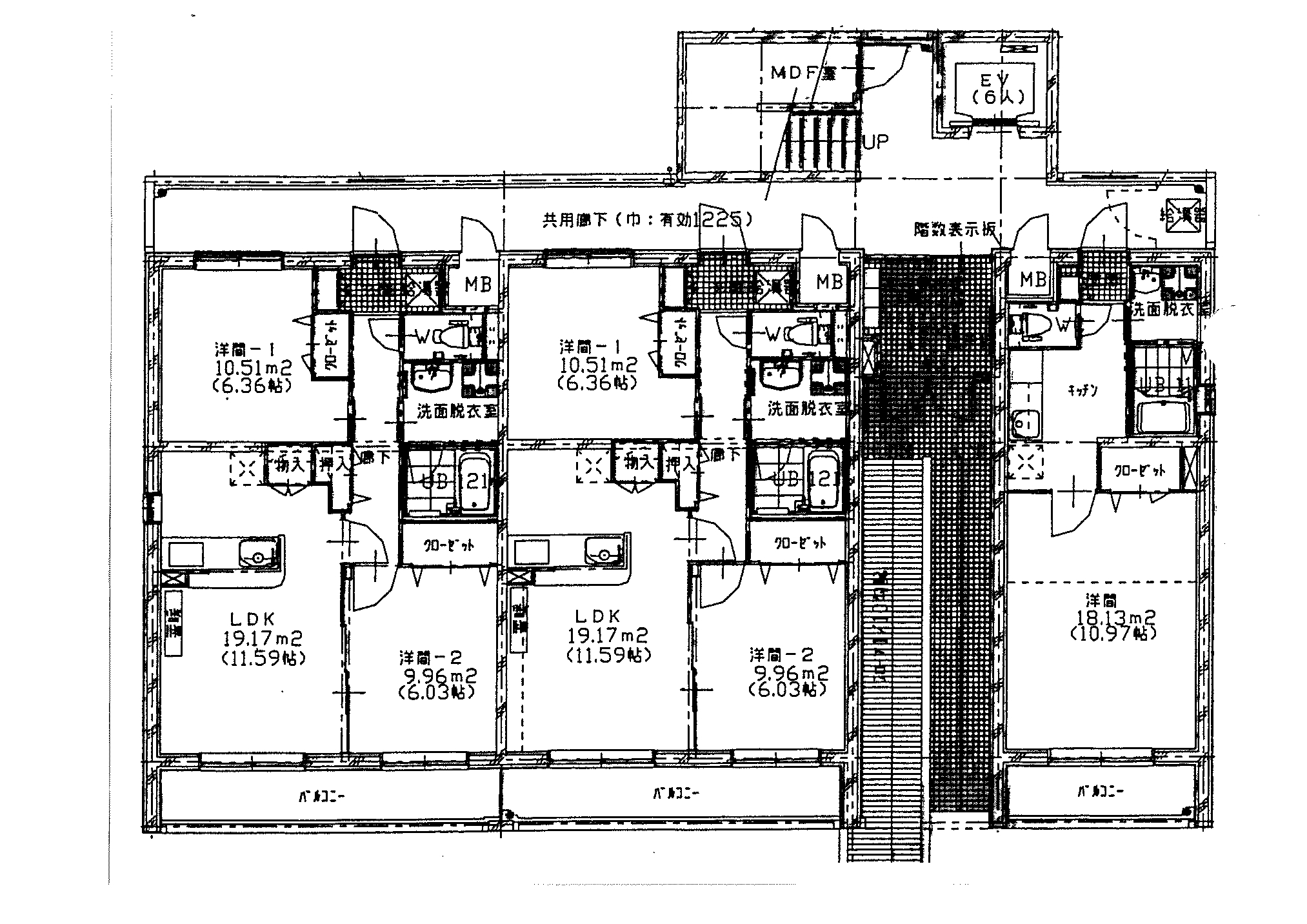
図面
詳細画像


物件概要

物件コード 00014-200203
物件名 曙2丁目 1棟売マンション 土地246坪
交通 バス:曙2丁目から徒歩1分
物件所在地 新潟県長岡市曙2丁目4番20
物件種別 投資物件・その他
物件区分 その他
構造 鉄筋コン 階建 地上3階建
建ぺい率/容積率 60%/200%
建物面積 1階 159.26㎡/ 2階 177.46㎡/ 3階 177.46㎡/ 計 514.18㎡ /155.53坪
土地面積 813.41㎡ /246.05坪
築年月 2008年3月(築18年)
入居(引き渡し)時期 相談
用途地域 第2種住居地域 地目 宅地  (現状:宅地)
都市計画 市街化区域 学校区 豊田小学校(645m)・旭岡中学校(702m)
形状 間口 20m × 奥行 38m 道路 東側市道幅員18m
私道 - その他の制限 第3種高度地区
  • 曙2丁目 1棟売マンション 土地246坪
    株式会社 金井不動産
  • この物件を問い合わせる/無料
  • TEL: 0120-35-3901

物件詳細情報

所在階/階数 - 号室 -
販売価格 128,000,000円 方位 -
表面利回り(満室想定時) - 満室想定年収 - (想定月収: - )
現行利回り - 現行年間年収 -
住戸数 -
間取り -
専有面積 - バルコニー面積 -
その他面積 - 駐車場 付無料
管理費 - 修繕積立金 -
現況 賃貸中
仲介手数料 4,290,000円
利用制限 -
設備 エレベーター、駐車場(近隣含む)
取引態様 一般
備考 現在空室  戸
取り扱い会社

株式会社 金井不動産

新潟県長岡市要町3-1-26

情報登録日 2023/11/18 次回更新予定日 2026/05/01
取引条件有効期限 2024/03/31
  • 曙2丁目 1棟売マンション 土地246坪
    株式会社 金井不動産
  • この物件を問い合わせる/無料
  • TEL: 0120-35-3901

この物件の地図・周辺情報・行政情報

この物件の周辺情報・行政情報を詳しく見る
【周辺情報】
物件の近くにあるコンビニや銀行・学校など、アイコン付のマップで詳しく表示できます!
【行政情報】
水道料や下水道料・ガス料金など、暮らしに関係のある情報を表示しています。

担当取扱い店舗情報

取扱い店舗画像
株式会社 金井不動産
TEL: 0120-35-3901
所在地: 新潟県長岡市要町3-1-26
交通: 長岡駅大手口①バス乗場より乗車~溝橋下車徒歩約4分
営業時間: 9:30~18:00/定休日:日曜・祝祭日
免許番号: 新潟県知事(16)第495号 この会社の情報を詳しく見る
所属団体名: 新潟県宅地建物取引業協会 長岡支部
取引態様: 一般
ホームページ: http://www.3901.com