物件掲載企業数:301|賃貸物件:3,182件|売買物件:3,223件|今週の登録物件:112
閲覧中のブラウザ(インターネットエクスプローラー)は非推奨ブラウザです。
物件が正しく表示されなかったり、正しく検索されない場合があります。最新のブラウザ(Google Chrome・Edgeなど)にてご利用お願いいたします。
  

新潟県長岡市古正寺町字中割10-7 中古一戸建て 6DK 13,350,000円の物件情報

人気の古正寺地区!2世帯向き住宅!スーパー徒歩5分!長岡西病院徒歩4分!三ツ郷屋児童公園前!

物件名/所在地 詳細 価格
古正寺町売家
新潟県長岡市古正寺町字中割10-7
  • 土地面積
    :196.15㎡ /59.33坪
  • 建物面積
    :158.97㎡ /48.08坪
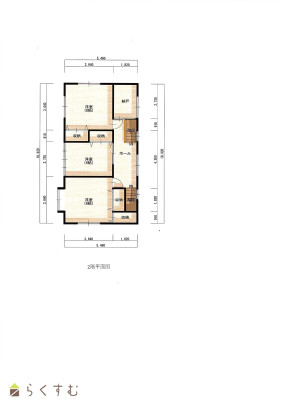
  • 間取り
    :6DK
  • 築年月
    :1976年12月
13,350,000
  • 古正寺町売家
    株式会社 新日本地所
  • この物件を問い合わせる/無料
  • TEL: 0258-33-8166

物件画像

外観 間取り
物件画像
※画像クリックで拡大表示
外観
物件画像
※画像クリックで拡大表示
間取り
詳細画像


物件概要

人気の古正寺地区!2世帯向き住宅!スーパー徒歩5分!長岡西病院徒歩4分!三ツ郷屋児童公園前!
物件コード 00012-200109
物件名 古正寺町売家
交通 駅:上越新幹線 長岡駅から徒歩48分、バス:長岡西病院前から徒歩3分
物件所在地 新潟県長岡市古正寺町字中割10-7
物件種別 中古一戸建て
構造 木造 階建 地上2階建
建ぺい率/容積率 60%/200%
建物面積 1階 109.29㎡/ 2階 49.68㎡/ 計 158.97㎡ /48.08坪
土地面積 196.15㎡ /59.33坪
築年月 1976年12月(築49年)
入居(引き渡し)時期 随時入居(引き渡し)可
用途地域 第1種中高層住居専用地域 地目 宅地  (現状:宅地)
都市計画 市街化区域 学校区 大島小学校(750m)・大島中学校(251m)
形状 間口 9.09m × 奥行 21.58m 道路 長岡市道 日越46号線 6.0m
私道 - その他の制限 第2種高度地区
  • 古正寺町売家
    株式会社 新日本地所
  • この物件を問い合わせる/無料
  • TEL: 0258-33-8166

物件詳細情報

所在階/階数 - 号室 -
販売価格 13,350,000円 方位
間取り 6DK (和室:8畳) (洋室:8、8、8、8、6)
DK8.DK4.5
専有面積 - バルコニー面積 -
その他面積 - 駐車場 -
管理費 - 修繕積立金 -
現況 空家
仲介手数料 506,550円
利用制限 -
設備 閑静な住宅街、スーパー近く、駐車3台以上可能、トイレ2か所以上、都市ガス、上水道、下水道、2世帯向き
取引態様 一般
備考 2005年大幅リホーム工事済。但し、浴槽1個所は、利用不可等によりリホーム工事要す。
エアコン及びクーラーは、利用可の製品は、無償譲渡。
雨水排水は、道路占用許可を取得し現在利用中(名義変更要す。)
取り扱い会社

株式会社 新日本地所

新潟県長岡市殿町1-3-3

情報登録日 2026/03/18 次回更新予定日 2026/05/22
取引条件有効期限 2026/05/31
  • 古正寺町売家
    株式会社 新日本地所
  • この物件を問い合わせる/無料
  • TEL: 0258-33-8166

この物件の地図・周辺情報・行政情報

この物件の周辺情報・行政情報を詳しく見る
【周辺情報】
物件の近くにあるコンビニや銀行・学校など、アイコン付のマップで詳しく表示できます!
【行政情報】
水道料や下水道料・ガス料金など、暮らしに関係のある情報を表示しています。

担当取扱い店舗情報

取扱い店舗画像
株式会社 新日本地所
TEL: 0258-33-8166
所在地: 新潟県長岡市殿町1-3-3
交通: 長岡駅より350m
営業時間: 9:00~17:00/定休日:土曜・日曜・祭日 但し3月は土曜営業
免許番号: 新潟県知事(14)第1068号 この会社の情報を詳しく見る
所属団体名: 新潟県宅地建物取引業協会 長岡支部
取引態様: 一般