物件掲載企業数:300|賃貸物件:2,775件|売買物件:3,235件|今週の登録物件:277
閲覧中のブラウザ(インターネットエクスプローラー)は非推奨ブラウザです。
物件が正しく表示されなかったり、正しく検索されない場合があります。最新のブラウザ(Google Chrome・Edgeなど)にてご利用お願いいたします。
  

新潟県長岡市日赤町1丁目51番地.50番地 投資物件・その他 65,000,000円の物件情報

長岡花火会場正面!スーパーウオロク徒歩3分!

物件名/所在地 詳細 価格
表面利回り
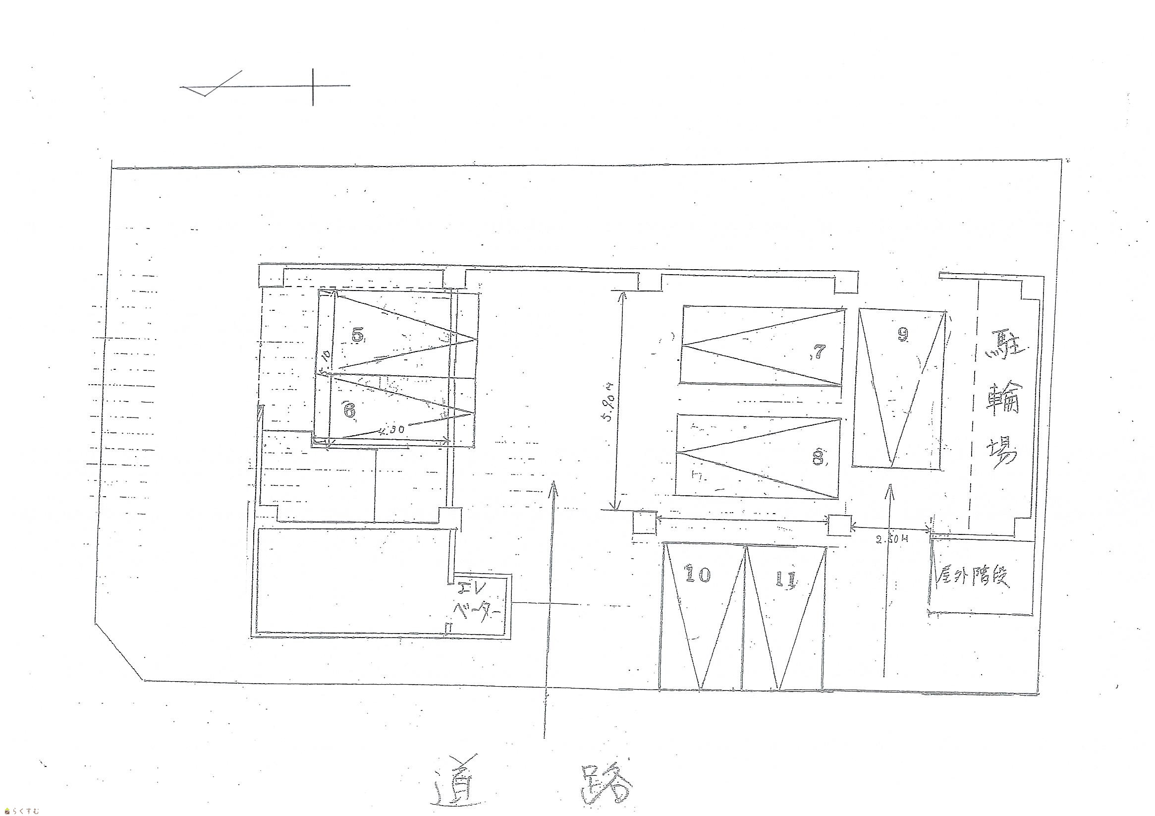
グランペール日赤 18区画
新潟県長岡市日赤町1丁目51番地.50番地
  • 土地面積
    :422.4㎡ /127.77坪
  • 建ぺい率
    :90%
  • 容積率
    :300%
65,000,000
14.84%
(満室想定時)
  • グランペール日赤 18区画
    株式会社 新日本地所
  • この物件を問い合わせる/無料
  • TEL: 0258-33-8166

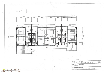
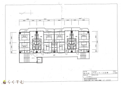
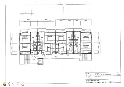
物件画像

外観 間取り
物件画像
※画像クリックで拡大表示
外観
物件画像
※画像クリックで拡大表示
1階配置図
詳細画像


物件概要

長岡花火会場正面!スーパーウオロク徒歩3分!
物件コード 00012-200095
物件名 グランペール日赤 18区画
交通 駅:上越新幹線 長岡駅から徒歩15分、バス:大手大橋東詰から徒歩4分
物件所在地 新潟県長岡市日赤町1丁目51番地.50番地
物件種別 投資物件・その他
物件区分 1棟売りマンション・アパート
構造 鉄筋コン 階建 地上6階建
建ぺい率/容積率 90%/300%
建物面積 1階 196.2㎡/ 2階 197.92㎡/ 3階 199.65㎡/ 4階 199.65㎡/ 計 1,190.99㎡ /360.27坪
土地面積 422.4㎡ /127.77坪
築年月 1977年11月(築48年)
入居(引き渡し)時期 相談
用途地域 近隣商業地域 地目 宅地  (現状:建付地)
都市計画 市街化区域 学校区 中島小学校(267m)・東中学校(1,069m)
形状 間口 23m × 奥行 17m 道路 -
私道 - その他の制限 準防火地域
  • グランペール日赤 18区画
    株式会社 新日本地所
  • この物件を問い合わせる/無料
  • TEL: 0258-33-8166

物件詳細情報

所在階/階数 - 号室 -
販売価格 65,000,000円 方位 -
表面利回り(満室想定時) 14.84% 満室想定年収 9,648,000円 (想定月収: 804,000円 )
現行利回り 11.7% 現行年間年収 7,608,000円
住戸数 18
間取り 2k.
専有面積 43.2㎡ /13.06坪 ~ 86.4㎡ /26.13坪 バルコニー面積 -
その他面積 - 駐車場 屋内9,000円/月
管理費 - 修繕積立金 -
現況 賃貸中
仲介手数料 2,211,000円
利用制限 ペット:不可、楽器:不可
設備 角地、エレベーター、駐車場(近隣含む)、公営水道、都市ガス、下水道
取引態様 一般
備考 年間基本経費 合計2,400,247円/年
内訳 EV維持費63,400円×12月=765,600円.管理費29,700円×12月=
356,400円.清掃費19,525円×4回=78,100円.固定資産税・都市計画税
877,457円.火災保険224,570円.貯水槽清掃66,550円.消防設備点検31,570円  合計2,400,247円
2階 事務所1区画あり
取り扱い会社

株式会社 新日本地所

新潟県長岡市殿町1-3-3

情報登録日 2024/07/09 次回更新予定日 2026/05/01
取引条件有効期限 2024/10/05
  • グランペール日赤 18区画
    株式会社 新日本地所
  • この物件を問い合わせる/無料
  • TEL: 0258-33-8166

この物件の地図・周辺情報・行政情報

この物件の周辺情報・行政情報を詳しく見る
【周辺情報】
物件の近くにあるコンビニや銀行・学校など、アイコン付のマップで詳しく表示できます!
【行政情報】
水道料や下水道料・ガス料金など、暮らしに関係のある情報を表示しています。

担当取扱い店舗情報

取扱い店舗画像
株式会社 新日本地所
TEL: 0258-33-8166
所在地: 新潟県長岡市殿町1-3-3
交通: 長岡駅より350m
営業時間: 9:00~17:00/定休日:土曜・日曜・祭日 但し3月は土曜営業
免許番号: 新潟県知事(14)第1068号 この会社の情報を詳しく見る
所属団体名: 新潟県宅地建物取引業協会 長岡支部
取引態様: 一般