物件掲載企業数:301|賃貸物件:3,189件|売買物件:3,240件|今週の登録物件:302
閲覧中のブラウザ(インターネットエクスプローラー)は非推奨ブラウザです。
物件が正しく表示されなかったり、正しく検索されない場合があります。最新のブラウザ(Google Chrome・Edgeなど)にてご利用お願いいたします。
  

新潟県見附市本所1丁目513番21 新築一戸建て 3LDK 25,800,000円の物件情報

シューズクローク付◆商業施設が徒歩圏内◆駅近◆前面道路には消雪パイプ完備♪

物件名/所在地 詳細 価格
見附市本所1丁目 建売住宅 2号棟
新潟県見附市本所1丁目513番21
  • 土地面積
    :150.12㎡ /45.41坪
  • 建物面積
    :95.02㎡ /28.74坪
  • 間取り
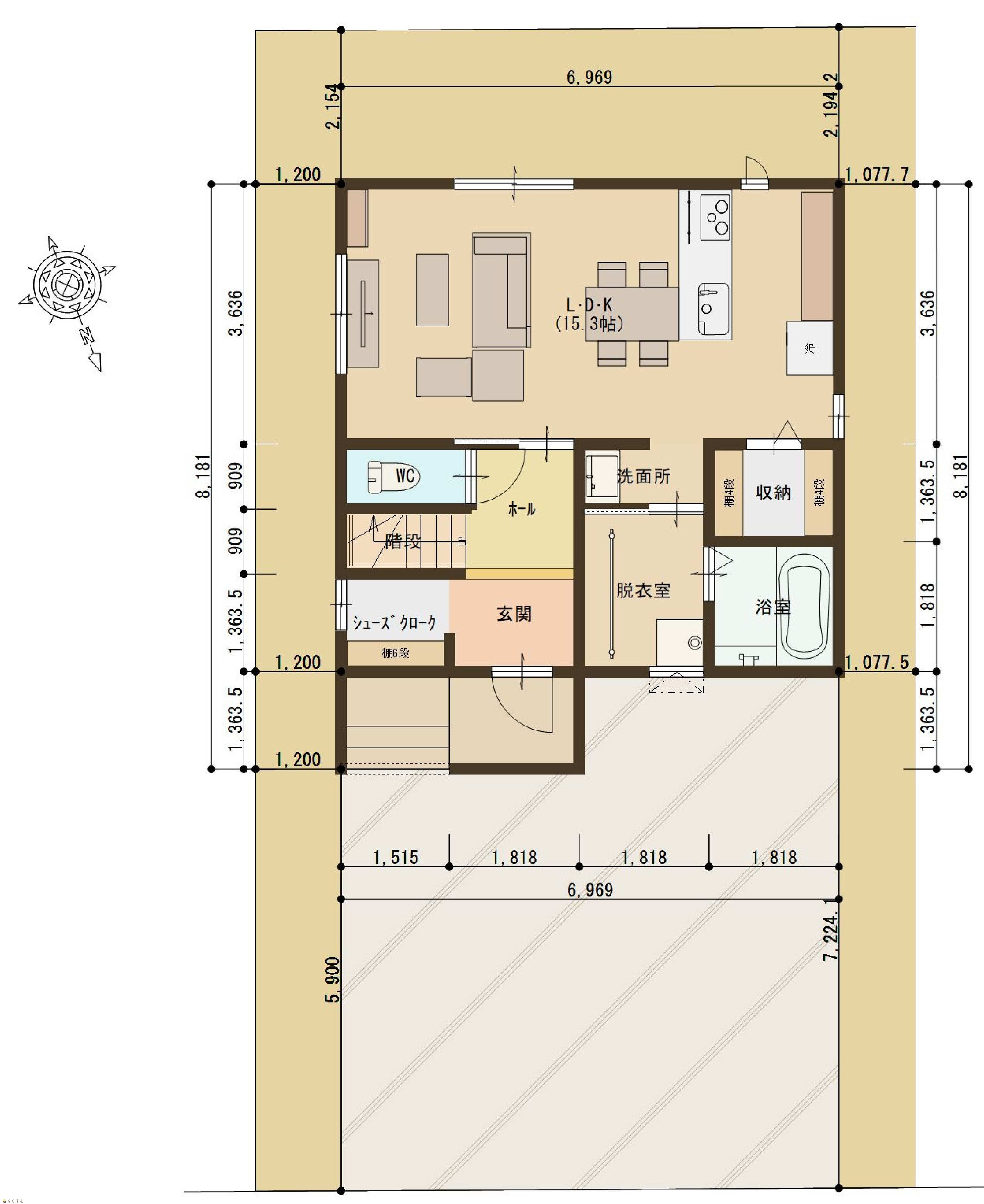
    :3LDK
  • 築年月
    :2026年8月
25,800,000
  • 見附市本所1丁目 建売住宅 2号棟
    有限会社 一代工務店
  • この物件を問い合わせる/無料
  • TEL: 0258-34-2221

物件画像

外観 間取り
物件画像
※画像クリックで拡大表示
※画像はイメージとなり実物と異なる場合があります。
物件画像
※画像クリックで拡大表示
地型付間取り図
詳細画像


物件概要

<令和8年8月完成予定>●シューズクロークがあり、いつでもスッキリした玄関♪ ●ドラッグストアやコンビニが徒歩圏内でお買い物に便利な立地です♪ ●駅近で通勤通学にも便利!旅行や遠出する際、交通手段の選択肢が増えますね♪ ●前面道路が広く、車の出し入れがスムーズ♪ ●前面道路には消雪パイプも完備で冬も安心! ●保育園徒歩圏内で送り迎えに便利!
物件コード 00007-200781
物件名 見附市本所1丁目 建売住宅 2号棟
交通 駅:信越線 見附駅から徒歩9分、バス:見附高校前から徒歩3分
物件所在地 新潟県見附市本所1丁目513番21
物件種別 新築一戸建て
構造 木造 階建 地上2階建
建ぺい率/容積率 60%/200%
建物面積 計 95.02㎡ /28.74坪
土地面積 150.12㎡ /45.41坪
築年月 2026年8月完成予定
入居(引き渡し)時期 相談
用途地域 第1種中高層住居専用地域 地目 宅地
都市計画 市街化区域 学校区 見附小学校(1,305m)・西中学校(1,277m)
形状 - 道路 北東側:市道8.0m
私道 - その他の制限 -
  • 見附市本所1丁目 建売住宅 2号棟
    有限会社 一代工務店
  • この物件を問い合わせる/無料
  • TEL: 0258-34-2221

物件詳細情報

所在階/階数 - 号室 -
販売価格 25,800,000円 方位 北東
間取り 3LDK (洋室:7、6.7、6.2)
LDK15.3
建築確認番号:NK第25長01191号
専有面積 - バルコニー面積 -
その他面積 - 駐車場 -
管理費 - 修繕積立金 -
現況 指定なし
仲介手数料 なし
利用制限 -
設備 整形地、前面道路6m以上、日当り良好、閑静な住宅街、BELS/省エネ基準適合認定建物、フラット35S適合、LDK15畳以上、全室フローリング、駐車場2台以上、駐車場3台以上、TVインターホン、複層ガラス、ディンプルキー、システムキッチン、IHクッキングヒーター、3口コンロ、追いだき機能付き、バス1坪以上、温水洗浄便座、シャワー付き洗面台、エアコン、24時間換気システム、省エネ給湯、高気密高断熱住宅、都市ガス、上水道、下水道、電気、ウォークインクローゼット、全居室収納あり、床下収納、シューズインクローゼット、照明器具付き
取引態様 売主
備考 ・22条指定区域

※物件掲載内容と現況に相違がある場合は現況を優先と致します。
詳細はお気軽にお問い合わせください。
担当:沼田
携帯:070-8449-3715
取り扱い会社

有限会社 一代工務店

新潟県長岡市信濃2-5-36

情報登録日 2026/04/28 次回更新予定日 2026/05/12
取引条件有効期限 2026/06/01
  • 見附市本所1丁目 建売住宅 2号棟
    有限会社 一代工務店
  • この物件を問い合わせる/無料
  • TEL: 0258-34-2221

この物件の地図・周辺情報・行政情報

この物件の周辺情報・行政情報を詳しく見る
【周辺情報】
物件の近くにあるコンビニや銀行・学校など、アイコン付のマップで詳しく表示できます!
【行政情報】
水道料や下水道料・ガス料金など、暮らしに関係のある情報を表示しています。
セブン-イレブン 見附本所店(コンビニ)まで290m
ローソン 見附本所一丁目店(コンビニ)まで710m
クスリのアオキ 本所店(ドラッグストア)まで620m
見附駅前郵便局(郵便局)まで590m

※カメラのアイコンがある場合は、マウスをポイントするとその施設の画像がご覧いただけます。


担当取扱い店舗情報

取扱い店舗画像
有限会社 一代工務店
TEL: 0258-34-2221
所在地: 新潟県長岡市信濃2-5-36
交通: 長岡駅
営業時間: 9:00~18:00/定休日:
免許番号: 新潟県知事(12)2196号 この会社の情報を詳しく見る
所属団体名: 新潟県宅地建物取引業協会 長岡支部
取引態様: 売主
ホームページ: http://www.ichidai-k.co.jp/