物件掲載企業数:295|賃貸物件:3,622件|売買物件:3,321件|今週の登録物件:219
閲覧中のブラウザ(インターネットエクスプローラー)は非推奨ブラウザです。
物件が正しく表示されなかったり、正しく検索されない場合があります。最新のブラウザ(Google Chrome・Edgeなど)にてご利用お願いいたします。
  

新潟県三条市下坂井153番7 中古一戸建て 3LDK 21,800,000円の物件情報

<築浅未入居住宅>東三条駅まで徒歩4分!コンビニ・スーパーも徒歩圏内♪ 水廻りが集中しているため、家事動線がスムーズです。 洗面脱衣室に物干しスペースを設けましたので、洗濯物を運ぶことなく干せます。

物件名/所在地 詳細 価格
三条市下坂井 建売住宅(未入居住宅)①
新潟県三条市下坂井153番7
  • 土地面積
    :122.18㎡ /36.95坪
  • 建物面積
    :87.44㎡ /26.45坪
  • 間取り
    :3LDK
  • 築年月
    :2024年9月
21,800,000
  • 三条市下坂井 建売住宅(未入居住宅)①
    有限会社 一代工務店
  • この物件を問い合わせる/無料
  • TEL: 0258-34-2221

物件画像

外観 間取り
物件画像
※画像クリックで拡大表示
外観
物件画像
※画像クリックで拡大表示
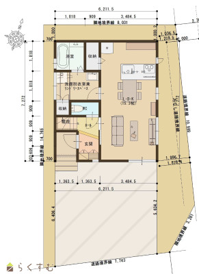
地型付間取り図
詳細画像


物件概要

駐車場3台可能で余裕のある駐車スペース!キッチン脇にはパントリーがありますので、お米やペットボトル等ストック出来ます。 対面キッチンはリビングにいるご家族の様子を見ながら調理出来ますので、小さなお子様がいるご家族でも安心です。
物件コード 00007-200747
物件名 三条市下坂井 建売住宅(未入居住宅)①
交通 駅:弥彦線 東三条駅から徒歩3分、バス:三条商業高校から徒歩3分
物件所在地 新潟県三条市下坂井153番7
物件種別 中古一戸建て
構造 木造 階建 地上2階建
建ぺい率/容積率 60%/200%
建物面積 計 87.44㎡ /26.45坪
土地面積 122.18㎡ /36.95坪
築年月 2024年9月(築1年)
入居(引き渡し)時期 随時入居(引き渡し)可
用途地域 第1種住居地域 地目 宅地
都市計画 非線引き都市計画区域 学校区 大崎学園(小)(1,692m)・大崎学園(中)(1,692m)
形状 - 道路 南東側:市道約5.1m
私道 - その他の制限 準防火地域
  • 三条市下坂井 建売住宅(未入居住宅)①
    有限会社 一代工務店
  • この物件を問い合わせる/無料
  • TEL: 0258-34-2221

物件詳細情報

所在階/階数 - 号室 -
販売価格 21,800,000円 方位 南東
間取り 3LDK (洋室:7.6、5.2、5)
LDK15.3
専有面積 - バルコニー面積 -
その他面積 - 駐車場 -
管理費 - 修繕積立金 -
現況 指定なし
仲介手数料 なし
利用制限 -
設備 -
取引態様 売主
備考 セットバック:済 約7㎡
※物件掲載内容と現況に相違がある場合は現況を優先と致します。
詳細はお気軽にお問い合わせください。
担当:須加
携帯:090-2644-9734
取り扱い会社

有限会社 一代工務店

新潟県長岡市信濃2-5-36

情報登録日 2025/11/01 次回更新予定日 2025/11/18
取引条件有効期限 2026/01/01
  • 三条市下坂井 建売住宅(未入居住宅)①
    有限会社 一代工務店
  • この物件を問い合わせる/無料
  • TEL: 0258-34-2221

この物件の地図・周辺情報・行政情報

この物件の周辺情報・行政情報を詳しく見る
【周辺情報】
物件の近くにあるコンビニや銀行・学校など、アイコン付のマップで詳しく表示できます!
【行政情報】
水道料や下水道料・ガス料金など、暮らしに関係のある情報を表示しています。

担当取扱い店舗情報

取扱い店舗画像
有限会社 一代工務店
TEL: 0258-34-2221
所在地: 新潟県長岡市信濃2-5-36
交通: 長岡駅
営業時間: 9:00~18:00/定休日:
免許番号: 新潟県知事(12)2196号 この会社の情報を詳しく見る
所属団体名: 新潟県宅地建物取引業協会 長岡支部
取引態様: 売主
ホームページ: http://www.ichidai-k.co.jp/