物件掲載企業数:301|賃貸物件:3,189件|売買物件:3,240件|今週の登録物件:302
閲覧中のブラウザ(インターネットエクスプローラー)は非推奨ブラウザです。
物件が正しく表示されなかったり、正しく検索されない場合があります。最新のブラウザ(Google Chrome・Edgeなど)にてご利用お願いいたします。
  

新潟県三条市曲渕3丁目137番14 新築一戸建て 3LDK 23,900,000円の物件情報

近隣商業施設充実◆対面キッチン♪◆LDK南向き◆前面道路に消雪パイプあり!

物件名/所在地 詳細 価格
三条市曲渕3丁目 建売住宅③
新潟県三条市曲渕3丁目137番14
  • 土地面積
    :165.65㎡ /50.1坪
  • 建物面積
    :84㎡ /25.41坪
  • 間取り
    :3LDK
  • 築年月
    :2026年5月
23,900,000
  • 三条市曲渕3丁目 建売住宅③
    有限会社 一代工務店
  • この物件を問い合わせる/無料
  • TEL: 0258-34-2221

物件画像

外観 間取り
物件画像
※画像クリックで拡大表示
※画像はイメージとなり実物と異なる場合があります。
物件画像
※画像クリックで拡大表示
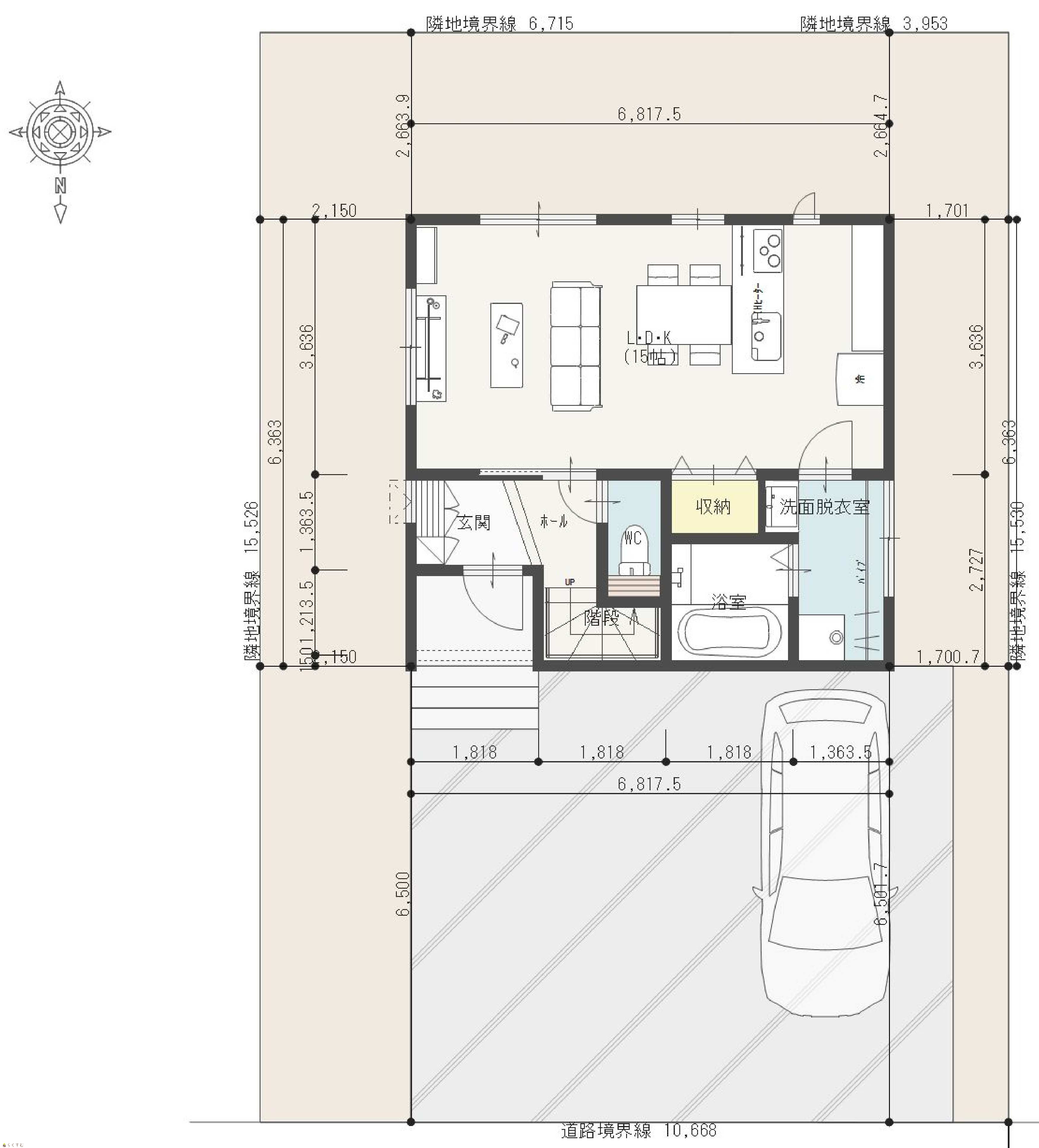
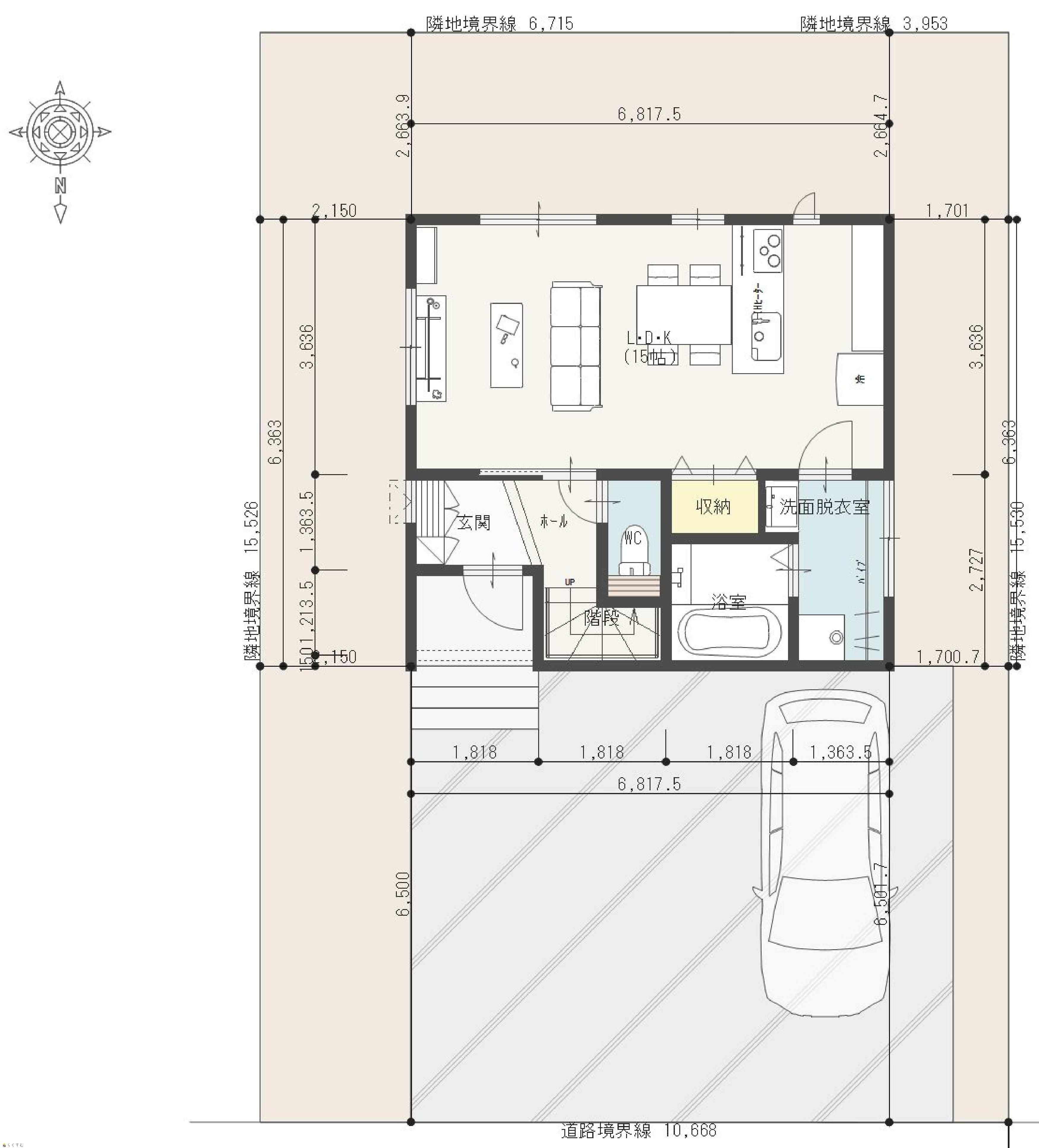
地型付間取り図
詳細画像
動画


物件概要

<令和8年5月完成予定>◆商業施設やスーパーが徒歩圏内に充実♪ ◆月岡小学校・こども園も徒歩圏内♪お子様も安心の環境です。 ◆前面道路は消雪パイプ設置!冬も安心です。 ◆LDKはソファもダイニングもゆったり置ける広さ♪南向きの窓から光が差し込む、明るい空間♪ ◆対面キッチンは、ご家族やお客様とのコミュニケーションも取りやすくなっています。 ◆洗濯機と物干し場を一緒にし、重い洗濯物を運ぶことなく干せ、家事効率UP!
物件コード 00007-200746
物件名 三条市曲渕3丁目 建売住宅③
交通 駅:信越線 三条駅から徒歩17分、バス:曲渕二丁目から徒歩5分
物件所在地 新潟県三条市曲渕3丁目137番14
物件種別 新築一戸建て
構造 木造 階建 地上2階建
建ぺい率/容積率 50%/100%
建物面積 計 84㎡ /25.41坪
土地面積 165.65㎡ /50.1坪
築年月 2026年5月完成予定
入居(引き渡し)時期 相談
用途地域 第1種低層住居専用地域 地目 宅地
都市計画 非線引き都市計画区域 学校区 月岡小学校(351m)・本成寺中学校(1,698m)
形状 - 道路 北側:市道 6.0m
私道 - その他の制限 -
  • 三条市曲渕3丁目 建売住宅③
    有限会社 一代工務店
  • この物件を問い合わせる/無料
  • TEL: 0258-34-2221

物件詳細情報

所在階/階数 - 号室 -
販売価格 23,900,000円 方位
間取り 3LDK (洋室:7.2、6.1、6.1)
LDK15
建築確認番号:NK第25長00085号
専有面積 - バルコニー面積 -
その他面積 - 駐車場 -
管理費 - 修繕積立金 -
現況 指定なし
仲介手数料 なし
利用制限 -
設備 整形地、前面道路6m以上、日当り良好、スーパー近く、BELS/省エネ基準適合認定建物、フラット35S適合、LDK15畳以上、全室フローリング、駐車場2台以上、南向き、TVインターホン、複層ガラス、ディンプルキー、システムキッチン、IHクッキングヒーター、3口コンロ、追いだき機能付き、バス1坪以上、温水洗浄便座、シャワー付き洗面台、エアコン、24時間換気システム、省エネ給湯、高気密高断熱住宅、都市ガス、上水道、浄化槽、電気、ウォークインクローゼット、全居室収納あり、シューズBOX、照明器具付き
取引態様 売主
備考 ・22条指定区域
・高さ制限:10m
・外壁後退:1.5m
・消雪パイプ管理費:20,000円/年

※物件掲載内容と現況に相違がある場合は現況を優先と致します。
詳細はお気軽にお問い合わせください。
担当:小林
携帯:090-1438-1795
取り扱い会社

有限会社 一代工務店

新潟県長岡市信濃2-5-36

情報登録日 2026/04/11 次回更新予定日 2026/05/12
取引条件有効期限 2026/06/01
  • 三条市曲渕3丁目 建売住宅③
    有限会社 一代工務店
  • この物件を問い合わせる/無料
  • TEL: 0258-34-2221

この物件の地図・周辺情報・行政情報

この物件の周辺情報・行政情報を詳しく見る
【周辺情報】
物件の近くにあるコンビニや銀行・学校など、アイコン付のマップで詳しく表示できます!
【行政情報】
水道料や下水道料・ガス料金など、暮らしに関係のある情報を表示しています。
マルイ 三条月岡店(スーパー)まで990m
三条信用金庫 月岡支店(銀行)まで760m

※カメラのアイコンがある場合は、マウスをポイントするとその施設の画像がご覧いただけます。


担当取扱い店舗情報

取扱い店舗画像
有限会社 一代工務店
TEL: 0258-34-2221
所在地: 新潟県長岡市信濃2-5-36
交通: 長岡駅
営業時間: 9:00~18:00/定休日:
免許番号: 新潟県知事(12)2196号 この会社の情報を詳しく見る
所属団体名: 新潟県宅地建物取引業協会 長岡支部
取引態様: 売主
ホームページ: http://www.ichidai-k.co.jp/