物件掲載企業数:295|賃貸物件:3,622件|売買物件:3,320件|今週の登録物件:252
閲覧中のブラウザ(インターネットエクスプローラー)は非推奨ブラウザです。
物件が正しく表示されなかったり、正しく検索されない場合があります。最新のブラウザ(Google Chrome・Edgeなど)にてご利用お願いいたします。
  

新潟県加茂市新栄町1904番5 新築一戸建て 3LDK 25,800,000円の物件情報

商業施設が近く便利♪保育園・小学校も徒歩圏内◆収納充実♪◆対面キッチン仕様

物件名/所在地 詳細 価格
加茂市新栄町 建売住宅 2号棟
新潟県加茂市新栄町1904番5
  • 土地面積
    :192.34㎡ /58.18坪
  • 建物面積
    :86.74㎡ /26.23坪
  • 間取り
    :3LDK
  • 築年月
    :2025年11月
25,800,000
  • 加茂市新栄町 建売住宅 2号棟
    有限会社 一代工務店
  • この物件を問い合わせる/無料
  • TEL: 0258-34-2221

物件画像

外観 間取り
物件画像
※画像クリックで拡大表示
※画像はイメージとなり実物と異なる場合があります。
物件画像
※画像クリックで拡大表示
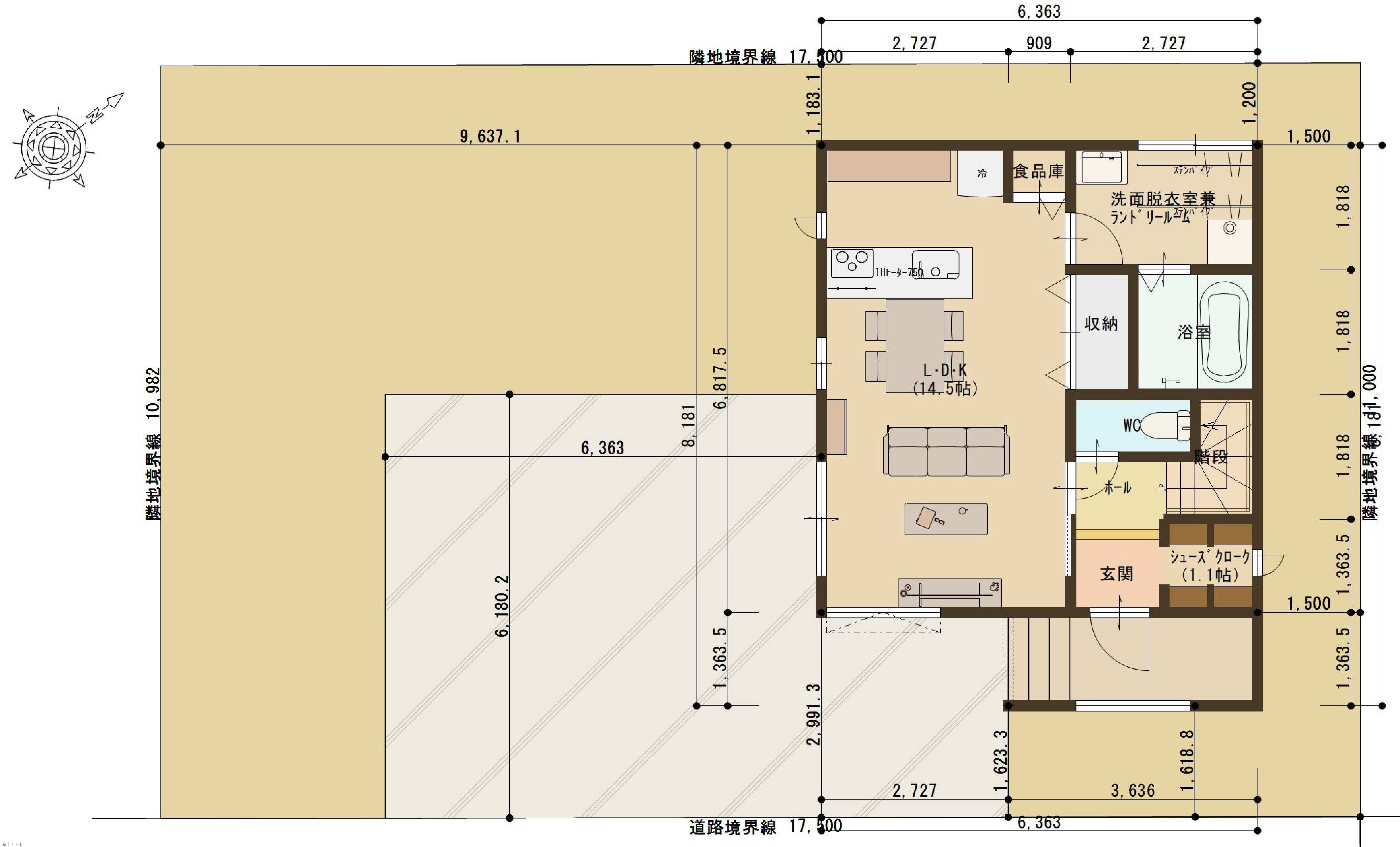
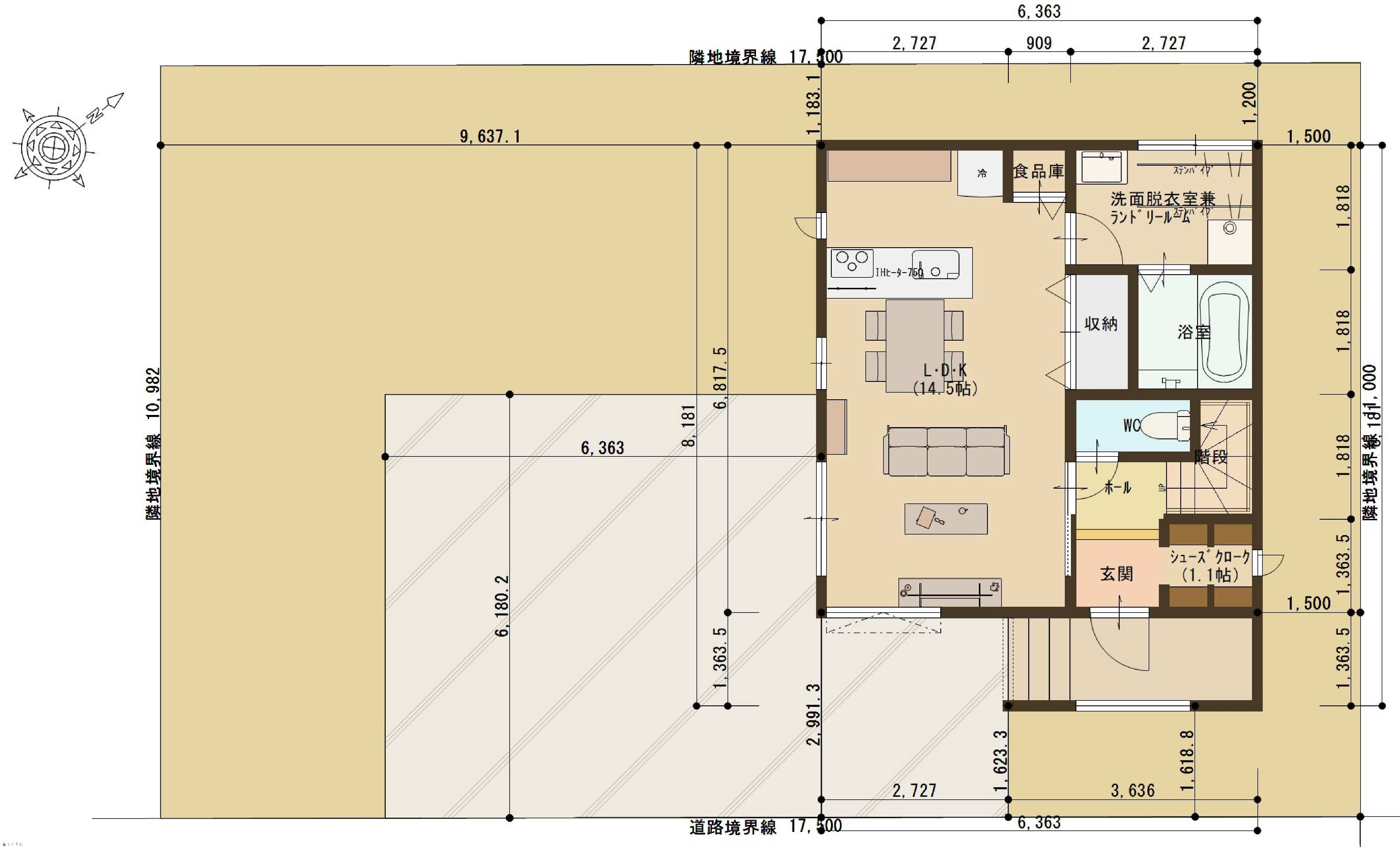
地型付間取り図
詳細画像


物件概要

<令和7年11月完成予定>◆石川小学校まで徒歩約10分♪◆スーパー・ホームセンターも近く♪ ◆シューズクローク、食品庫、ウォークインクローゼット完備で収納スペース充実。 ◆キッチン横には便利な収納スペース付き。パントリーや日用品のストック、趣味の道具収納など、自由な使い方が可能です。 ◆対面キッチンはリビングにいるご家族の様子を見ながら調理出来ますので、小さなお子様がいるご家族でも安心です。 ◆屋根付きの玄関ポーチは、雨や雪の日でも快適に出入りできます。
物件コード 00007-200743
物件名 加茂市新栄町 建売住宅 2号棟
交通 駅:信越線 加茂駅から徒歩16分、バス:市役所前から徒歩6分
物件所在地 新潟県加茂市新栄町1904番5
物件種別 新築一戸建て
構造 木造 階建 地上2階建
建ぺい率/容積率 60%/200%
建物面積 計 86.74㎡ /26.23坪
土地面積 192.34㎡ /58.18坪
築年月 2025年11月完成予定
入居(引き渡し)時期 相談
用途地域 準工業地域 地目 宅地
都市計画 非線引き都市計画区域 学校区 石川小学校(455m)・葵中学校(1,471m)
形状 - 道路 東南側:市道(位置指定道路に指定あり)6.0m
私道 - その他の制限 -
  • 加茂市新栄町 建売住宅 2号棟
    有限会社 一代工務店
  • この物件を問い合わせる/無料
  • TEL: 0258-34-2221

物件詳細情報

所在階/階数 - 号室 -
販売価格 25,800,000円 方位 南東
間取り 3LDK (洋室:7、6、6)
LDK14.5
建築確認番号:NK第24長01255号
専有面積 - バルコニー面積 -
その他面積 - 駐車場 -
管理費 - 修繕積立金 -
現況 指定なし
仲介手数料 なし
利用制限 -
設備 前面道路6m以上、日当り良好、スーパー近く、BELS/省エネ基準適合認定建物、フラット35S適合、全室フローリング、駐車場2台以上、TVインターホン、複層ガラス、ディンプルキー、システムキッチン、IHクッキングヒーター、3口コンロ、追いだき機能付き、バス1坪以上、温水洗浄便座、シャワー付き洗面台、エアコン、24時間換気システム、省エネ給湯、高気密高断熱住宅、都市ガス、上水道、下水道、電気、ウォークインクローゼット、全居室収納あり、床下収納、シューズインクローゼット、照明器具付き
取引態様 売主
備考 ※物件掲載内容と現況に相違がある場合は現況を優先と致します。
詳細はお気軽にお問い合わせください。
担当:小林
携帯:090-1438-1795
取り扱い会社

有限会社 一代工務店

新潟県長岡市信濃2-5-36

情報登録日 2025/11/02 次回更新予定日 2025/11/17
取引条件有効期限 2026/01/01
  • 加茂市新栄町 建売住宅 2号棟
    有限会社 一代工務店
  • この物件を問い合わせる/無料
  • TEL: 0258-34-2221

この物件の地図・周辺情報・行政情報

この物件の周辺情報・行政情報を詳しく見る
【周辺情報】
物件の近くにあるコンビニや銀行・学校など、アイコン付のマップで詳しく表示できます!
【行政情報】
水道料や下水道料・ガス料金など、暮らしに関係のある情報を表示しています。
にいつフードセンター 加茂店(スーパー)まで180m
第四北越銀行 加茂中央支店(銀行)まで810m
西加茂郵便局(郵便局)まで610m

※カメラのアイコンがある場合は、マウスをポイントするとその施設の画像がご覧いただけます。


担当取扱い店舗情報

取扱い店舗画像
有限会社 一代工務店
TEL: 0258-34-2221
所在地: 新潟県長岡市信濃2-5-36
交通: 長岡駅
営業時間: 9:00~18:00/定休日:
免許番号: 新潟県知事(12)2196号 この会社の情報を詳しく見る
所属団体名: 新潟県宅地建物取引業協会 長岡支部
取引態様: 売主
ホームページ: http://www.ichidai-k.co.jp/