物件掲載企業数:297|賃貸物件:2,858件|売買物件:3,259件|今週の登録物件:328
閲覧中のブラウザ(インターネットエクスプローラー)は非推奨ブラウザです。
物件が正しく表示されなかったり、正しく検索されない場合があります。最新のブラウザ(Google Chrome・Edgeなど)にてご利用お願いいたします。
  

新潟県長岡市豊2丁目1940番11 新築一戸建て 3LDK 24,800,000円の物件情報

【11/29価格改定】2560万円⇒2480万円◆川崎東小学校・東北中学校エリアの建売住宅。 原信・コメリ様の他、飲食店など至近♪ 川崎ICにも近く、アクセス性良好!

物件名/所在地 詳細 価格
長岡市豊2丁目 建売住宅 1号棟
新潟県長岡市豊2丁目1940番11
  • 土地面積
    :125.99㎡ /38.11坪
  • 建物面積
    :90.88㎡ /27.49坪
  • 間取り
    :3LDK
  • 築年月
    :2025年5月
24,800,000
  • 長岡市豊2丁目 建売住宅 1号棟
    有限会社 一代工務店
  • この物件を問い合わせる/無料
  • TEL: 0258-34-2221

物件画像

外観 間取り
物件画像
※画像クリックで拡大表示
外観
物件画像
※画像クリックで拡大表示
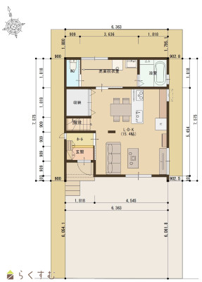
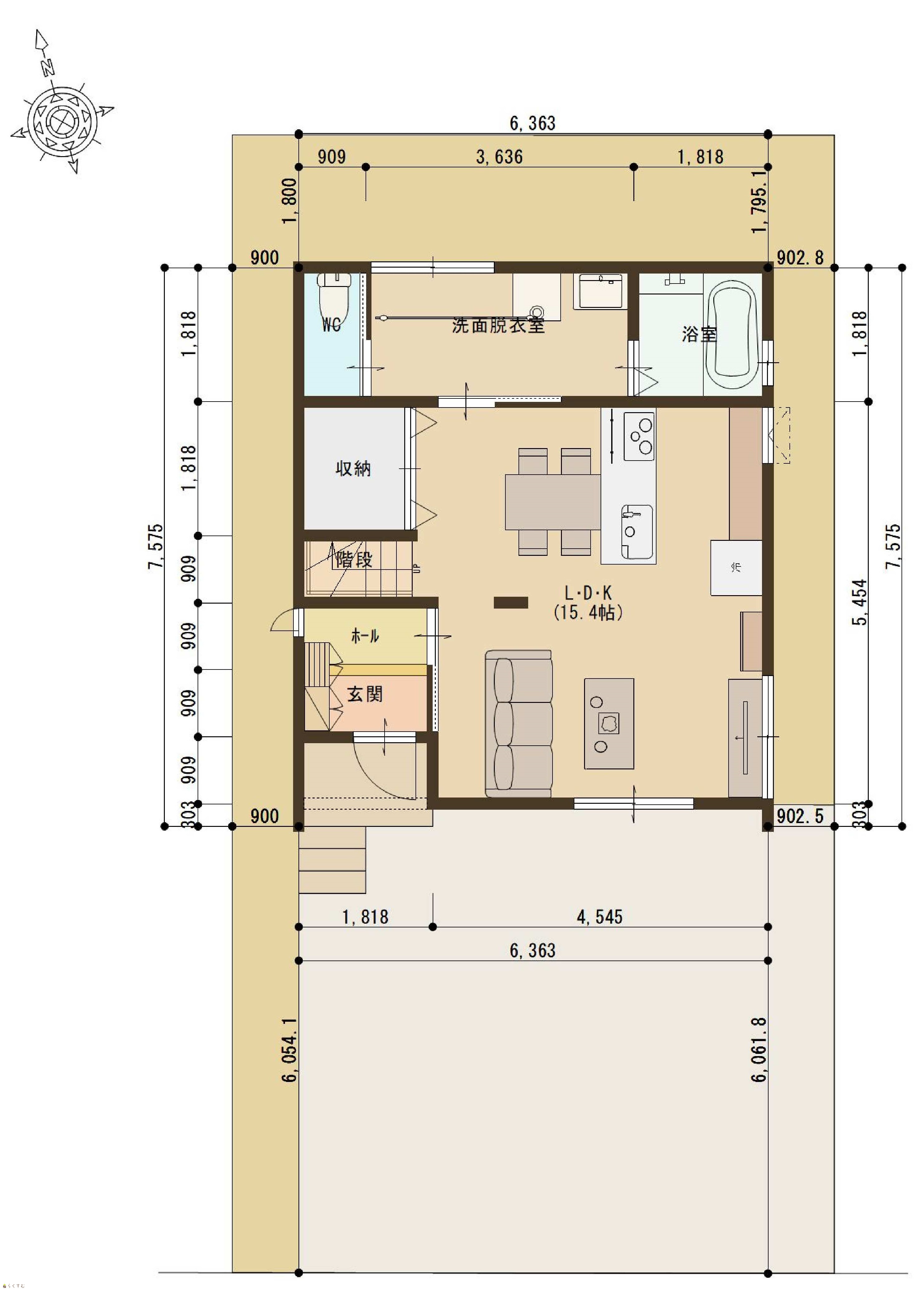
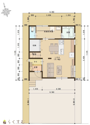
地型付間取り図
詳細画像
動画


物件概要

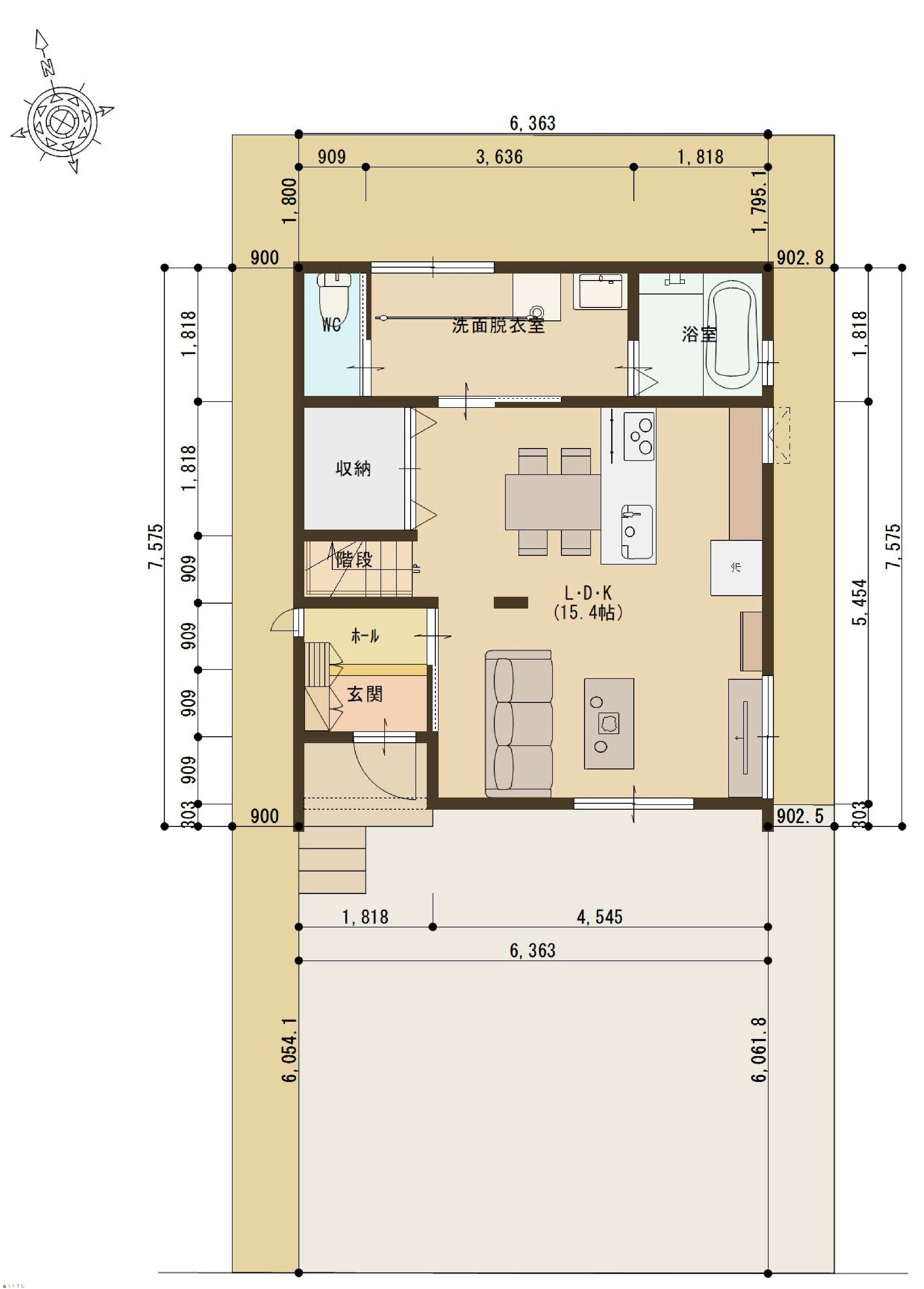
15.4帖のLDKは室内を見渡しやすい配置となっています。 室内に物干しスペースが確保されています。 2階にもトイレが設置されています。 2階寝室には3帖のウォークインクローゼットが設置されています。
物件コード 00007-200680
物件名 長岡市豊2丁目 建売住宅 1号棟
交通 駅:信越線 北長岡駅から徒歩21分、バス:豊町から徒歩3分
物件所在地 新潟県長岡市豊2丁目1940番11
物件種別 新築一戸建て
構造 木造 階建 地上2階建
建ぺい率/容積率 60%/200%
建物面積 計 90.88㎡ /27.49坪
土地面積 125.99㎡ /38.11坪
築年月 2025年5月(築10ヶ月)
入居(引き渡し)時期 随時入居(引き渡し)可
用途地域 第1種中高層住居専用地域 地目 宅地
都市計画 市街化区域 学校区 川崎東小学校(464m)・東北中学校(550m)
形状 - 道路 南側:市道6.0m
私道 - その他の制限 -
  • 長岡市豊2丁目 建売住宅 1号棟
    有限会社 一代工務店
  • この物件を問い合わせる/無料
  • TEL: 0258-34-2221

物件詳細情報

所在階/階数 - 号室 -
販売価格 24,800,000円 方位
間取り 3LDK (洋室:8、6、6)
LDK15.4
専有面積 - バルコニー面積 -
その他面積 - 駐車場 -
管理費 - 修繕積立金 -
現況 指定なし
仲介手数料 なし
利用制限 -
設備 整形地、前面道路6m以上、日当り良好、スーパー近く、BELS/省エネ基準適合認定建物、フラット35S適合、LDK15畳以上、全室フローリング、駐車場2台以上、南向き、TVインターホン、複層ガラス、ディンプルキー、システムキッチン、IHクッキングヒーター、3口コンロ、追いだき機能付き、バス1坪以上、温水洗浄便座、シャワー付き洗面台、エアコン、24時間換気システム、省エネ給湯、高気密高断熱住宅、都市ガス、上水道、下水道、電気、ウォークインクローゼット、全居室収納あり、床下収納、シューズBOX、照明器具付き、即引き渡し可能、バリアフリー
取引態様 売主
備考 【R7年11月29日価格改定しました】2560万円⇒2480万円
※旧価格公開日 R6年8月16日
 新価格公開日 R7年11月29日

※物件掲載内容と現況に相違がある場合は現況を優先と致します。
詳細はお気軽にお問い合わせください。
担当:藤崎
携帯:090-2763-5443
取り扱い会社

有限会社 一代工務店

新潟県長岡市信濃2-5-36

情報登録日 2026/03/08 次回更新予定日 2026/03/27
取引条件有効期限 2026/05/01
  • 長岡市豊2丁目 建売住宅 1号棟
    有限会社 一代工務店
  • この物件を問い合わせる/無料
  • TEL: 0258-34-2221

この物件の地図・周辺情報・行政情報

この物件の周辺情報・行政情報を詳しく見る
【周辺情報】
物件の近くにあるコンビニや銀行・学校など、アイコン付のマップで詳しく表示できます!
【行政情報】
水道料や下水道料・ガス料金など、暮らしに関係のある情報を表示しています。

担当取扱い店舗情報

取扱い店舗画像
有限会社 一代工務店
TEL: 0258-34-2221
所在地: 新潟県長岡市信濃2-5-36
交通: 長岡駅
営業時間: 9:00~18:00/定休日:
免許番号: 新潟県知事(12)2196号 この会社の情報を詳しく見る
所属団体名: 新潟県宅地建物取引業協会 長岡支部
取引態様: 売主
ホームページ: http://www.ichidai-k.co.jp/