1
物件掲載企業数:
300
社
|賃貸物件:
3,191
件|売買物件:
3,232
件|今週の登録物件:
379
件
閲覧中のブラウザ(インターネットエクスプローラー)は非推奨ブラウザです。
物件が正しく表示されなかったり、正しく検索されない場合があります。最新のブラウザ(Google Chrome・Edgeなど)にてご利用お願いいたします。
Google Chrome
Microsoft Edge
アパート・マンション・一戸建て
駐車場
貸土地
店舗
事務所
倉庫・工場
新築分譲マンション
中古マンション
新築一戸建て
中古一戸建て
売土地・分譲地
その他(投資物件など)
マンション
一戸建て
土地
ホーム
>
検索方法選択
>
エリア選択
> 物件一覧
全エリア
の
中古一戸建て
一覧
688件
該当しました。
<前のページ
29
30
31
32
33
34
35
次のページ>
表示切替:
一覧表示
/
地図表示
並び替え:
指定なし
新着順
価格が安い順
価格が高い順
画像
物件名/所在地/取扱店
詳細
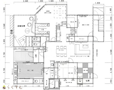
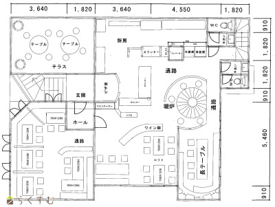
南向きの日当たり良好。小学校・中学校・バス停徒歩5分圏内の立地も魅力です。
【中古住宅】新潟市北区松浜3丁目 カーポート付戸建
新潟県新潟市北区松浜3丁目
株式会社フォレス・タカダ
価格
:
32,000,000
円
土地面積
:286.4㎡ /86.63坪
建物面積
:124.2㎡ /37.57坪
間取り
:4LDK
築年月
:2018年4月
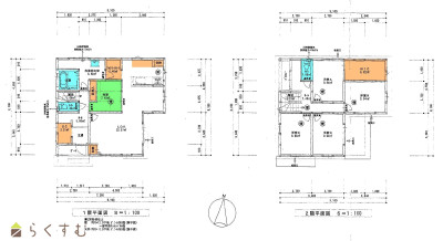
アクロスプラザ長岡・バイパス近く!5LDK+フリースペース、収納たっぷり!カーポート2台+敷地内に1~2台駐車可能、花壇あり
沖田3丁目 中古戸建物件
新潟県長岡市沖田3丁目41番地
株式会社 空間クリエイティブ
価格
:
32,600,000
円
土地面積
:378.45㎡ /114.48坪
建物面積
:171.3㎡ /51.81坪
間取り
:5LDK
築年月
:2012年12月
【2023年築・ヴィンテージモダンで家族にちょうどいい4LDKS】 ■前面道路に消雪パイプ完備 ■駐車3台可能、2台分のカーポート付き ■フリースペース付き ■左岸バイパスまで車3分
長岡市下山 戸建
新潟県長岡市下山4丁目68-2
新潟土地建物販売センター 株式会社
価格
:
32,800,000
円
土地面積
:146.92㎡ /44.44坪
建物面積
:99.36㎡ /30.05坪
間取り
:4LDK
築年月
:2023年1月
2台分のカーポート付き♪LDKは床暖房付き♪
長岡市旭岡2丁目 戸建て
新潟県長岡市旭岡2丁目
アパマンショップ長岡東店 有限会社信濃不動産
価格
:
32,800,000
円
土地面積
:230.35㎡ /69.68坪
建物面積
:123.38㎡ /37.32坪
間取り
:3LDK
築年月
:2016年6月
イシカワ様施工、5SLDK住宅です♩ 部屋数が多いのでお子様も自室が持てますよ(^^♪ ビルトインガレージ、宅内融雪設備完備♪ ガレージ内含め3台程度駐車可能♫
琴平2売住宅
新潟県長岡市琴平2丁目
髙頭不動産 株式会社
価格
:
35,200,000
円
土地面積
:210.05㎡ /63.54坪
建物面積
:168.99㎡ /51.11坪
間取り
:5LDK
築年月
:2016年9月
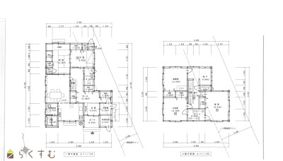
直江津バイパス沿いの好立地!開放感のある広々とした敷地341.69坪!
上越市安江 中古戸建て
新潟県上越市安江65-1
田中不動産株式会社
価格
:
35,800,000
円
土地面積
:1,129.57㎡ /341.69坪
建物面積
:309.23㎡ /93.54坪
間取り
:9K
築年月
:1988年8月
【現在リノベーション中】全居室6帖以上の広々とした3LDK。車も3台駐車可能な敷地!
中央区沼垂リノベーション住宅
新潟県新潟市中央区沼垂東6
戸建エース / (株)アップデート不動産
価格
:
35,800,000
円
土地面積
:224.2㎡ /67.82坪
建物面積
:118.8㎡ /35.93坪
間取り
:3LDK
築年月
:1981年6月
3LDK 閑静な住宅街にあるセキスイハイムによる施工・リノベーション住宅 前面道路融雪設備付☆ 国道17号線へのアクセスも良好で見附方面、小千谷方面へお勤めの方にもおすすめ☆
川崎町 セキスイハイムリノベーション住宅
新潟県長岡市川崎町2303-33
有限会社 地建事務所
価格
:
35,900,000
円
土地面積
:201.16㎡ /60.85坪
建物面積
:118.01㎡ /35.69坪
間取り
:3LDK
築年月
:1995年4月
≪セキスイハイム&リノベーション≫安心の鉄骨の耐震構造の住まい
Beハイム長岡市川崎町
新潟県長岡市川崎町2303―33
セキスイファミエス信越株式会社
価格
:
35,900,000
円
土地面積
:201.16㎡ /60.85坪
建物面積
:118.01㎡ /35.69坪
間取り
:3LDK
築年月
:1995年4月
【一条工務店施工】令和2年築の高性能住宅 全室床暖房×オール電化の快適な暮らし
堺町 売住宅
新潟県長岡市堺町1038-5
髙頭不動産 株式会社
価格
:
36,000,000
円
土地面積
:208.16㎡ /62.96坪
建物面積
:100.81㎡ /30.49坪
間取り
:4LDK
築年月
:2020年11月
【ハーバーエステートから購入頂いた方限定! ハーバーハウスの保証とアフターサービスが引継ぎできるので、購入後も安心です】 ■築8年のハーバーハウス施工!車2台分のインナーガレージ付き4LDK住宅! ■LDKやセカンドリビングなどに床暖房を完備!冬でも快適♪ ■外壁は「汚れにくい」「痛みにくい」光セラを使用!
長岡市希望が丘3丁目
新潟県長岡市希望が丘3丁目1191番地49
ハーバーエステート株式会社
価格
:
37,000,000
円
土地面積
:200.06㎡ /60.51坪
建物面積
:155.3㎡ /46.97坪
間取り
:4LDK
築年月
:2018年6月
■21帖LDK+小上がりのインナーガレージ邸宅、ハーバーハウスの保証引継ぎ可能です。 ■電動シャッター、1階全室床暖房完備、造作洗面、防犯カメラ、エアコン2台付き ■構造計算実施、耐震等級2、耐雪2m設計、第一種換気、樹脂サッシ ■スーパーマルイ見附店まで徒歩約4分(300m)
見附市学校町1丁目
新潟県見附市学校町1丁目14番39-8
ハーバーエステート株式会社
価格
:
38,200,000
円
土地面積
:174.83㎡ /52.88坪
建物面積
:161.34㎡ /48.8坪
間取り
:3LDK
築年月
:2023年2月
平屋生活 見附市上新田町モデルハウス|「中庭」のある生活~コートハウス~
平屋生活 見附市上新田町モデルハウス
新潟県見附市上新田町356-16
ディテールホーム/坂井建設株式会社
価格
:
38,590,000
円
土地面積
:218.82㎡ /66.19坪
建物面積
:100.61㎡ /30.43坪
間取り
:3LDK
築年月
:2020年10月
原信花園店まで徒歩5分!豊田小学校まで徒歩10分!駐車スペース4台分。2台分のカーポート、外部収納あります!前面道路は7m道路で消雪パイプ有!高田建築設計事務所設計のデザイン住宅!
長岡市花園南二丁目 中古住宅
新潟県長岡市花園南2丁目27番、28番、29番、30番1
ダイエープロビス株式会社
価格
:
39,000,000
円
土地面積
:229.25㎡ /69.34坪
建物面積
:98.8㎡ /29.88坪
間取り
:3LDK
築年月
:2020年4月
バリアフリーを施したゆとりある生活を過ごせる、ゆとりの和風平屋住宅です。
石内1丁目 平屋住宅
新潟県長岡市石内1丁目2番12号
株式会社 高野不動産販売
価格
:
39,800,000
円
土地面積
:472.53㎡ /142.94坪
建物面積
:133.23㎡ /40.3坪
間取り
:2LDK
築年月
:2003年12月
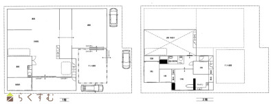
住宅+レストラン 【価格改定しました】
小千谷市 1F住宅+2Fレストラン
新潟県小千谷市東栄1丁目1098番2
ふどうさんの相談所 (ライフデザイン合同会社 イオン長岡店)
価格
:
39,800,000
円
土地面積
:481.99㎡ /145.8坪
建物面積
:137.33㎡ /41.54坪
間取り
:5LDK
築年月
:1986年7月
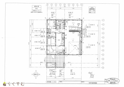
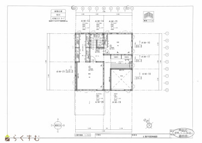
高気密・高断熱住宅、耐水害住宅仕様で快適・安心の生活♪
パークタウン曲渕分譲住宅
新潟県三条市曲渕3丁目945番11
株式会社一条工務店 新潟営業所
価格
:
39,833,681
円
土地面積
:158.22㎡ /47.86坪
建物面積
:103.39㎡ /31.27坪
間取り
:3LDK
築年月
:2025年3月
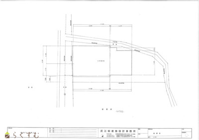
草生津3丁目 『倉庫・事務所』
長岡市草生津3丁目4-13
㈱スタッフサイトウ不動産部
価格
:
42,000,000
円
土地面積
:615.16㎡ /186.08坪
建物面積
:615.16㎡ /186.08坪
間取り
:2LDK
築年月
:1969年7月
【価格改定】テクノストラクチャー耐震工法採用の耐震等級3で安心の長期優良住宅
三和コンセプトハウス
新潟県長岡市三和3丁目4-20
株式会社 アークエイト
価格
:
43,000,000
円
土地面積
:239.88㎡ /72.56坪
建物面積
:118.69㎡ /35.9坪
間取り
:4LDK
築年月
:2023年9月
価格改定しました! 3LDK☆ 床暖房・インナーガレージ付☆ 防音室☆ 日当たり良好☆
大豆1丁目の築浅中古住宅
新潟県上越市大豆1丁目11-52
株式会社 すむとこ
価格
:
43,500,000
円
土地面積
:282.84㎡ /85.55坪
建物面積
:175.33㎡ /53.03坪
間取り
:5LDK
築年月
:2020年3月
表示切替:
一覧表示
/
地図表示
並び替え:
指定なし
新着順
価格が安い順
価格が高い順
価格は物件の代金総額を表示しており、消費税が課税される場合は税込み価格です。
建築条件付き土地価格には、建物価格は含まれません。
物件情報の詳細については取り扱い店までお問い合わせください。
完成予想図はいずれも外構・植栽・外観等実際のものと異なることが多少あります。
CG合成の画像の場合実際と異なることが多少あります。
完成後1年以上経過したものが未入居として記載される場合があります。ご了承ください。
販売予定物件は販売開始するまで契約または予約の申し込みはできません。
ご購入の場合物件詳細や契約内容についてご自身で十分ご確認いただきますようよろしく御願いします。
建築条件付きとは…その土地に建築する建物の建築請負契約が、一定期間内に成立することを条件として売買される土地のことをいいます。請負契約成立に向けて設計プランを協議するため、土地購入者が希望する建物にするために一定の期間(概ね3ヶ月)交渉期間としその期間内に希望するプランが実現できたかどうかによって土地の購入の判断をします。納得のいくプランができず請負契約が未成立になった場合、土地契約にかかった代金(手付金など)は、すべて返却されます。
688件
該当しました。
<前のページ
29
30
31
32
33
34
35
次のページ>
0件
がマッチ
基本条件
物件種別
中古一戸建て
価格
下限なし
100万円
250万円
500万円
1000万円
1500万円
2000万円
2500万円
3000万円
3500万円
4000万円
4500万円
5000万円
5500万円
6000万円
6500万円
7000万円
7500万円
8000万円
8500万円
9000万円
9500万円
1億円
~
上限なし
100万円
250万円
500万円
1000万円
1500万円
2000万円
2500万円
3000万円
3500万円
4000万円
4500万円
5000万円
5500万円
6000万円
6500万円
7000万円
7500万円
8000万円
8500万円
9000万円
9500万円
1億円
間取り
ワンルーム
1K
1DK
1LDK
2K
2DK
2LDK
3K
3DK
3LDK
4K
4DK
4LDK以上
専有面積
下限なし
20㎡
30㎡
40㎡
50㎡
60㎡
70㎡
80㎡
90㎡
100㎡
~
上限なし
20㎡
30㎡
40㎡
50㎡
60㎡
70㎡
80㎡
90㎡
100㎡
土地面積
下限なし
60㎡ (約18坪)
70㎡ (約21坪)
80㎡ (約24坪)
90㎡ (約27坪)
100㎡ (約30坪)
110㎡ (約33坪)
120㎡ (約36坪)
130㎡ (約39坪)
140㎡ (約42坪)
150㎡ (約45坪)
160㎡ (約48坪)
170㎡ (約51坪)
180㎡ (約54坪)
190㎡ (約57坪)
200㎡ (約60坪)
250㎡ (約75坪)
300㎡ (約90坪)
~
上限なし
60㎡ (約18坪)
70㎡ (約21坪)
80㎡ (約24坪)
90㎡ (約27坪)
100㎡ (約30坪)
110㎡ (約33坪)
120㎡ (約36坪)
130㎡ (約39坪)
140㎡ (約42坪)
150㎡ (約45坪)
160㎡ (約48坪)
170㎡ (約51坪)
180㎡ (約54坪)
190㎡ (約57坪)
200㎡ (約60坪)
250㎡ (約75坪)
300㎡ (約90坪)
建物面積
下限なし
60㎡ (約18坪)
70㎡ (約21坪)
80㎡ (約24坪)
90㎡ (約27坪)
100㎡ (約30坪)
110㎡ (約33坪)
120㎡ (約36坪)
130㎡ (約39坪)
140㎡ (約42坪)
150㎡ (約45坪)
160㎡ (約48坪)
170㎡ (約51坪)
180㎡ (約54坪)
190㎡ (約57坪)
200㎡ (約60坪)
250㎡ (約75坪)
300㎡ (約90坪)
~
上限なし
60㎡ (約18坪)
70㎡ (約21坪)
80㎡ (約24坪)
90㎡ (約27坪)
100㎡ (約30坪)
110㎡ (約33坪)
120㎡ (約36坪)
130㎡ (約39坪)
140㎡ (約42坪)
150㎡ (約45坪)
160㎡ (約48坪)
170㎡ (約51坪)
180㎡ (約54坪)
190㎡ (約57坪)
200㎡ (約60坪)
250㎡ (約75坪)
300㎡ (約90坪)
坪単価
下限なし
5万円
10万円
15万円
20万円
25万円
30万円
35万円
40万円
45万円
50万円
~
上限なし
5万円
10万円
15万円
20万円
25万円
30万円
35万円
40万円
45万円
50万円
築年数
指定なし
新築
3年以内
5年以内
10年以内
15年以内
20年以内
方位
北
北東
東
南東
南
南西
西
北西
おすすめ条件
ペット可・相談
楽器可・相談
情報公開日
指定なし
本日
3日以内
1週間以内
1ヶ月以内
0件
がマッチ
人気のあるこだわり条件
角地(126)
高台に立地(35)
日当り良好(338)
閑静な住宅街(359)
スーパー近く(139)
長期優良住宅(3)
設計住宅性能評価付(2)
耐震構造(9)
フラット35S適合(1)
瑕疵担保保険対象(8)
耐震基準適合証明書あり(3)
新築時図面あり(52)
修繕記録あり(8)
BELS/省エネ基準適合認定建物(2)
インスペクション報告書あり(6)
建物確認・完了検査済証あり(25)
適合状況調査報告書あり(1)
瑕疵担保保険付き(14)
LDK15帖以上(143)
全室フローリング(59)
築10年以内(40)
築15年以内(27)
駐車2台可能(230)
駐車3台以上可能(264)
駐車場融雪設備あり(31)
南向き(148)
TVインターホン(130)
複層ガラス(79)
デインプルキー(31)
システムキッチン(233)
カウンターキッチン(73)
IHクッキングヒーター(108)
浄水器(32)
食器洗浄乾燥機(53)
3口コンロ(151)
2口コンロ(24)
ガスコンロ設置可能(36)
ガスコンロ設置済み(41)
追いだき機能付き(282)
浴室乾燥機(54)
バス1坪以上(250)
温水洗浄便座(314)
トイレ2か所以上(234)
シャワー付き洗面台(191)
エアコンあり(239)
床暖房(15)
24時間換気システム(39)
堀ごたつ(4)
全室エアコン(9)
オール電化(51)
太陽光発電システム(5)
省エネ給湯機(48)
ウッドデッキ・テラス(18)
ルーフバルコニー(15)
都市ガス(435)
LPG(93)
上水道(574)
下水道(493)
浄化槽(67)
バリアフリー(20)
その他水道(3)
ウォークインクローゼット(84)
全居室収納あり(124)
床下収納(43)
シューズBOX(150)
シューズインクローゼット(18)
BS端子(17)
CS(5)
CATV(6)
LAN端子(3)
内装リフォーム済み(83)
外装リフォーム済み(60)
リノベーション物件(33)
2世帯向き(35)
即引き渡し可能(141)
別荘(74)
田舎暮らし(167)
事業向け(53)
条件に合った物件数は、
0 件
です。
立地・環境
角地(126)
高台に立地(35)
日当り良好(338)
閑静な住宅街(359)
スーパー近く(139)
構造・工法・仕様
長期優良住宅(3)
設計住宅性能評価付(2)
耐震構造(9)
フラット35S適合(1)
瑕疵担保保険対象(8)
耐震基準適合証明書あり(3)
新築時図面あり(52)
修繕記録あり(8)
BELS/省エネ基準適合認定建物(2)
インスペクション報告書あり(6)
建物確認・完了検査済証あり(25)
適合状況調査報告書あり(1)
瑕疵担保保険付き(14)
面積・間取り
LDK15帖以上(143)
全室フローリング(59)
築年
築10年以内(40)
築15年以内(27)
駐車・駐輪
駐車2台可能(230)
駐車3台以上可能(264)
駐車場融雪設備あり(31)
採光・向き
南向き(148)
管理・防犯
TVインターホン(130)
複層ガラス(79)
デインプルキー(31)
キッチン
システムキッチン(233)
カウンターキッチン(73)
IHクッキングヒーター(108)
浄水器(32)
食器洗浄乾燥機(53)
3口コンロ(151)
2口コンロ(24)
ガスコンロ設置可能(36)
ガスコンロ設置済み(41)
浴室
追いだき機能付き(282)
浴室乾燥機(54)
バス1坪以上(250)
トイレ
温水洗浄便座(314)
トイレ2か所以上(234)
洗面所
シャワー付き洗面台(191)
冷暖房・空調
エアコンあり(239)
床暖房(15)
24時間換気システム(39)
堀ごたつ(4)
全室エアコン(9)
光熱設備
オール電化(51)
太陽光発電システム(5)
省エネ給湯機(48)
バルコニー・テラス
ウッドデッキ・テラス(18)
ルーフバルコニー(15)
室内仕様・設備
都市ガス(435)
LPG(93)
上水道(574)
下水道(493)
浄化槽(67)
バリアフリー(20)
その他水道(3)
収納
ウォークインクローゼット(84)
全居室収納あり(124)
床下収納(43)
シューズBOX(150)
シューズインクローゼット(18)
電気設備
BS端子(17)
CS(5)
CATV(6)
LAN端子(3)
リフォーム
内装リフォーム済み(83)
外装リフォーム済み(60)
リノベーション物件(33)
費用・入居・引渡・条件
2世帯向き(35)
即引き渡し可能(141)
その他
別荘(74)
田舎暮らし(167)
事業向け(53)
条件に合った物件数は、
0 件
です。
アパート・マンション・一戸建て
/
駐車場
/
貸土地
/
店舗
/
事務所
/
倉庫・工場
新築分譲マンション
/
中古マンション
/
新築一戸建て
/
中古一戸建て
/
売土地
/
投資物件・その他
マンション
/
一戸建て
/
土地
建てる・リフォーム
物件掲載企業一覧
掲載希望の企業様へ
新潟の不動産情報サイト
サービス利用規約
運営会社
サイトマップ
プライバシーポリシー
お問い合わせ
リンク
Copyright (C)
株式会社 コモンライフ・コーポレーション
. All Rights Reserved.
新潟・長岡・柏崎の賃貸・マンション・アパート・住宅の不動産物件情報サイト
不動産検索サイト「らくすむ」及び関連サイトに記載の不動産情報は、会員規約に則り、情報提供会社様の責任のもとに発信されております。
不動産の賃借、購入に関しては賃借者、購入者ご自身が情報を確認され、会社企業様から説明を受けられたうえで判断をお願いいたします。
不動産検索サイト「らくすむ」及び関連サイトに記載の不動産情報、写真、デザイン、コンテンツなどの
無断転載・転用・複製
など禁止します。