1
物件掲載企業数:
297
社
|賃貸物件:
3,089
件|売買物件:
3,286
件|今週の登録物件:
371
件
閲覧中のブラウザ(インターネットエクスプローラー)は非推奨ブラウザです。
物件が正しく表示されなかったり、正しく検索されない場合があります。最新のブラウザ(Google Chrome・Edgeなど)にてご利用お願いいたします。
Google Chrome
Microsoft Edge
アパート・マンション・一戸建て
駐車場
貸土地
店舗
事務所
倉庫・工場
新築分譲マンション
中古マンション
新築一戸建て
中古一戸建て
売土地・分譲地
その他(投資物件など)
マンション
一戸建て
土地
ホーム
>
検索方法選択
>
エリア選択
> 物件一覧
全エリア
の
中古マンション
一覧
97件
該当しました。
<前のページ
1
2
3
4
5
次のページ>
表示切替:
一覧表示
/
地図表示
並び替え:
指定なし
新着順
価格が安い順
価格が高い順
画像
物件名/所在地/取扱店
詳細
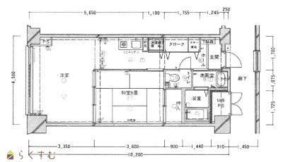
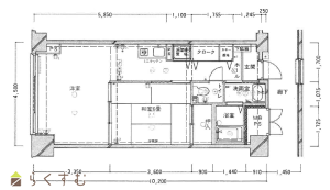
♪長岡駅中心地まで徒歩5分♪ ゆったり5LDK+S
【東坂之上】 中古マンション CASA東坂之上 101号
101号室
新潟県長岡市東坂之上町3丁目2-1
株式会社ミライ’s R Estate
価格
:
5,500,000
円
専有面積
:103.02㎡ /31.16坪
間取り
:5LDK
築年月
:1988年8月
オール電化3LDKマンション♪
セシーズ
108号室
新潟県長岡市中沢2丁目1132-2
アパマンショップ長岡東店 有限会社信濃不動産
価格
:
5,500,000
円
専有面積
:55.68㎡ /16.84坪
間取り
:3LDK
築年月
:1991年5月
長岡駅まで徒歩約4分、電車やバス移動に便利な立地です!
カーサ東坂之上
501号室
新潟県長岡市東坂之上町3丁目2-1
髙頭不動産 株式会社
価格
:
5,800,000
円
専有面積
:69.52㎡ /21.02坪
間取り
:3DK
築年月
:1988年7月
■長岡市中心部。利便と安心を手にする、暮らしの“拠点”へ! ■洋室と和室各1部屋ずつの2LDK♪ ■生活しやすい環境!スーパーまで徒歩約2分! ■利便性も良好!バス停まで徒歩約2分!長岡駅まで徒歩約11分!
長岡市今朝白3丁目【マンションパールシティ】
103号室
新潟県長岡市今朝白3丁目11番27
ハーバーエステート株式会社
価格
:
6,000,000
円
専有面積
:59.5㎡ /17.99坪
間取り
:2LDK
築年月
:1987年8月
夏は避暑地・冬はスキー場へ!温泉があるリゾートマンション♪新赤倉スキー場まで徒歩15分・車で3分
new【商談中】妙高高原セレージュ新赤倉
0号室
新潟県妙高市大字田切204番地1
株式会社 お不動さん
価格
:
6,200,000
円
専有面積
:28.6㎡ /8.65坪
間取り
:1LDK
築年月
:1992年12月
長岡駅近くの利便性の良い立地!3LDK+Sマンション
ユートピアレジデンス長町 4階 403号室
新潟県長岡市長町1丁目1664-1
リンクス.プランニング合同会社
価格
:
6,300,000
円
専有面積
:67.25㎡ /20.34坪
間取り
:3LDK
築年月
:1991年9月
長岡駅約1.7km、ドラッグストア至近。屋上特設会場から長岡花火も楽しめます。
【中古マンション】アーク長岡Ⅰ番館
301号室
新潟県長岡市西千手1丁目5番18号アーク長岡Ⅰ番館301号室
株式会社 長岡土地
価格
:
6,500,000
円
専有面積
:59.4㎡ /17.96坪
間取り
:2LDK
築年月
:1990年3月
静かで利便性の高いアーバンライフに適した中古マンションのオーナーチェンジ物件
【蔵王】売マンション1DK(ダイアパレス長岡蔵王)
808号室
新潟県長岡市蔵王1丁目1-31ダイアパレス長岡蔵王808
株式会社ミライ’s R Estate
価格
:
6,800,000
円
専有面積
:39.45㎡ /11.93坪
間取り
:1DK
築年月
:1993年1月
上越市高田地区の中心部にあり交通、買い物など便利です。
中古マンション ダイアパレス高田本町406号室
406号室
新潟県上越市本町5丁目1-1ダイアパレス高田本町406号室
信濃土地株式会社 上越支店
価格
:
7,000,000
円
専有面積
:70.45㎡ /21.31坪
間取り
:3DK
築年月
:1991年2月
■日本海を一望できるプール付マンション。角部屋、駐車場無料、ペット飼育可 ■配管まで含めたフルリノベーション済 ■追い炊き機能付きユニットバス、造作洗面 ■イケアのキッチンを採用
長岡市寺泊大和田【マリンリゾートマンションA-1】
207号室
新潟県長岡市寺泊大和田1205-1
ハーバーエステート株式会社
価格
:
7,300,000
円
専有面積
:42.92㎡ /12.98坪
間取り
:1LDK
築年月
:1991年4月
2022年に大幅リフォーム済みです。コンパクトかつ過ごしやすい生活動線になっています。
メゾン長町
104号室
新潟県長岡市長町2丁目甲1639番地1
株式会社 悠久不動産
価格
:
7,800,000
円
専有面積
:64.75㎡ /19.58坪
間取り
:3LDK
築年月
:1980年6月
キッチン・トイレは2024年に新品入替しました!
アーク長岡Ⅰ番館
406号室
新潟県長岡市西千手1-5-18
髙頭不動産 株式会社
価格
:
7,800,000
円
専有面積
:59.4㎡ /17.96坪
間取り
:2LDK
築年月
:1990年3月
投資用物件です。今は住まなくても、賃料収入を得たいお客様には、適していますよ。
ダイアパレス高田弐番館
702号室
新潟県上越市本町3丁目3-3
有限会社 春日土地建物
価格
:
8,000,000
円
専有面積
:65.8㎡ /19.9坪
間取り
:2LDK
築年月
:1992年10月
落ち着いた住宅街に位置する専用庭付き3LDK中古マンション。開放感と利便性を兼ね備え、心地よい暮らしを叶える住まいです。
日東サンシャイン青山A棟 Brightマンション
※号室
新潟県新潟市西区浦山2丁目1041番地1日東サンシャイン青山B棟
有限会社 ブライトサクセス
価格
:
8,000,000
円
専有面積
:69.57㎡ /21.04坪
間取り
:3LDK
築年月
:1980年4月
■南面バルコニーの日当たり良好な3LDKマンション! ■長岡駅まで徒歩10分! ■浴室暖房乾燥機付きの浴室!
長岡市南町1丁目【ライオンズマンション長岡】
202号室
新潟県長岡市南町1丁目5番地17
ハーバーエステート株式会社
価格
:
8,000,000
円
専有面積
:64.26㎡ /19.43坪
間取り
:3LDK
築年月
:1991年8月
アパリゾート上越妙高/ロジュマン1号館1LDK/9階902号室/スキー/ゴルフ/天然温泉
妙高市中古分譲マンション
902号室
新潟県妙高市桶海1017-2
株式会社 ホーメックス
価格
:
8,900,000
円
専有面積
:58.33㎡ /17.64坪
間取り
:1LDK
築年月
:1991年6月
10階建ての8階部分の高層階のお部屋です!
ピアハイム高田
新潟県上越市大町2丁目2番30
株式会社カンエー・ハウジング
価格
:
9,200,000
円
専有面積
:54.2㎡ /16.39坪
間取り
:3DK
築年月
:1992年5月
棟内エステ店あり!新潟駅徒歩7分、通勤・通学やお出かけにも便利な万代エリア
万代ファーストハイツBrightマンション
※号室
新潟県新潟市中央区万代1丁目1-4
有限会社 ブライトサクセス
価格
:
9,990,000
円
専有面積
:78.34㎡ /23.69坪
間取り
:3LDK
築年月
:1979年5月
亀田駅まで直線、徒歩10分圏内。飲食店・スーパーが集まるエリア
新潟南マンションBrightマンション
※号室
新潟県新潟市江南区西町3丁目3-51
有限会社 ブライトサクセス
価格
:
9,990,000
円
専有面積
:57.35㎡ /17.34坪
間取り
:2LDK
築年月
:1979年5月
JR長岡駅徒歩圏のマンション 、近隣に教育・医療・商業施設が充実している物件
イースタンシャトー
711号室
新潟県長岡市学校町3丁目11番12号711号室 7階
株式会社アールス
価格
:
10,760,000
円
専有面積
:71.29㎡ /21.56坪
間取り
:2LDK
築年月
:1995年9月
表示切替:
一覧表示
/
地図表示
並び替え:
指定なし
新着順
価格が安い順
価格が高い順
価格は物件の代金総額を表示しており、消費税が課税される場合は税込み価格です。
建築条件付き土地価格には、建物価格は含まれません。
物件情報の詳細については取り扱い店までお問い合わせください。
完成予想図はいずれも外構・植栽・外観等実際のものと異なることが多少あります。
CG合成の画像の場合実際と異なることが多少あります。
完成後1年以上経過したものが未入居として記載される場合があります。ご了承ください。
販売予定物件は販売開始するまで契約または予約の申し込みはできません。
ご購入の場合物件詳細や契約内容についてご自身で十分ご確認いただきますようよろしく御願いします。
建築条件付きとは…その土地に建築する建物の建築請負契約が、一定期間内に成立することを条件として売買される土地のことをいいます。請負契約成立に向けて設計プランを協議するため、土地購入者が希望する建物にするために一定の期間(概ね3ヶ月)交渉期間としその期間内に希望するプランが実現できたかどうかによって土地の購入の判断をします。納得のいくプランができず請負契約が未成立になった場合、土地契約にかかった代金(手付金など)は、すべて返却されます。
97件
該当しました。
<前のページ
1
2
3
4
5
次のページ>
0件
がマッチ
基本条件
物件種別
中古マンション
価格
下限なし
100万円
250万円
500万円
1000万円
1500万円
2000万円
2500万円
3000万円
3500万円
4000万円
4500万円
5000万円
5500万円
6000万円
6500万円
7000万円
7500万円
8000万円
8500万円
9000万円
9500万円
1億円
~
上限なし
100万円
250万円
500万円
1000万円
1500万円
2000万円
2500万円
3000万円
3500万円
4000万円
4500万円
5000万円
5500万円
6000万円
6500万円
7000万円
7500万円
8000万円
8500万円
9000万円
9500万円
1億円
間取り
ワンルーム
1K
1DK
1LDK
2K
2DK
2LDK
3K
3DK
3LDK
4K
4DK
4LDK以上
専有面積
下限なし
20㎡
30㎡
40㎡
50㎡
60㎡
70㎡
80㎡
90㎡
100㎡
~
上限なし
20㎡
30㎡
40㎡
50㎡
60㎡
70㎡
80㎡
90㎡
100㎡
土地面積
下限なし
60㎡ (約18坪)
70㎡ (約21坪)
80㎡ (約24坪)
90㎡ (約27坪)
100㎡ (約30坪)
110㎡ (約33坪)
120㎡ (約36坪)
130㎡ (約39坪)
140㎡ (約42坪)
150㎡ (約45坪)
160㎡ (約48坪)
170㎡ (約51坪)
180㎡ (約54坪)
190㎡ (約57坪)
200㎡ (約60坪)
250㎡ (約75坪)
300㎡ (約90坪)
~
上限なし
60㎡ (約18坪)
70㎡ (約21坪)
80㎡ (約24坪)
90㎡ (約27坪)
100㎡ (約30坪)
110㎡ (約33坪)
120㎡ (約36坪)
130㎡ (約39坪)
140㎡ (約42坪)
150㎡ (約45坪)
160㎡ (約48坪)
170㎡ (約51坪)
180㎡ (約54坪)
190㎡ (約57坪)
200㎡ (約60坪)
250㎡ (約75坪)
300㎡ (約90坪)
建物面積
下限なし
60㎡ (約18坪)
70㎡ (約21坪)
80㎡ (約24坪)
90㎡ (約27坪)
100㎡ (約30坪)
110㎡ (約33坪)
120㎡ (約36坪)
130㎡ (約39坪)
140㎡ (約42坪)
150㎡ (約45坪)
160㎡ (約48坪)
170㎡ (約51坪)
180㎡ (約54坪)
190㎡ (約57坪)
200㎡ (約60坪)
250㎡ (約75坪)
300㎡ (約90坪)
~
上限なし
60㎡ (約18坪)
70㎡ (約21坪)
80㎡ (約24坪)
90㎡ (約27坪)
100㎡ (約30坪)
110㎡ (約33坪)
120㎡ (約36坪)
130㎡ (約39坪)
140㎡ (約42坪)
150㎡ (約45坪)
160㎡ (約48坪)
170㎡ (約51坪)
180㎡ (約54坪)
190㎡ (約57坪)
200㎡ (約60坪)
250㎡ (約75坪)
300㎡ (約90坪)
坪単価
下限なし
5万円
10万円
15万円
20万円
25万円
30万円
35万円
40万円
45万円
50万円
~
上限なし
5万円
10万円
15万円
20万円
25万円
30万円
35万円
40万円
45万円
50万円
築年数
指定なし
新築
3年以内
5年以内
10年以内
15年以内
20年以内
方位
北
北東
東
南東
南
南西
西
北西
おすすめ条件
ペット可・相談
楽器可・相談
情報公開日
指定なし
本日
3日以内
1週間以内
1ヶ月以内
0件
がマッチ
人気のあるこだわり条件
最上階(9)
10階建て以上(37)
角部屋(27)
2階以上(73)
日当り良好(54)
閑静な住宅街(15)
スーパー近く(28)
最寄駅近く(43)
外観タイル張り(8)
性能評価基準証明あり(1)
インスペクションあり(1)
瑕疵担保保険対象(1)
建物確認・完了検査済証あり(2)
瑕疵担保保険付き(1)
洗濯機置き場(54)
エレベーター(76)
宅配BOX(22)
集会所(5)
タイヤ置き場あり(4)
LDK15帖以上(18)
全室フローリング(34)
和室あり(35)
築5年以内(7)
築10年以内(1)
築15年以内(1)
駐車場空きあり(15)
自走式駐車場(2)
平面駐車場(21)
バイク置き場(7)
駐輪場(28)
南向き(24)
専用庭(1)
管理人常駐(日中)(42)
セキュリティー良し(9)
TV付きインターホン(22)
エントランスオートロック(24)
セキュリティ会社あり(1)
システムキッチン(35)
対面式キッチン(21)
IHクッキングヒーター(9)
食器洗浄乾燥機(15)
浄水器(16)
2口コンロ(8)
3口コンロ(32)
ガスコンロ設置済み(15)
ガスコンロ設置可能(6)
浴室乾燥機(8)
浴室1坪以上(4)
浴室に窓あり(7)
温水洗浄便座(42)
シャワー付き洗面台(30)
エアコン(34)
床暖房(3)
24時間換気システム(1)
全室エアコン(2)
都市ガス(59)
LPG(2)
公営水道(46)
下水道(46)
浄化槽(3)
その他水道(1)
ワイドバルコニー(14)
ルーフバルコニー(1)
バルコニー2面以上(6)
ウォークインクローゼット(5)
全室収納あり(25)
シューズBOX(44)
シューズインクローゼット(5)
BS端子(9)
CS端子(4)
CATV(9)
高速ネット対応(2)
オール電化(1)
内装リフォーム済み(22)
即入居可能(35)
ペット相談(14)
楽器相談(9)
別荘(5)
条件に合った物件数は、
0 件
です。
立地・環境
最上階(9)
10階建て以上(37)
角部屋(27)
2階以上(73)
日当り良好(54)
閑静な住宅街(15)
スーパー近く(28)
最寄駅近く(43)
構造・工法・仕様
外観タイル張り(8)
性能評価基準証明あり(1)
インスペクションあり(1)
瑕疵担保保険対象(1)
建物確認・完了検査済証あり(2)
瑕疵担保保険付き(1)
その他スペース
洗濯機置き場(54)
共用部分
エレベーター(76)
宅配BOX(22)
集会所(5)
タイヤ置き場あり(4)
面積・間取り
LDK15帖以上(18)
全室フローリング(34)
和室あり(35)
築年
築5年以内(7)
築10年以内(1)
築15年以内(1)
駐車・駐輪
駐車場空きあり(15)
自走式駐車場(2)
平面駐車場(21)
バイク置き場(7)
駐輪場(28)
採光・向き
南向き(24)
ガーデン
専用庭(1)
管理・防犯
管理人常駐(日中)(42)
セキュリティー良し(9)
TV付きインターホン(22)
エントランスオートロック(24)
セキュリティ会社あり(1)
キッチン
システムキッチン(35)
対面式キッチン(21)
IHクッキングヒーター(9)
食器洗浄乾燥機(15)
浄水器(16)
2口コンロ(8)
3口コンロ(32)
ガスコンロ設置済み(15)
ガスコンロ設置可能(6)
浴室
浴室乾燥機(8)
浴室1坪以上(4)
浴室に窓あり(7)
トイレ
温水洗浄便座(42)
洗面所
シャワー付き洗面台(30)
冷暖房・空調
エアコン(34)
床暖房(3)
24時間換気システム(1)
全室エアコン(2)
光熱設備
都市ガス(59)
LPG(2)
公営水道(46)
下水道(46)
浄化槽(3)
その他水道(1)
バルコニー・テラス
ワイドバルコニー(14)
ルーフバルコニー(1)
バルコニー2面以上(6)
収納
ウォークインクローゼット(5)
全室収納あり(25)
シューズBOX(44)
シューズインクローゼット(5)
電気設備
BS端子(9)
CS端子(4)
CATV(9)
高速ネット対応(2)
オール電化(1)
リフォーム
内装リフォーム済み(22)
費用・入居・引渡・条件
即入居可能(35)
ペット相談(14)
楽器相談(9)
その他
別荘(5)
条件に合った物件数は、
0 件
です。
アパート・マンション・一戸建て
/
駐車場
/
貸土地
/
店舗
/
事務所
/
倉庫・工場
新築分譲マンション
/
中古マンション
/
新築一戸建て
/
中古一戸建て
/
売土地
/
投資物件・その他
マンション
/
一戸建て
/
土地
建てる・リフォーム
物件掲載企業一覧
掲載希望の企業様へ
新潟の不動産情報サイト
サービス利用規約
運営会社
サイトマップ
プライバシーポリシー
お問い合わせ
リンク
Copyright (C)
株式会社 コモンライフ・コーポレーション
. All Rights Reserved.
新潟・長岡・柏崎の賃貸・マンション・アパート・住宅の不動産物件情報サイト
不動産検索サイト「らくすむ」及び関連サイトに記載の不動産情報は、会員規約に則り、情報提供会社様の責任のもとに発信されております。
不動産の賃借、購入に関しては賃借者、購入者ご自身が情報を確認され、会社企業様から説明を受けられたうえで判断をお願いいたします。
不動産検索サイト「らくすむ」及び関連サイトに記載の不動産情報、写真、デザイン、コンテンツなどの
無断転載・転用・複製
など禁止します。