物件掲載企業数:297|賃貸物件:3,089件|売買物件:3,286件|今週の登録物件:371
閲覧中のブラウザ(インターネットエクスプローラー)は非推奨ブラウザです。
物件が正しく表示されなかったり、正しく検索されない場合があります。最新のブラウザ(Google Chrome・Edgeなど)にてご利用お願いいたします。
  

希望が丘小学校区月極駐車場一覧

表示切替: 一覧表示 地図表示    並び替え:
画像 物件名
所在地
取扱店
面積
間取り
所在階
築年数
賃料
管理費等
共益費
敷金
保証金
礼金
融雪設備付き駐車場
物件画像
物件画像
物件画像
物件画像
詳細☆お気に入り★お気に入り
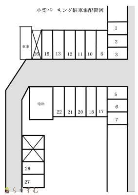
小柴パーキング
    新潟県長岡市下山2丁目1153
    (駐車場)
    -
    -
    -
    -
    0.5万円
    なし
    なし
    なし
    なし
    なし
      1台スペース3m巾のゆったり駐車場 No.1・3 利用可能です!
      物件画像
      物件画像
      物件画像
      物件画像
      詳細☆お気に入り★お気に入り
      ひばり駐車場
        新潟県長岡市希望ヶ丘南5丁目7-34
        (駐車場)
        -
        -
        -
        -
        0.5万円
        なし
        なし
        なし
        なし
        なし
          ウオロク北山まで徒歩1分 ☆軽自動車専用☆ 即日御利用できます。4か月未満の短期使用は月額10,000円になります。
          物件画像
          物件画像
          物件画像
          物件画像
          詳細☆お気に入り★お気に入り
          北山パーキング №.20(軽自動車)
            新潟県長岡市北山3丁目18-1
            (駐車場)
            -
            -
            -
            -
            0.55万円
            なし
            なし
            なし
            なし
            なし
            写真たくさんあり!!
              【№3】 即、御利用できます。前面道路も融雪機能あり 車の通りが少ないのでゆっくり駐車できます
              物件画像
              物件画像
              物件画像
              物件画像
              詳細☆お気に入り★お気に入り
              岡パーキング №3
                新潟県長岡市下山3丁目1180
                (駐車場)
                -
                -
                -
                -
                0.55万円
                なし
                なし
                なし
                なし
                なし
                写真たくさんあり!!
                VRビューあり!!
                  物件画像
                  物件画像
                  物件画像
                  物件画像
                  詳細☆お気に入り★お気に入り
                  貸駐車場 サンパーク大山
                    新潟県長岡市大山2丁目8-6
                    (駐車場)
                    -
                    -
                    -
                    -
                    0.58万円
                    なし
                    なし
                    なし
                    なし
                    なし
                      大山礎公園目の前、青空駐車場 通りが少ないのでゆっくり駐車できます。短期契約は月額10,000円になります。
                      物件画像
                      物件画像
                      物件画像
                      物件画像
                      詳細☆お気に入り★お気に入り
                      大山2丁目パーキング No.2
                        新潟県長岡市大山2丁目9-12No.2
                        (駐車場)
                        -
                        -
                        -
                        -
                        0.6万円
                        なし
                        なし
                        なし
                        なし
                        なし
                          コンパクトカー限定となります 場内融雪設備付
                          物件画像
                          物件画像
                          物件画像
                          物件画像
                          詳細☆お気に入り★お気に入り
                          クリーンハイツ渋海貸し駐車場
                            新潟県長岡市下山6丁目789番地
                            (駐車場)
                            -
                            -
                            -
                            -
                            0.6万円
                            なし
                            なし
                            なし
                            なし
                            なし
                              コンパクトカー限定となります。 駐車場内融雪設備あり
                              物件画像
                              物件画像
                              物件画像
                              物件画像
                              詳細☆お気に入り★お気に入り
                              ハイツゆめ月極駐車場
                                新潟県長岡市下山6丁目823番地
                                (駐車場)
                                -
                                -
                                -
                                -
                                0.6万円
                                なし
                                なし
                                なし
                                なし
                                なし
                                  表示切替: 一覧表示 地図表示    並び替え:
                                  0件がマッチ
                                  基本条件
                                  物件種別 駐車場
                                  賃料


                                  間取り
                                  所在階
                                  面積
                                  築年数
                                  方位
                                  おすすめ条件
                                  情報公開日
                                  0件がマッチ
                                  人気のあるこだわり条件