| ダウン照明、冷蔵・冷凍設備、机椅子、カウンターあり。工事無しで即開店できる店舗。 | |||
| 物件コード | 00344-100010 | ||
|---|---|---|---|
| 物件名 | 居抜き 飲食店(鮨割烹) 店舗 | ||
| 交通 | 駅:長岡駅から徒歩7分 | ||
| 所在地 | 新潟県長岡市坂之上町2丁目4番地5 | ||
| 物件種別 | 店舗 | ||
| 総戸数 | 1戸 | ||
| 構造 | 鉄骨 | 階建 | 地上3階建 |
| 所在階/階数 | 1階/3階 | 号室 | 1号室 |
| 面積 | 69.47㎡ (21.01坪) | 方位 | - |
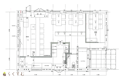
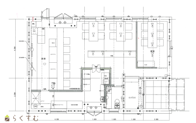
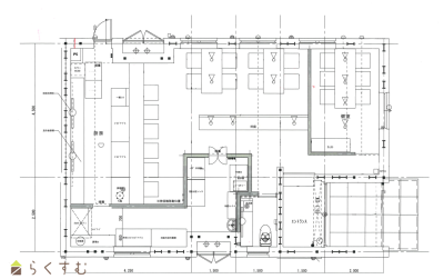
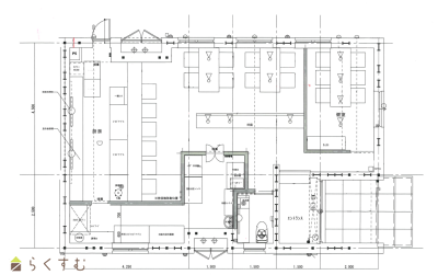
| 間取り |
|
||
| 賃料 | 30万円/月
|
管理費 |
8,000円/月
共益費含む |
| 礼金 | 1ヶ月
|
敷金 | 3ヶ月
|
| ほか初期費用 | - | その他諸費用 | - |
| 更新料 | - | 火災(家財)保険 | - |
| 共益費 | - | 町内費 |
400円
直接支払い |
| 駐車場 | - | バイク料金 | - |
| 鍵交換費 |
20,000円
概算 |
清掃料 | - |
| 更新事務手数料 | - | ||
| 保証区分 |
連帯保証人+保証会社 |
||
| 保証会社 |
区分:加入要 保証会社名:その他 (ユーセン) 家賃保証 その他 |
||
| 家賃保証金 |
300,000円
|
||
| 連帯保証人 |
区分:要 音響設備、レジ設備、その他オプションにて対応可能 |
||
| 仲介手数料 |
300,000円
|
||
| 築年月 | 2021年1月(築5年) | ||
| 利用制限 | 法人:可、学生:相談、単身者:可、ペット:不可、楽器:相談、事務所利用:相談、ルームシェア:相談 | ||
| 学校区 | 阪之上小学校(752m)・東中学校(1,223m) | ||
| 設備 | 1階、融雪設備あり、エアコン、飲食店可、居抜き、給湯 | ||
| 入居時期 | 2025年4月1日以降 | ||
| 取引態様 | 仲介 | ||
| 備考 | 寿司店舗の入居優遇。和食店舗相談。 | ||
| 手数料負担割合/配分割合 | 貸主:-% 借主:100% / 元付:50% 客付:50% | ||
| 情報登録日 | 2025/03/10 | 次回更新予定日 | 2026/04/03 |
|
|
|
|
| TEL: | 0258-89-7833 |
|---|---|
| 所在地: | 新潟県長岡市坂之上町二丁目3番地9sumoreビル |
| 交通: | JR長岡駅 |
| 営業時間: | 9:00~18:00/定休日:日・祝日(事前予約受付しています) |
| 免許番号: | 新潟県知事(1)第5700号 |
| 所属団体名: | 公社新潟県宅地建物取引協会 長岡支部 |
| 取引態様: | 仲介 |