| 物件コード | 00292-100169 | ||
|---|---|---|---|
| 物件名 | ローズガーデン | ||
| 交通 | 駅:越後線 柏崎駅から徒歩16分、バス:柏崎営業所から徒歩2分 | ||
| 所在地 | 新潟県柏崎市豊町3-16 | ||
| 物件種別 | アパート・マンション・一戸建て | ||
| 総戸数 | 4戸 | ||
| 構造 | 木造 | 階建 | 地上2階建 |
| 所在階/階数 | 2階/2階 | 号室 | 202号室 |
| 面積 | 56.94㎡ (17.22坪) | 方位 | - |
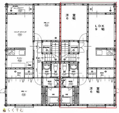
| 間取り | 2LDK (洋室:6、6)
LDK9 |
||
| 賃料 | 6.7万円/月
|
管理費 | - |
| 礼金 | - | 敷金 | 1ヶ月
|
| ほか初期費用 | - | その他諸費用 | - |
| 更新料 | - | 火災(家財)保険 |
22,000円
2年 |
| 共益費 |
1,000円
|
町内費 | - |
| 駐車場 |
|
バイク料金 | - |
| 鍵交換費 | - | 清掃料 | - |
| 更新事務手数料 | - | ||
| 保証区分 |
保証会社のみ |
||
| 保証会社 |
区分:加入要 保証会社名:CIZ - |
||
| 家賃保証金 |
53,460円
|
||
| 連帯保証人 |
区分:不要 - |
||
| 仲介手数料 |
73,700円
|
||
| 築年月 | 2005年1月(築21年) | ||
| 利用制限 | ペット:不可、楽器:不可 | ||
| 学校区 | 比角小学校(456m)・第二中学校(846m) | ||
| 設備 | 駐車2台可、駐車場2台無料、IHクッキングヒーター、バストイレ別、温水洗浄便座、暖房便座、エアコン、オール電化、全居室フローリング、洗濯機置場 室内、ウォークインクロゼット、TVモニター付きインターホン、各居室照明、即入居可、礼金不要、新婚・カップル向け、保証会社要加入 | ||
| 入居時期 | 即入居可 | ||
| 取引態様 | 仲介 | ||
| 備考 | - | ||
| 手数料負担割合/配分割合 | 貸主:0% 借主:100% / 元付:50% 客付:50% | ||
| 情報登録日 | 2025/12/23 | 次回更新予定日 | 2026/01/28 |
|
|
|
|
| TEL: | 0257-22-0851 |
|---|---|
| 所在地: | 新潟県柏崎市宮場町9番23号 |
| 交通: | 柏﨑駅南口から約950m(約12分) |
| 営業時間: | 平日9:00~17:00(土12:00まで)/定休日:日曜・祝日 |
| 免許番号: | 新潟県知事(6)第4167号 |
| 所属団体名: | (公社)新潟県宅地建物取引業協会 (一社)全国賃貸不動産管理業協会(全宅管理) |
| 取引態様: | 仲介 |