| 物件コード | 00292-100168 | ||
|---|---|---|---|
| 物件名 | 若葉町貸家 | ||
| 交通 | 駅:信越線 柏崎駅から徒歩17分、バス:常盤台から徒歩4分 | ||
| 所在地 | 新潟県柏崎市若葉町2-50 | ||
| 物件種別 | アパート・マンション・一戸建て | ||
| 総戸数 | 1戸 | ||
| 構造 | 木造 | 階建 | 地上1階建 |
| 所在階/階数 | 1階/1階 | 号室 | 1号室 |
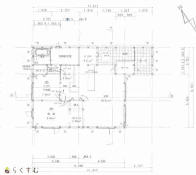
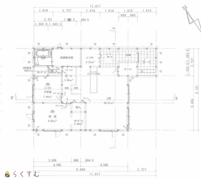
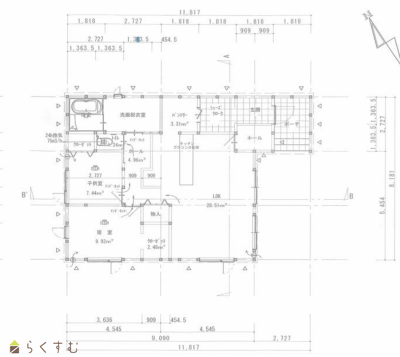
| 面積 | 76.84㎡ (23.24坪) | 方位 | - |
| 間取り | 2LDK (洋室:6、8)
LDK18 |
||
| 賃料 | 12万円/月
|
管理費 | - |
| 礼金 | 1ヶ月
|
敷金 | 1ヶ月
|
| ほか初期費用 | - | その他諸費用 | 除雪費1シーズン8,000円 |
| 更新料 | - | 火災(家財)保険 |
22,000円
2年 |
| 共益費 | - | 町内費 |
1,000円
|
| 駐車場 |
|
バイク料金 | - |
| 鍵交換費 | - | 清掃料 | - |
| 更新事務手数料 | - | ||
| 保証区分 |
保証会社のみ |
||
| 保証会社 |
区分:加入要 保証会社名:CIZ - |
||
| 家賃保証金 |
94,270円
|
||
| 連帯保証人 |
区分:不要 - |
||
| 仲介手数料 |
132,000円
|
||
| 築年月 | 2025年8月(築4ヶ月) | ||
| 利用制限 | ペット:不可 | ||
| 学校区 | 大洲小学校(407m)・第三中学校(1,163m) | ||
| 設備 | 閑静な住宅街、最上階、上階なし、宅配BOX、LDK12畳以上、築5年以内、築10年以内、駐車2台可、カーポートあり、駐車場2台無料、対面キッチン、IHクッキングヒーター、バストイレ別、浴室1坪以上、追いだき機能付き、温水洗浄便座、暖房便座、洗面所独立、エアコン、エアコン2基、都市ガス、全居室フローリング、雨戸、洗濯機置場 室内、脱衣所、フローリングあり、各居室照明、即入居可、未入居、保証会社要加入 | ||
| 入居時期 | 即入居可 | ||
| 取引態様 | 仲介 | ||
| 備考 | - | ||
| 手数料負担割合/配分割合 | 貸主:0% 借主:100% / 元付:50% 客付:50% | ||
| 情報登録日 | 2025/10/29 | 次回更新予定日 | 2026/01/06 |
|
|
|
|
| TEL: | 0257-22-0851 |
|---|---|
| 所在地: | 新潟県柏崎市宮場町9番23号 |
| 交通: | 柏﨑駅南口から約950m(約12分) |
| 営業時間: | 平日9:00~17:00(土12:00まで)/定休日:日曜・祝日 |
| 免許番号: | 新潟県知事(6)第4167号 |
| 所属団体名: | (公社)新潟県宅地建物取引業協会 (一社)全国賃貸不動産管理業協会(全宅管理) |
| 取引態様: | 仲介 |