| 居住用としても利用可能。(店舗併用住宅など) | |||
| 物件コード | 00227-100001 | ||
|---|---|---|---|
| 物件名 | 諏訪町3階建 | ||
| 交通 | 駅:越後線 東柏崎駅から徒歩9分、バス:諏訪町1丁目から徒歩2分 | ||
| 所在地 | 新潟県柏崎市諏訪町1-20 | ||
| 物件種別 | 事務所 | ||
| 総戸数 | - | ||
| 構造 | 鉄骨 | 階建 | 地上3階建 |
| 所在階/階数 | - | 号室 | - |
| 面積 | 444.24㎡ (134.38坪) | 方位 | - |
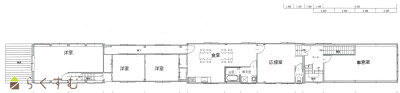
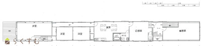
| 間取り |
|
||
| 賃料 | 15万円/月
|
管理費 | - |
| 礼金 | - | 敷金 | 6ヶ月
|
| ほか初期費用 | - | その他諸費用 | - |
| 更新料 | - | 火災(家財)保険 | 別途加入必要 |
| 共益費 | - | 町内費 | 別途 |
| 駐車場 | 敷地内込み | バイク料金 | - |
| 鍵交換費 | - | 清掃料 | - |
| 更新事務手数料 | - | ||
| 保証区分 |
保証会社+緊急連絡先 |
||
| 保証会社 |
区分:加入要 保証会社名:その他 (利用用途に応じて相談とします。) - |
||
| 連帯保証人 |
区分:不要 - |
||
| 仲介手数料 |
165,000円
|
||
| 築年月 | 1970年4月(築56年) | ||
| 利用制限 | - | ||
| 学校区 | 柏崎小学校(600m)・第一中学校(644m) | ||
| 設備 | エアコン、即引き渡し可、給湯、駐車場あり | ||
| 入居時期 | 即入居可 | ||
| 取引態様 | 仲介 | ||
| 備考 | 会社事務所、倉庫、寄宿舎、社員寮として利用可能。 居住用としても利用可能。(店舗併用住宅など) 市内中心部に近く、幅広い利用用途に対応できます。 平成30年内部、水廻り等リフォーム済み。 |
||
| 手数料負担割合/配分割合 | 貸主:-% 借主:100% / 元付:-% 客付:-% | ||
| 情報登録日 | 2024/08/27 | 次回更新予定日 | 2026/05/01 |
|
|
|
|
|
| TEL: | 0257-41-6381 |
|---|---|
| 所在地: | 新潟県柏崎市土合615番地 |
| 交通: | |
| 営業時間: | 8:30~17:30/定休日:土日年末年始・夏季など |
| 免許番号: | 新潟県知事(2)第5472号 |
| 所属団体名: | 公社新潟県宅地建物取引業協会 柏崎支部 |
| 取引態様: | 仲介 |