| 物件コード | 00071-100655 | ||
|---|---|---|---|
| 物件名 | レーベン長岡 | ||
| 交通 | 駅:長岡から徒歩5分 | ||
| 所在地 | 新潟県長岡市城内町3丁目5-1 | ||
| 物件種別 | 事務所 | ||
| 総戸数 | - | ||
| 構造 | 鉄骨鉄筋コン | 階建 | 地上9階建 | 
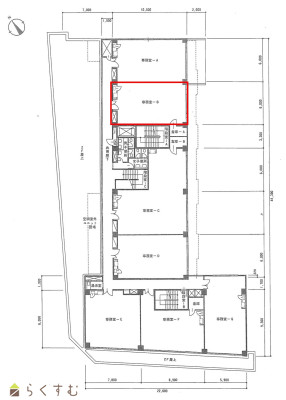
| 所在階/階数 | 2階/9階 | 号室 | 202号室 | 
| 面積 | 63.96㎡ (19.34坪) | 方位 | - | 
| 間取り |  | ||
| 賃料 | 9万円/月 | 管理費 | - | 
| 礼金 | - | 敷金 | 2ヶ月 | 
| ほか初期費用 | - | その他諸費用 | - | 
| 更新料 | - | 火災(家財)保険 | - | 
| 共益費 | - | 町内費 | - | 
| 駐車場 | 敷地内駐車場1台込(№7) | バイク料金 | - | 
| 鍵交換費 | - | 清掃料 | - | 
| 更新事務手数料 | - | ||
| 保証区分 | 連帯保証人のみ | ||
| 保証会社 | 区分:指定なし - | ||
| 連帯保証人 | 区分:要 - | ||
| 仲介手数料 | 99,000円 | ||
| 築年月 | 1984年9月(築41年) | ||
| 利用制限 | 事務所利用:可 | ||
| 学校区 | 阪之上小学校(545m)・東中学校(1,170m) | ||
| 設備 | 2階以上、融雪設備あり、管理室あり、エアコン、給湯、駐車場あり | ||
| 入居時期 | 相談 | ||
| 取引態様 | 仲介 | ||
| 備考 | トイレ・給湯設備は他事務所と共用になります。 | ||
| 手数料負担割合/配分割合 | 貸主:0% 借主:100% / 元付:50% 客付:50% | ||
| 情報登録日 | 2025/10/23 | 次回更新予定日 | 2025/11/15 | 
|   |   | 
|  |  | 
| TEL: | 0258-32-1222 | 
|---|---|
| 所在地: | 新潟県長岡市本町3-1-9 アーバンヒルズ長岡1F | 
| 交通: | 長岡駅 | 
| 営業時間: | 9:00~17:00/定休日:日・祝・祭日 | 
| 免許番号: | 新潟県知事(10)3038号 | 
| 所属団体名: | 新潟県宅地建物取引協会 長岡支部 | 
| 取引態様: | 仲介 |