| 物件コード | 00069-100366 | ||
|---|---|---|---|
| 物件名 | コア東堀 | ||
| 交通 | 駅:白山から徒歩23分 | ||
| 所在地 | 新潟県新潟市中央区東堀前通5番町403 | ||
| 物件種別 | アパート・マンション・一戸建て | ||
| 総戸数 | - | ||
| 構造 | 鉄骨鉄筋コン | 階建 | 地上11階建 |
| 所在階/階数 | 8階/11階 | 号室 | 808号室 |
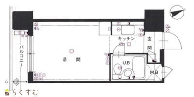
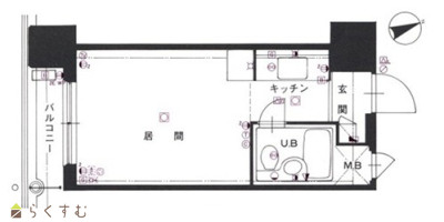
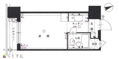
| 面積 | 18.73㎡ (5.66坪) | 方位 | 南 |
| 間取り | 1R
|
||
| 賃料 | 3.2万円/月
|
管理費 | - |
| 礼金 | - | 敷金 | - |
| ほか初期費用 | - | その他諸費用 | - |
| 更新料 | - | 火災(家財)保険 | - |
| 共益費 | - | 町内費 | - |
| 駐車場 | - | バイク料金 | - |
| 鍵交換費 | - | 清掃料 |
38,500円
|
| 住宅保険料 |
19,000円
|
||
| ライフサポート料 |
800円
|
||
| 更新事務手数料 | - | ||
| 保証区分 |
保証会社のみ |
||
| 保証会社 |
区分:加入要 保証会社名:ジェイリース - |
||
| 家賃保証金 | 保証会社:ジェイリース㈱ 保証料:初回保証料負担なし、月額保証料600円 | ||
| 連帯保証人 |
区分:- - |
||
| 仲介手数料 | - | ||
| 築年月 | 1985年12月(築40年) | ||
| 利用制限 | ルームシェア:不可 | ||
| 学校区 | - | ||
| 設備 | 外壁タイル張り、エレベーター、駐輪場あり、防犯カメラ、ガスコンロ 設置済み、エアコン、都市ガス、バルコニー、洗濯機置場 室内、フローリングあり、BS端子・アンテナ、TVモニター付きインターホン、各居室照明、インターネット 光、カード決済可能(賃料など) | ||
| 入居時期 | 2025年12月中旬 | ||
| 取引態様 | 代理 | ||
| 備考 | - | ||
| 手数料負担割合/配分割合 | 貸主:-% 借主:-% / 元付:-% 客付:-% | ||
| 情報登録日 | 2026/02/03 | 次回更新予定日 | 2026/02/17 |
|
|
|
|
| TEL: | 025-374-4280 |
|---|---|
| 所在地: | 新潟県新潟市中央区女池神明1丁目8-19 |
| 交通: | 新潟交通バス女池線で「女池西二丁目」下車徒歩1分 |
| 営業時間: | 9:00~18:00/定休日:水曜日 祝日 年末年始・GW・お盆 |
| 免許番号: | 新潟県知事(10)第2891号 |
| 所属団体名: | 新潟県宅地建物取引業協会 新潟支部 |
| 取引態様: | 代理 |